Diamantina by Arista Homes

DISPLAY HOME

Contemporary and chic are two words to describe the exceptional Diamantina 300

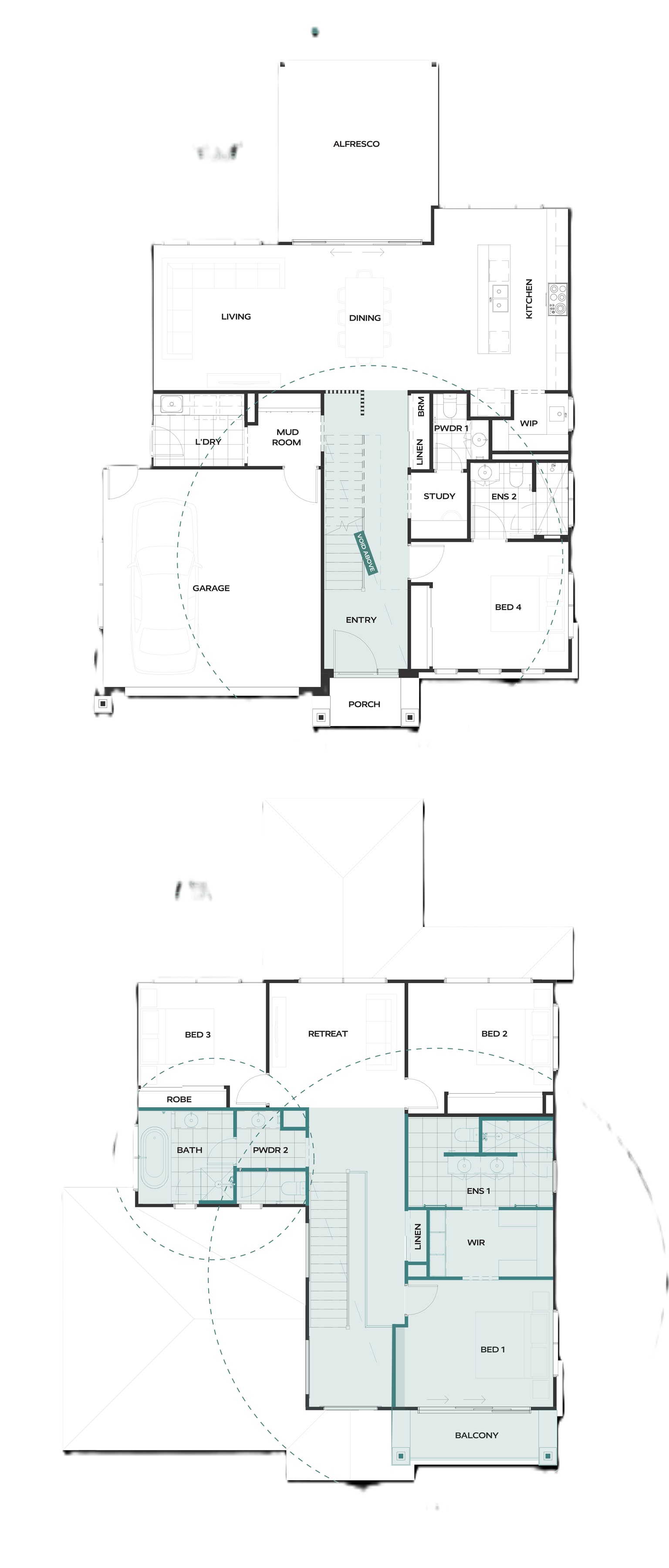
The heart of the home is located at the rear, boasting a spacious living area, elegant kitchen, and a dining area, providing ample space for family gatherings and entertaining guests. The seamless connection to the alfresco enhances the indoor-outdoor living experience, offering a delightful space for relaxation and outdoor dining. Upstairs, the master suite with a unique walk-through-robe and ensuite provides a luxurious retreat. Alongside two additional bedrooms, a versatile retreat area offers flexibility for family activities. With clever storage solutions, a convenient mudroom, and brilliant features throughout, the Diamantina caters to the needs of your growing family, ensuring a comfortable and organised living environment.

 


Floor-plan options for Diamantina

Diamantina 300
Bed 4
Bath 3
Living 2
Car 2
Home Design: Diamantina
Floor Area: 300m2
House Width: 15.5m
House Length: 18.34m

Display Homes & 3D Tours for Diamantina by Arista Homes

Loading...
Diamantina by Arista Homes