Bristol by Domaine Homes

DISPLAY HOME

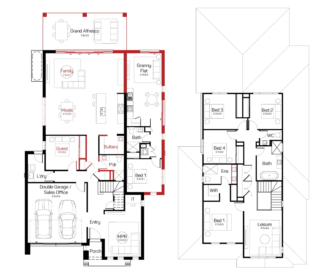
The Bristol 31 is a large double storey home with attached 1 bed granny flat which fits a 15m wide site.

The home includes 4 generous bedrooms to the first floor and a guest room to the ground floor with multi functional living area to the front of the home with private IT zone, perfect for those needing a work from home space.

The open plan living creates a flowing space from the kitchen all the way out to the grand alfresco allowing the space to be filled with natural light and fresh air.

The 1 bed granny flat attached to the side of the home complete with a private entry which separates it from the main dwelling.

 


Floor-plan options for Bristol

Bristol 31
Bed 4
Bath 2.5
Living 3
Car 2
Home Design: Bristol
Floor Area: 283.3m2
House Width: 11.08m
House Length: 19.56m

Display Homes & 3D Tours for Bristol by Domaine Homes

Loading...

More House and Land Packages by Domaine Homes (Home Builder)

Bristol by Domaine Homes