Dilan by Dulger Homes

DISPLAY HOME

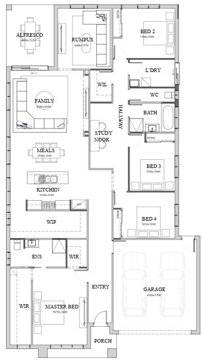
The luxurious floorplan of the Dilan 2881 is designed for the land of 14m x 32m. having 4 bedrooms, a retreat/rumpus at the rear and a master bedroom perfect for the king or queen of the home. The Dilan 2881 also boasts a stacked living area including a massive walk-in pantry and flows through to your alfresco. This home is designed with families in mind and could be your next masterpiece.


Floor-plan options for Dilan

Dilan 2881
Bed 4
Bath 2
Living 2
Car 2
Home Design: Dilan
Floor Area: 267.69m2
House Width: 14m
House Length: 32m

Display Homes & 3D Tours for Dilan by Dulger Homes

Loading...

More House and Land Packages by Dulger Homes (Home Builder)

Dilan by Dulger Homes