Kirwan by Dulger Homes

DISPLAY HOME

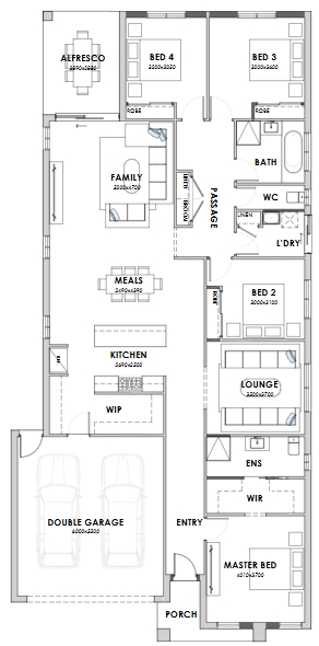
The Kirwan 2583 is designed to fit on a 12.5-meter by 32-meter lot and will generously host 4 bedrooms including a master bedroom with a walk-in robe and ensuite, 2 bathrooms, 2 large living rooms and a double garage as well as an alfresco in the rear. This home could be your next masterpiece as it is designed with modern open plan living as a core concept, providing large spaces for entertaining, hosting or relaxing with its interconnected living, kitchen and meal areas, the kitchen boasts a respectably sized pantry that can be upgraded to a butler’s pantry. This makes it a perfect dream home for a growing or large family as well as those investment-minded individuals as it ticks all the boxes for your masterpiece.


Floor-plan options for Kirwan

Kirwan 2583
Bed 4
Bath 2
Living 2
Car 2
Home Design: Kirwan
Floor Area: 239.90m2
House Width: 12.5m
House Length: 32m

Display Homes & 3D Tours for Kirwan by Dulger Homes

Loading...

More House and Land Packages by Dulger Homes (Home Builder)

Kirwan by Dulger Homes