Quintessa by Dulger Homes

DISPLAY HOME

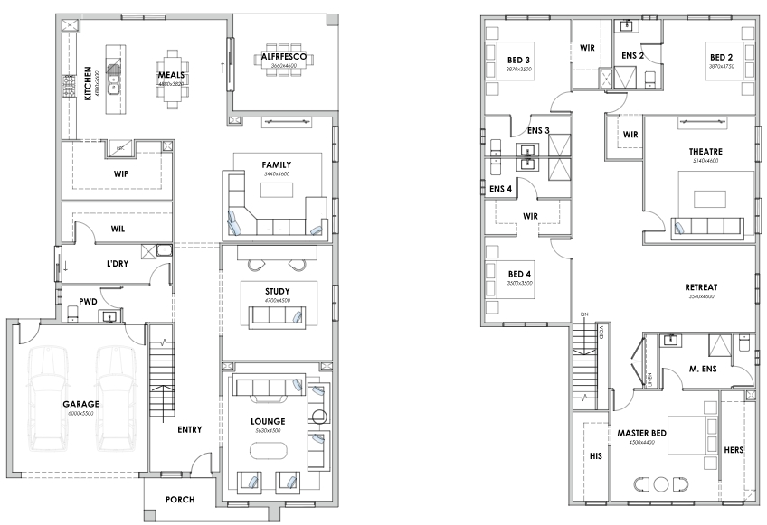
The Quintessa 4771 is designed to suit a 16-meter by 28-meter lot and will quite comfortably fit 4 bedrooms each with their own walk-in robe and ensuite, 5 bathrooms in total, 2 large living rooms including a theatre room, a study or home office and a double garage as well as an alfresco in the rear. This could be your next masterpiece as it is designed with open plan living as a driving force for this home it provides spaces for entertaining, hosting or relaxing with its connecting living, kitchen and meal areas, the kitchen boasts a large pantry which can be upgraded to a butler’s pantry. This makes it a perfect dream home for a large family as well as those investment-minded individuals as it ticks all the boxes for your masterpiece.


Floor-plan options for Quintessa

Quintessa 4771
Bed 4
Bath 5
Living 2
Car 2
Home Design: Quintessa
Floor Area: 443.19m2
House Width: 16m
House Length: 28m

Display Homes & 3D Tours for Quintessa by Dulger Homes

Loading...

More House and Land Packages by Dulger Homes (Home Builder)

Quintessa by Dulger Homes