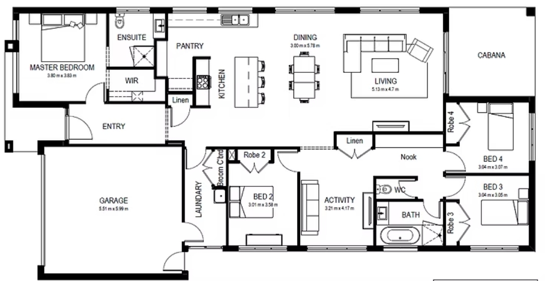
DISPLAY HOME Byron 26 | @ Ferntree Ridge Estate - Drouin Home Designs by Elara Homes Byron by Elara Homes HOME DESIGN Latest Pricing & Inclusions Floor-plan options for Byron Byron 26 4 2 2 2 Builder: Elara Homes Home Design: Byron Floor Area: 242.44m2 Latest Pricing & Inclusions Display Homes & 3D Tours for Byron by Elara Homes Loading... Byron 26 By Elara Homes Ferntree Ridge Estate - Drouin Ferntree Ridge Estate - Drouin