Tangerine by Hudson Homes

DISPLAY HOME

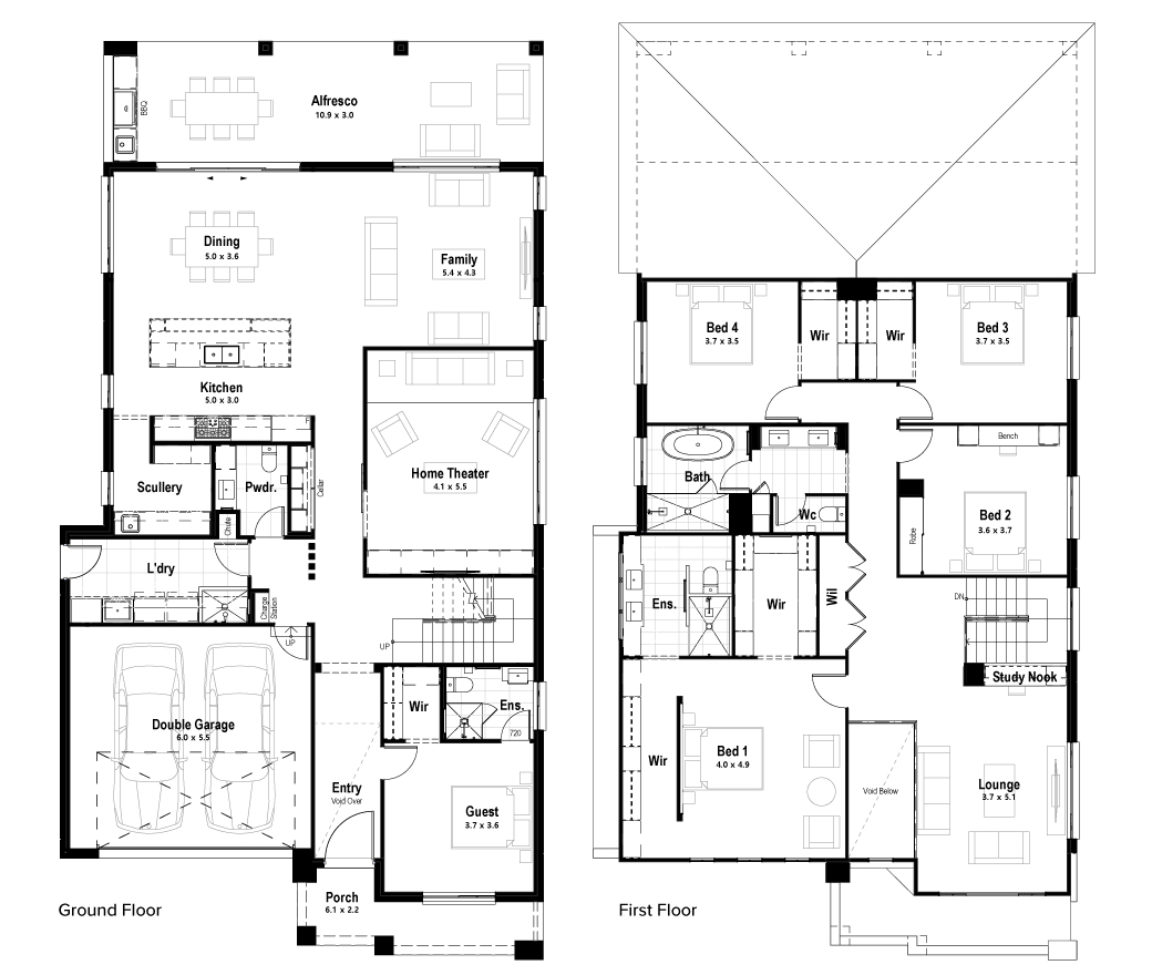
The Tangerine has been impeccably designed for large or growing families with a modern twist. This two-storey home not only manages to fit five bedrooms, but the luxuries as well, from a huge home theatre to a generous scullery. It is a flexible design that can convert many of the rooms to perfectly suit your family’s unique lifestyle.

 


Floor-plan options for Tangerine

Tangerine 41
Bed 5
Bath 3.5
Living 3
Car 2
Home Design: Tangerine
Floor Area: 383.40m2
House Width: 11.99m
House Length: 21.82m

Display Homes & 3D Tours for Tangerine by Hudson Homes

Loading...
Tangerine by Hudson Homes