Nevada by Hudson Ridge Builders

DISPLAY HOME

14m x 32m. Designed to suit Land Min. Lot width 14m+ and min. Lot Depth 32m+


Floor-plan options for Nevada

Nevada
Bed 4
Bath 2
Living 2
Car 2
Home Design: Nevada
Floor Area: 258.14m2
House Width: 13m
House Length: 24.81m
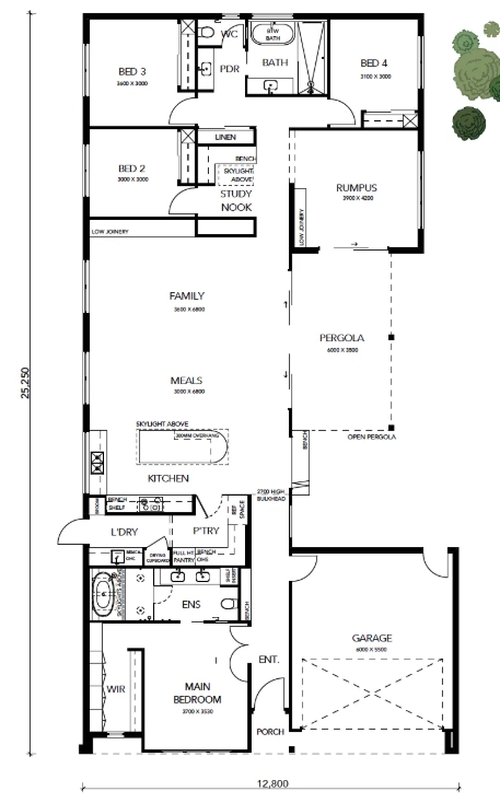
Nevada 27
Bed 4
Bath 2
Living 2
Car 2
Home Design: Nevada
Floor Area: 251.31m2
House Width: 12.8m
House Length: 25.25m

Display Homes & 3D Tours for Nevada by Hudson Ridge Builders

Loading...
Nevada by Hudson Ridge Builders