Welland by Kingsbridge Homes

DISPLAY HOME

Award-Winning Design for Modern Living

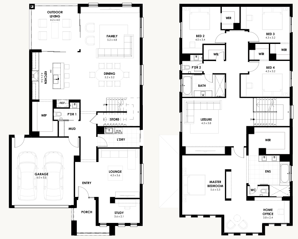
The Welland 42, winner of the 2024 HIA Award for Best Display Home, is a thoughtfully crafted design inspired by the evolving needs of families during the pandemic, incorporating multiple spaces for working and studying from home. At the front of the home, a private study is positioned away from the main living areas, creating a quiet and productive workspace ideal for work-from-home parents or students.

The functional kitchen layout, located adjacent to the outdoor living area, provides seamless connectivity, with the option to upgrade to wrap-around benchtops and a servery window for effortless indoor-outdoor entertaining.

The master bedroom offers a hotel-inspired retreat, featuring a separated sleeping quarter and an integrated home office, blending luxury with functionality. Generously sized minor bedrooms, each complete with integrated study nooks, ensure every family member has their own dedicated space for work or study.

Upstairs, a well-appointed bathroom with a double shower and a separate powder room enhances both style and practicality. With extensive design options, including customisable layouts, the Welland 42 combines award-winning style, modern functionality, and flexibility for contemporary family living.

 


Floor-plan options for Welland

Welland 42
Bed 4
Bath 2
Living 1
Car 2
Home Design: Welland
House Width: 11.8m
House Length: 20.5m

Display Homes & 3D Tours for Welland by Kingsbridge Homes

Loading...

More House and Land Packages by Kingsbridge Homes (Home Builder)

Welland by Kingsbridge Homes