Primrose by Lily Homes

DISPLAY HOME

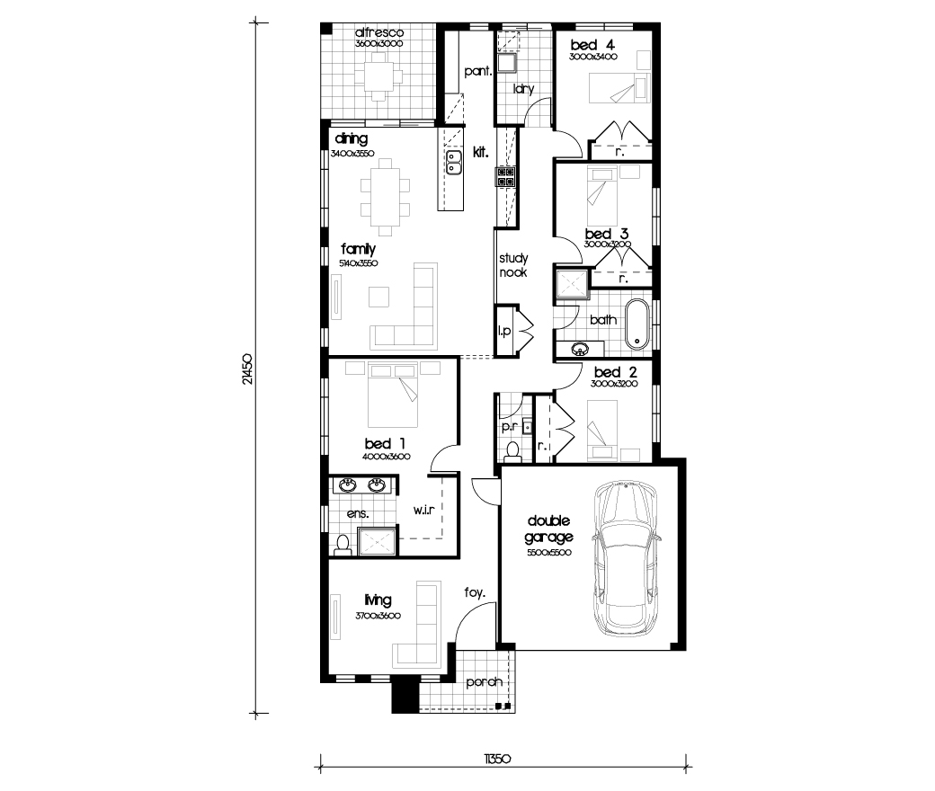
The Primrose 24 is a beautiful one story structure that provides you with four bedrooms, a fantastic dining room/family room combo, and an alfresco sitting area. The kitchen comes with a sizable walk-in pantry and there is an additional meeting room at the front of the home.

The garage space accommodates your car, providing you with a safe, warm location for your vehicle. The entire floor plan, including the garage, gives you 216.5 m² of living space.

This is a beautifully designed home that is perfect for a family of any size, giving you spacious living with a beautiful exterior. This is the family dream home you have desired.
 


Floor-plan options for Primrose

Primrose 24
Bed 4
Bath 3
Living 2
Car 2
Builder: Lily Homes
Home Design: Primrose
Floor Area: 220.1m2
House Width: 11.4m
House Length: 21.5m

Display Homes & 3D Tours for Primrose by Lily Homes

Loading...

More House and Land Packages by Lily Homes (Home Builder)

Bed  5 Bath  3 Car  2
Suburb: Orchard Hills NSW 2748
Builder: Lily Homes
Land Size: 306.00m²
A brand new masterplanned community close to transport, shops and schools, Orchard Hills North provides the opportunity enjoy all the benefits of urban convenience in a beautiful setting.

Set among rolling hills with panoramic views to the Blue Mountains, OHN will include a new village centre with shops and a proposed primary school as well as sporting fields, parkland and waterways. In addition, the new Metro station at Orchard Hills is 2km down the road and the new Western Sydney airport is just 14km away.

The Ruby 28 Guest Bed by Lily Homes on Lot 5112 is a contemporary double storey home perfectly suited to maximise this 306sqm homesite. The home features 5 bedrooms + study hub, 3 bathrooms, multiple living areas, double garage and includes:

• Upgraded 2.59m ceiling heights to the ground floor.
• Fully ducted premium Actron air-conditioning.
• Bulkhead to kitchen cabinetry, with cabinetry above the fridge space.
• Glazed porcelain tiling throughout the entry, hallways and kitchen/family/dining.
• Premium carpet range to balance of the home.
• 20mm stone benchtops throughout kitchen and bathrooms.
• Freestanding bath, floating vanities and niches to shower recess.
• Insect screens to openable windows.
• Remote controlled garage door.
• Fisher & Paykel appliances.
• Extended laundry stone benchtop with cupboards under.
• 1.2 wall tiles to all bathrooms.
• Fully tiled entry and alfresco.
• Colour on driveway
Price: $1,271,900
Primrose by Lily Homes