Boston by Long Island Homes

DISPLAY HOME

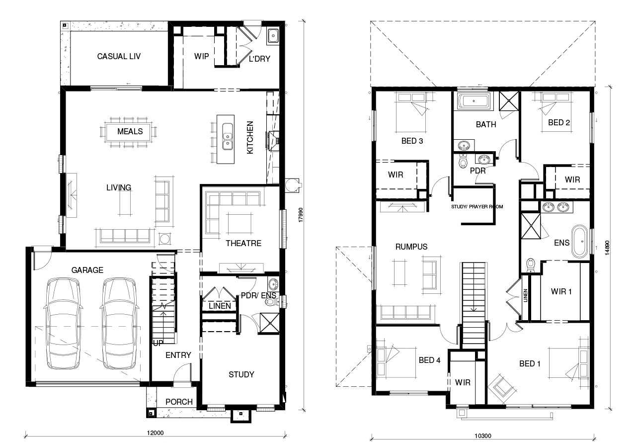
A great home suitable for a family. Consisting of three living Areas, study and alfresco and four bedrooms. Suitable for a 14 metre wide block.


Floor-plan options for Boston

Boston 370
Bed 4
Bath 3
Living 2
Car 2
Home Design: Boston
Floor Area: 346.09m2
House Width: 12m
House Length: 19m

Display Homes & 3D Tours for Boston by Long Island Homes

Loading...

More House and Land Packages by Long Island Homes (Home Builder)

Boston by Long Island Homes