Calgary by Long Island Homes

DISPLAY HOME

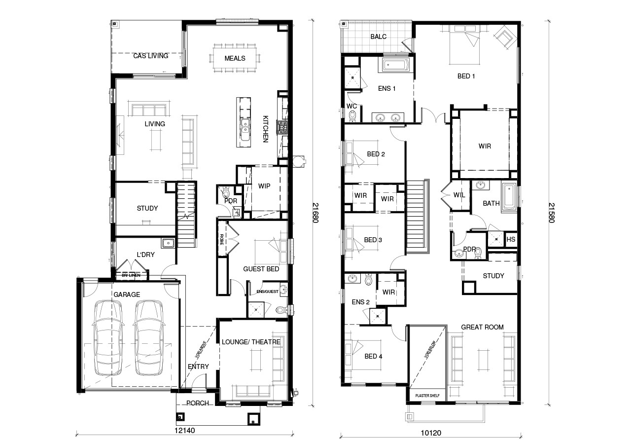
The Calgary is a high-end and comfortable home. The entrance with a void creates a sense of openness and grandeur in the entryway. The master bedroom also brings you light and spaciousness with a balcony, a large ensuite and an extensive walk-in robe. Having study rooms on both levels allows for flexibility in choosing a workspace. If you have multiple people working from home, each individual can have their own dedicated workspace.


Floor-plan options for Calgary

Calgary 490
Bed 5
Bath 4
Living 3
Car 2
Home Design: Calgary
Floor Area: 452.15m2
House Width: 12m
House Length: 23m

Display Homes & 3D Tours for Calgary by Long Island Homes

Loading...

More House and Land Packages by Long Island Homes (Home Builder)

Calgary by Long Island Homes