Cocos by Long Island Homes

DISPLAY HOME

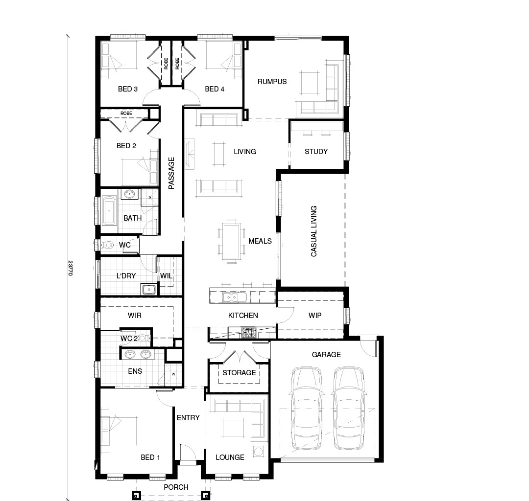
Luxury in a family package! A true family home, meticulously designed so there is no wasted space. The Cocos range includes many clever options; easy access from the garage to the butlers pantry, outdoor entertaining straight off the kitchen area and a massive laundry/utility room. The Cocos is available in many shapes and sizes to suit the needs of any growing family.


Floor-plan options for Cocos

Cocos 330 MKII
Bed 4
Bath 2
Living 2
Car 2
Home Design: Cocos
Floor Area: 306.62m2
House Width: 14.75m
House Length: 23.77m

Display Homes & 3D Tours for Cocos by Long Island Homes

Loading...

More House and Land Packages by Long Island Homes (Home Builder)

Cocos by Long Island Homes