Shorehaven by Montgomery Homes

DISPLAY HOME

Discover the stunning double-storey Shorehaven 263. A beautiful home design crafted to maximise the modern lifestyle.

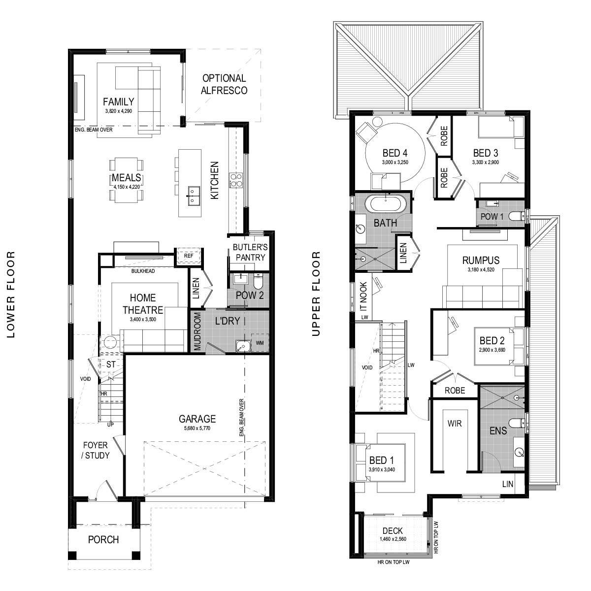
The double-storey Shorehaven 263 includes four bedrooms — all allocated to the top floor, creating a luxurious entertaining zone to the lower floor. The entertainment precinct exists to the rear of the lower level — with a home theatre, an open-plan kitchen/meals/family area, Butler’s Pantry, powder room and alfresco. Completing the lower level is the laundry, bonus linen cupboard and mud room. Ample overhead storage to the mud room ensures the Shorehaven 263 never compromises on practicality.

Ascend the staircase, which unfolds to the home office set-up — ideal for the work-from-home professional. With two upper floor layouts available, select Option 1 (master bedroom to the front) or Option 2 (master bedroom to the rear) — whichever is more suitable for your lifestyle. The three main bedrooms have convenient access to the main bathroom, with a nearby rumpus room completing the upper level of the Shorehaven 263.

The Shorehaven 263 is ideal for level sites with a 10.96m frontage or wider (or 9.96m if zero lot applicable), and is available in five stunning facades — Hamptons, Retro, Grande, Executive and Metro.

 


Floor-plan options for Shorehaven

Shorehaven 263
Bed 4
Bath 2.5
Living 2
Car 2
Home Design: Shorehaven
Floor Area: 262.27m2
House Width: 8.36m
House Length: 20.8m

Display Homes & 3D Tours for Shorehaven by Montgomery Homes

Loading...
Shorehaven by Montgomery Homes