Whitehaven by Montgomery Homes

DISPLAY HOME

Discover our split level Whitehaven 238 design, perfect for uphill sloping sites.

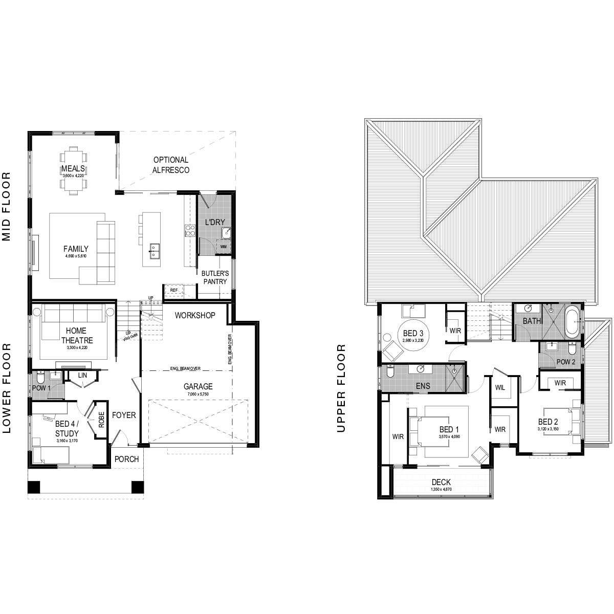
Our sloping site specialist techniques have been applied to our brand new Whitehaven range to craft homes that caress an uphill sloping site. Our Whitehaven is a split tri-level design that provides two living areas, four bedrooms and a contemporary butlers pantry. With a stunning Hamptons facade on display at HomeWorld Box Hill – plus four additional facade options to choose from – this home has maximum street appeal and exudes sophistication and class from the moment you arrive.

This new design features kitchen and main entertaining areas on the mid floor, providing privacy for the primary bedrooms and master suite on the upper floor, with the fourth bedroom (or study) on the lower floor.

The Whitehaven 238 is designed to suit narrow uphill sloping blocks with a 13m wide frontage or larger.

 


Floor-plan options for Whitehaven

Whitehaven 238
Bed 4
Bath 2.5
Living 2
Car 2
Home Design: Whitehaven
Floor Area: 237.78m2
House Width: 10.7m
House Length: 17.15m
Whitehaven 264
Bed 4
Bath 2.5
Living 2
Car 2
Home Design: Whitehaven
Floor Area: 264.29m2
House Width: 11.8m
House Length: 17.15m

Display Homes & 3D Tours for Whitehaven by Montgomery Homes

Loading...
Whitehaven by Montgomery Homes