Benham by Rawson Homes

DISPLAY HOME

The best of both worlds - space where everyone can come together and peaceful space where solitude can be enjoyed.

 


Floor-plan options for Benham

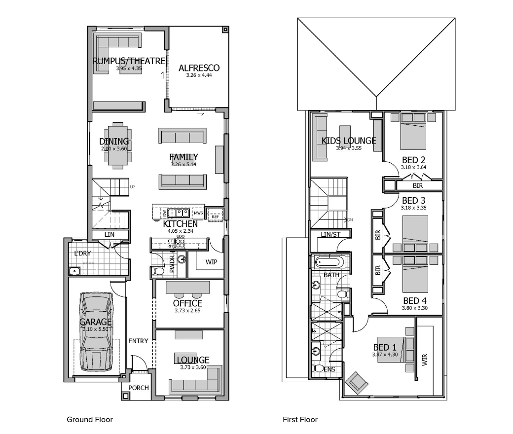
Benham 30
Bed 4
Bath 2.5
Living 2
Car 1
Home Design: Benham
Floor Area: 279.64m2
House Width: 9m
House Length: 20.425m

Display Homes & 3D Tours for Benham by Rawson Homes

Loading...

More House and Land Packages by Rawson Homes (Home Builder)

Bed  4 Bath  2 Car  2
Suburb: Strathnairn ACT 2615
Land Size: 185.20m²
Don't miss one of the last available homes at Horizon Hill offering spectacular views of the Brindabella mountains!

SUSTAINABLE, STYLISH, SPECTACULAR SCENERY.
Enjoy beautiful homes and a greener future located in Canberra's most sustainable community with spectacular mountain views.
Horizon Hill is a unique opportunity to join vibrant Ginninderry, Canberra's most sustainable community, with spectacular views that reach across the Murrumbidgee River and beyond to the Brindabella mountain range.

ENJOY YOUR VIEW FROM THE TOP.
Horizon Hill presents a rare opportunity to enjoy the very best of what Ginninderry has to offer. Sitting atop one of the highest points in Strathnairn alongside a picturesque hilltop park, Horizon Hill is a centrally-located oasis with spectacular views that reach across the Murrumbidgee River and beyond to the Brindabella mountain range.
Offering 40 generously-sized three and four bedroom homes and 4 one and two bedroom apartments, each home is architecturally designed, beautifully appointed, and 7-star energy efficiency rated.

NATURAL LIVING, MODERN CONVENIENCE.
Inspired by the mountains and waterways that surround it, Horizon Hill sets the bar high for modern eco-living.
It's about waking in the morning, taking in the views and breathing the fresh air. It's about joining an established and thriving community you'll look forward to coming home to and welcome being a part of. It's your home in paradise.

FINISHES & INCLUSIONS.
- 900mm SMEG Appliances
- 20mm stone benchtops with waterfall ends
- SMEG freestanding dishwasher
- Ducted air-conditioning with remote control
- Hybrid waterproof laminate flooring
- Mirrored sliding doors
- Floor to ceiling ceramic tiles
- Landscaping included
Price: $960,000
Bed  4 Bath  2 Car  1
Suburb: Strathnairn ACT 2615
Land Size: 248.00m²
Discover an architecturally built home ready for you to move in, in Canberra's most sustainable community - Ginninderry.

This beautiful home is one of the last opportunities to join Horizon Hill, and enjoy the very best that Ginninderry has to offer. Sitting atop one of the highest points in Strathnairn alongside a picturesque hilltop park, Horizon Hill is a centrally-located oasis with spectacular views that reach across the Murrumbidgee River and beyond to the Brindabella mountain range.

With a design inspired by the mountains and waterways that surround it, this beautiful home sets the bar high for modern eco-friendly living, featuring bright and spacious interiors that feel warm and welcoming, with designated study spaces that ensure the bedrooms and living areas aren't compromised.

Its economic and compact floorplan is cleverly designed so that every member of the family has a spot to call their own, with outdoor and alfresco areas that let you breathe in fresh air and enjoy the tranquillity. Outside is no different, with a façade that exudes style, and manicured gardens have been developed by landscape architects to seamlessly complement the home, resulting in an end product that is as picturesque as the surroundings.

NATURAL LIVING, MODERN CONVENIENCE

At Horizon Hill you'll enjoy the best in healthy living, with a host of retail, entertainment, medical and transport options on your doorstep.

- Kippax Fair Shopping Centre: 4.2km
- Westfield Belconnen: 10.8km
- Kippax bus interchange: 4.2km
- Free Strathnairn loop bus service
- Holt Medical Centre: 3.2km
- Totally Smiles Dental: 4.3km
- Holt Phyisotherapy Clinic: 3.2km
- Burns Golf Club Belconnen: 2.0km

FINISHES & INCLUSIONS.

- 900mm SMEG oven, cooktop & rangehood
- SMEG freestanding dishwasher & microwave
- 40mm stone benchtops with waterfall ends in kitchen
- 20mm stone benchtops in bathrooms
- Staircase with clear glass balustrade & tinted posts
- Hybrid laminate flooring to ground floor
- Ducted air-conditioning with remote control
- Photovoltaic solar system
- Landscaping
- Floor to ceiling ceramic tiles
- Mirrored sliding doors
Price: $1,030,000
Bed  3 Bath  2 Car  1
Suburb: Strathnairn ACT 2615
Land Size: 290.00m²
Discover an architecturally built home ready for you to move in, in Canberra's most sustainable community - Ginninderry.

This beautiful home is one of the last opportunities to join Horizon Hill, and enjoy the very best that Ginninderry has to offer. Sitting atop one of the highest points in Strathnairn alongside a picturesque hilltop park, Horizon Hill is a centrally-located oasis with spectacular views that reach across the Murrumbidgee River and beyond to the Brindabella mountain range.

With a design inspired by the mountains and waterways that surround it, this beautiful home sets the bar high for modern eco-friendly living, featuring bright and spacious interiors that feel warm and welcoming, with designated study spaces that ensure the bedrooms and living areas aren't compromised.

Its economic and compact floorplan is cleverly designed so that every member of the family has a spot to call their own, with outdoor and alfresco areas that let you breathe in fresh air and enjoy the tranquillity. Outside is no different, with a façade that exudes style, and manicured gardens have been developed by landscape architects to seamlessly complement the home, resulting in an end product that is as picturesque as the surroundings.

NATURAL LIVING, MODERN CONVENIENCE

At Horizon Hill you'll enjoy the best in healthy living, with a host of retail, entertainment, medical and transport options on your doorstep.

- Kippax Fair Shopping Centre: 4.2km
- Westfield Belconnen: 10.8km
- Kippax bus interchange: 4.2km
- Free Strathnairn loop bus service
- Holt Medical Centre: 3.2km
- Totally Smiles Dental: 4.3km
- Holt Phyisotherapy Clinic: 3.2km
- Burns Golf Club Belconnen: 2.0km

FINISHES & INCLUSIONS.

- 900mm SMEG oven, cooktop & rangehood
- SMEG freestanding dishwasher & microwave
- 40mm stone benchtops with waterfall ends in kitchen
- 20mm stone benchtops in bathrooms
- Hybrid waterproof laminate flooring
- Ducted air-conditioning with remote control
- Photovoltaic solar system
- Landscaping
- Floor to ceiling ceramic tiles
- Mirrored sliding doors
Price: $1,030,000
Benham by Rawson Homes