Lomandra by Simonds Homes VIC

PROMOTED DISPLAY HOME

Offers scale and elegance, perfect for shared and private moments.

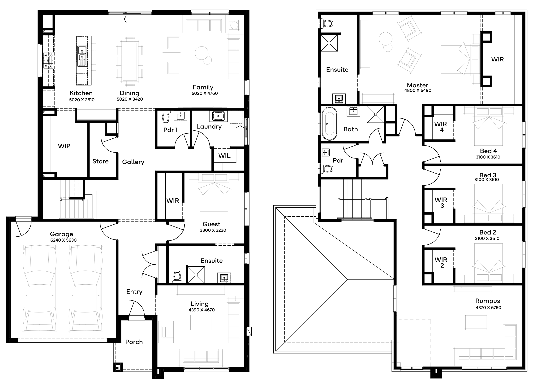
The Lomandra 43, a 5-bedroom, 3-bathroom double-storey home with 3 living spaces, combines impressive proportions with easy elegance, ideal for families desiring shared and private spaces. Designed for 16m+ blocks, the floor plan opens with a stylish living room and features a light-filled, expansive living zone with a sleek, contemporary kitchen and walk-in pantry. The ground floor includes a guest suite, while the upstairs boasts a resort-style master suite, three children's bedrooms, and a sizable rumpus room, perfect for kids' activities or family TV nights.


Floor-plan options for Lomandra

Lomandra 43
Bed 5
Bath 3
Living 3
Car 2
Home Design: Lomandra
Floor Area: 400m2
House Width: 13m
House Length: 19.5m

Display Homes & 3D Tours for Lomandra by Simonds Homes VIC

Loading...

More House and Land Packages by Simonds Homes VIC (Home Builder)

Lomandra by Simonds Homes VIC