Hallie by Vogue Homes

DISPLAY HOME

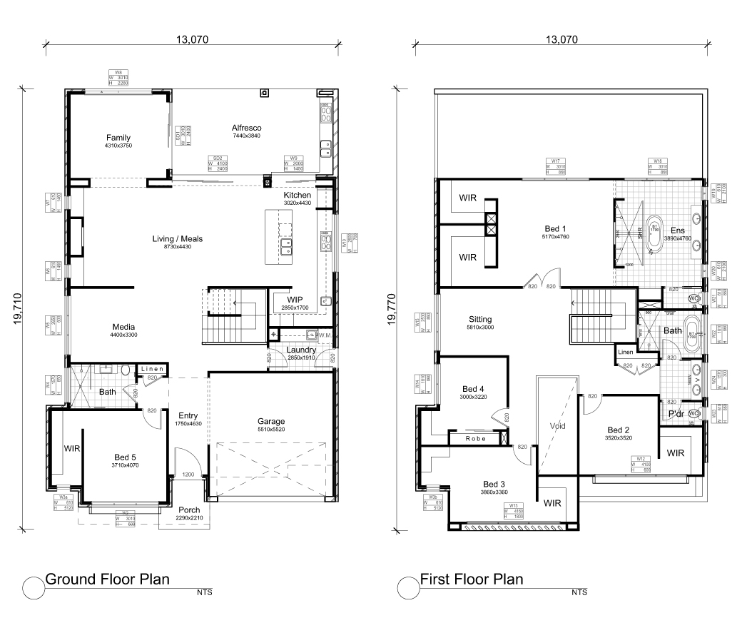
Innovative, like no other! The Hallie is a modern home design from Vogue Homes. From the unique facade through the open entry, you flow past the ground floor bedroom with en-suite and walk in robe and a concealed laundry through to the media, dining, family, kitchen and even a rumpus. A practical servery links the kitchen to the outdoor kitchen located next to the spacious alfresco. The master bedroom and en-suite need to be seen to be believed then there are 4 more bedrooms, the 3 on the first floor share a three-way bathroom and a centrally located sitting room. All are designed to give you the privacy you need in quiet times yet can be opened up for those special times with family and friends. The Hallie includes all the rooms and storage you need in an innovative yet practical and flexible design.

 


Floor-plan options for Hallie

Hallie 44
Bed 5
Bath 3
Living 2
Car 2
Builder: Vogue Homes
Home Design: Hallie
Floor Area: 411.92m2
House Width: 13.07m
House Length: 19.66m

Display Homes & 3D Tours for Hallie by Vogue Homes

Loading...
Hallie by Vogue Homes