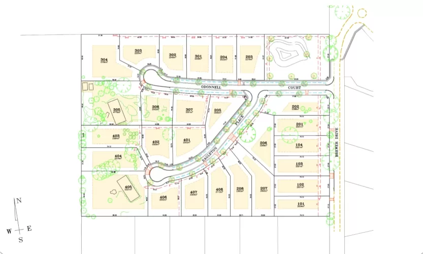
14-18 Havelock Street, Wodonga VIC 3690 IN PLANNING
This information is estimated by the OpenLot research team. Let us know here to provide up-to-date information about this development.
| Total new homes | 20 |
| Area size | 0.60 hectares |
| City council | City Of Wodonga |
| Developer | N/A |
| Distance to | Albury CBD - 6 km south |
Popular Estates near 14-18 Havelock Street, Wodonga
Updates for 14-18 Havelock Street, Wodonga
Location & Map for 14-18 Havelock Street, Wodonga
Land Price Trend in Wodonga VIC 3690
- In Oct - Dec 24, the median price for vacant land in Wodonga VIC 3690 was $210,000. *
- From Oct - Dec 17 to Oct - Dec 24, the median price for vacant land in Wodonga VIC 3690 has increased 51.08%. *
- From 2008 to 2024, the median price for vacant land in Wodonga VIC 3690 has increased 80%. *
Vacancy Rate in Wodonga VIC 3690
View full vacancy rate history in Wodonga VIC 3690 via SQM Research.
Schools near 14-18 Havelock Street, Wodonga
Here are 6 schools near 14-18 Havelock Street, Wodonga:
Prep-6 Government Primary School
9-12 Independent Special School - School Head Campus
3-9 Government Combined School - School Head Campus
Prep-6 Catholic Primary School
7-12 Government Secondary School - School Head Campus
Prep-6 Government Primary School
Reviews & Comments on 14-18 Havelock Street, Wodonga
FAQs about 14-18 Havelock Street, Wodonga
- Wodonga Primary School - 585m south
- Indie School Wodonga - 678m north
- Wodonga Middle Years College - 760m south
- St Augustine's School - 791m north
- Wodonga Senior Secondary College - 1.0km west
- Wodonga West Primary School - 1.3km west
Popular Estates near 14-18 Havelock Street, Wodonga
Latest New Home Articles for You
19/Aug/2025 | OpenLot.com.au
🏡 Suburb Profile: Beveridge
Beveridge is within the Mitchell Shire, located 42 kilometres north of Me...
19/Aug/2025 | OpenLot.com.au
test2
19/Aug/2025 | OpenLot.com.au
tests
13/Jun/2025 | OpenLot.com.au
Display Homes at Playford Alive Estate: A Thriving Community at the Heart of Munno Para
Welcome to Playford Alive, a vibrant and dynamic masterplanned community ...
11/Jun/2025 | OpenLot.com.au
Display Homes at Ocean Hill Estate: A Thriving Community by the Coast
A short stroll from the white sands of Madora Beach and fringed by the co...
10/Jun/2025 | OpenLot.com.au
Display Homes at Bluestone Estate: An Established Community in the Mount Barker
Whether you’re a first home buyer, a growing family, or looking to downsi...
09/Jun/2025 | OpenLot.com.au
Queensland Leads, But NSW and VIC Fall Behind, in New Housing Buyer Demand Index
New data reveals that Australia’s new housing market remains resilient de...
06/Jun/2025 | OpenLot.com.au
Display Homes at Minters Fields Estate: A Scenic Hillside Community in Mount Barker
Nestled in the heart of Mount Barker, Minters Fields offers a truly remar...
03/Jun/2025 | OpenLot.com.au
🏡 Step Inside a Frenken Home at Smiths Lane
During a recent visit to the Smiths Lane display village, OpenLot.com.au ...