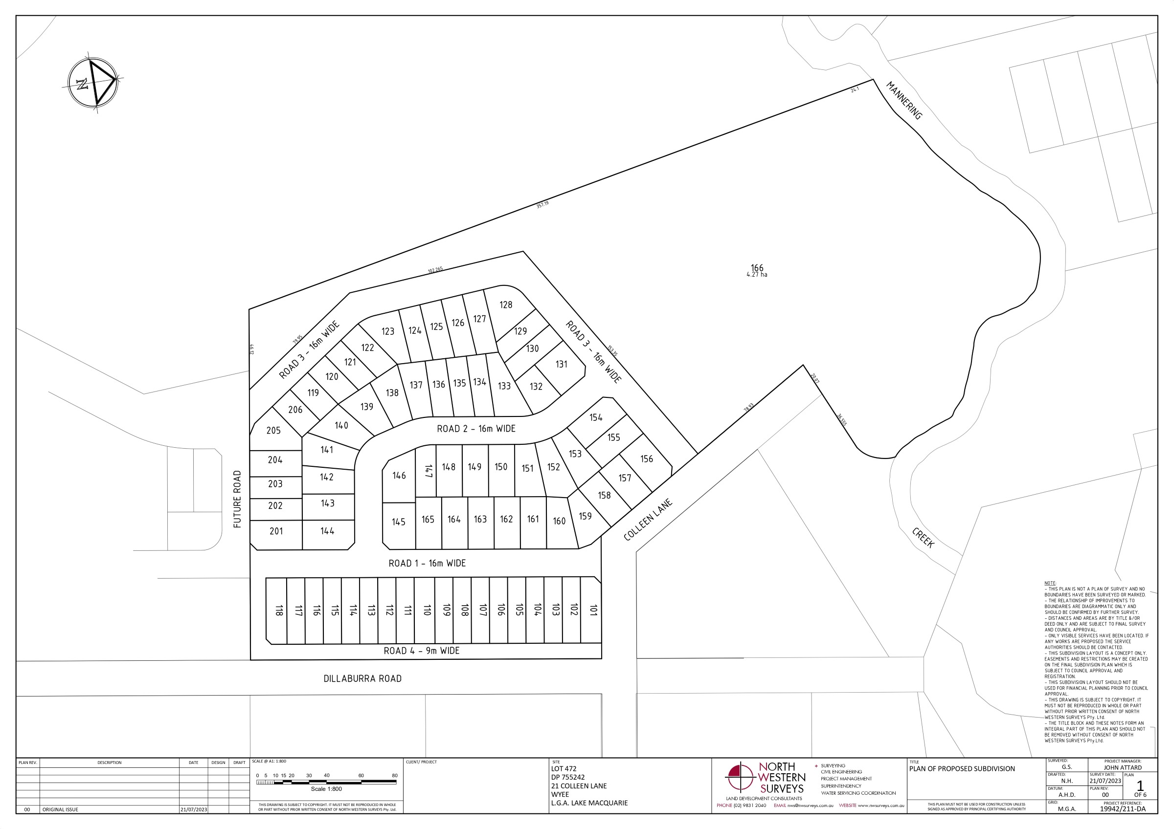
21 Colleen Lane, Wyee NSW 2259 IN PLANNING
This information is estimated by the OpenLot research team. Let us know here to provide up-to-date information about this development.
| Total new homes | 73 |
| Area size | 8.74 hectares |
| Growth Region | Greater Newcastle Growth Areas (The Hunter Region) |
| City council | Lake Macquarie City Council |
| Developer | Landen |
| Distance to | Newcastle CBD - 39 km south-west Sydney CBD - 81 km north |
Popular Estates near 21 Colleen Lane, Wyee
Updates for 21 Colleen Lane, Wyee
Location & Map for 21 Colleen Lane, Wyee
Visit Display Homes near 21 Colleen Lane, Wyee
Schools near 21 Colleen Lane, Wyee
Here are 6 schools near 21 Colleen Lane, Wyee:
K-6 Government Primary School
K-6 Government Primary School
9-10 Independent Special School
K-6 Government Primary School
7-12 Government Secondary School
K-6 Government Primary School
Reviews & Comments on 21 Colleen Lane, Wyee
FAQs about 21 Colleen Lane, Wyee
View all estates from Landen
- Wyee Public School - 548m north
- Blue Haven Public School - 4.1km south-east
- The Lakes College - 4.2km south-east
- Northlakes Public School - 4.9km south-east
- Northlakes High School - 5.0km south-east
- Mannering Park Public School - 5.6km north-east
Popular Estates near 21 Colleen Lane, Wyee
Latest New Home Articles for You
19/Aug/2025 | OpenLot.com.au
🏡 Suburb Profile: Beveridge
Beveridge is within the Mitchell Shire, located 42 kilometres north of Me...
19/Aug/2025 | OpenLot.com.au
test2
19/Aug/2025 | OpenLot.com.au
tests
13/Jun/2025 | OpenLot.com.au
Display Homes at Playford Alive Estate: A Thriving Community at the Heart of Munno Para
Welcome to Playford Alive, a vibrant and dynamic masterplanned community ...
11/Jun/2025 | OpenLot.com.au
Display Homes at Ocean Hill Estate: A Thriving Community by the Coast
A short stroll from the white sands of Madora Beach and fringed by the co...
10/Jun/2025 | OpenLot.com.au
Display Homes at Bluestone Estate: An Established Community in the Mount Barker
Whether you’re a first home buyer, a growing family, or looking to downsi...
09/Jun/2025 | OpenLot.com.au
Queensland Leads, But NSW and VIC Fall Behind, in New Housing Buyer Demand Index
New data reveals that Australia’s new housing market remains resilient de...
06/Jun/2025 | OpenLot.com.au
Display Homes at Minters Fields Estate: A Scenic Hillside Community in Mount Barker
Nestled in the heart of Mount Barker, Minters Fields offers a truly remar...
03/Jun/2025 | OpenLot.com.au
🏡 Step Inside a Frenken Home at Smiths Lane
During a recent visit to the Smiths Lane display village, OpenLot.com.au ...