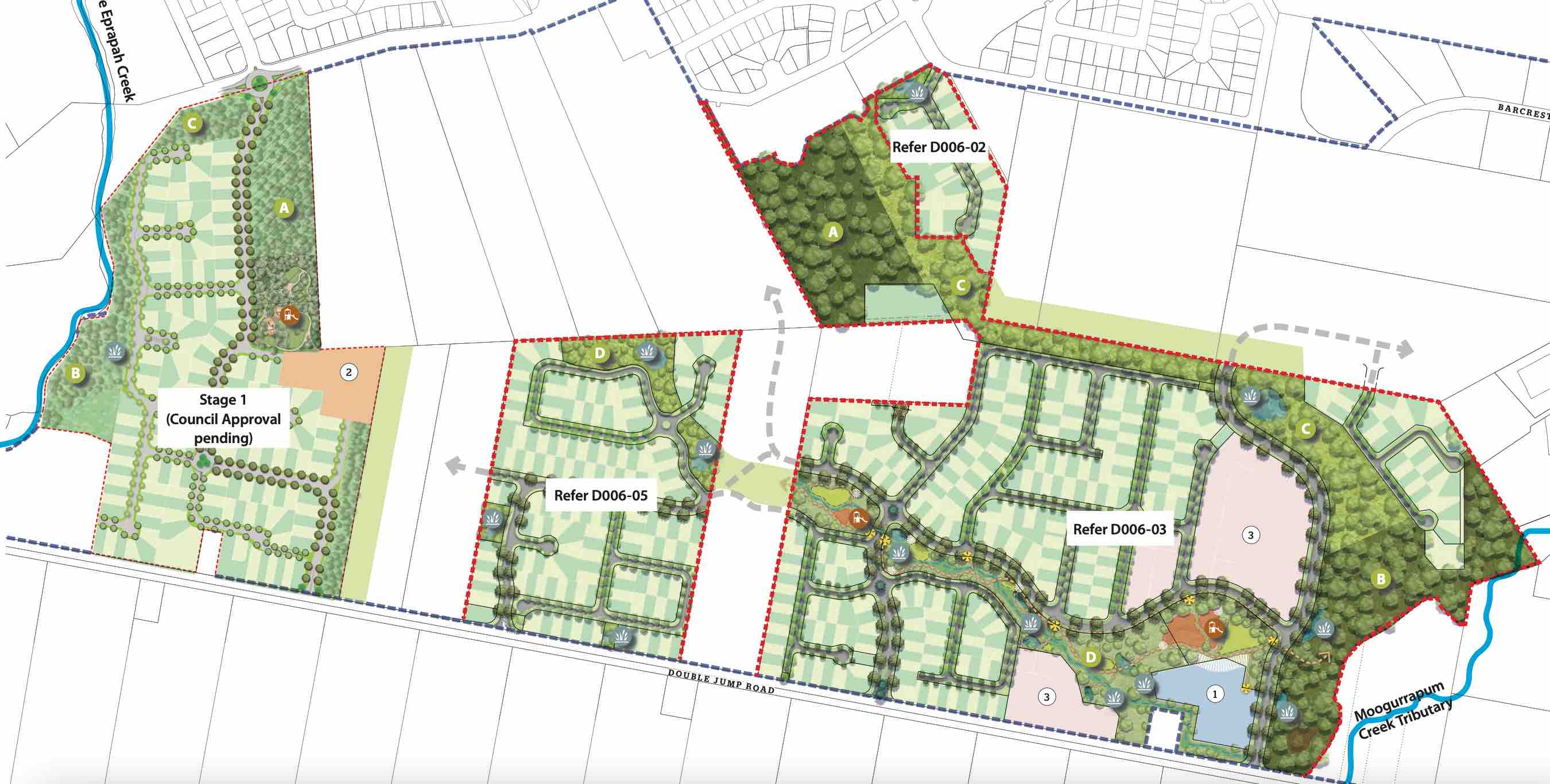
36-66 Double Jump Road, Victoria Point QLD 4165 IN PLANNING
This information is estimated by the OpenLot research team. Let us know here to provide up-to-date information about this development.
| Total new homes | 471 |
| Area size | 23.95 hectares |
| Growth Region | Greater Brisbane Growth Areas |
| City council | Redland City Council |
| Developer | N/A |
| Distance to | Brisbane Airport - 27 km south-east Brisbane CBD - 28 km south-east Gold Coast CBD - 48 km north |
Popular Estates near 36-66 Double Jump Road, Victoria Point
Updates for 36-66 Double Jump Road, Victoria Point
Location & Map for 36-66 Double Jump Road, Victoria Point
Visit Display Homes near 36-66 Double Jump Road, Victoria Point
Vacancy Rate in Victoria Point QLD 4165
View full vacancy rate history in Victoria Point QLD 4165 via SQM Research.
Schools near 36-66 Double Jump Road, Victoria Point
Here are 6 schools near 36-66 Double Jump Road, Victoria Point:
7-12 Government Secondary School
Prep-6 Catholic Primary School
10-12 Independent Special School
Prep-12 Independent Combined School - School Head Campus
Prep-6 Government Primary School
Prep-6 Government Primary School
Reviews & Comments on 36-66 Double Jump Road, Victoria Point
FAQs about 36-66 Double Jump Road, Victoria Point
- Victoria Point State High School - 1.8km east
- St Rita's Primary School - 2.5km north-east
- YMCA Vocational School - Redlands - 2.8km north-east
- Faith Lutheran College - Redlands - 2.9km north-east
- Redland Bay State School - 2.9km south-east
- Victoria Point State School - 3.2km north-east
Popular Estates near 36-66 Double Jump Road, Victoria Point
Latest New Home Articles for You
19/Aug/2025 | OpenLot.com.au
🏡 Suburb Profile: Beveridge
Beveridge is within the Mitchell Shire, located 42 kilometres north of Me...
19/Aug/2025 | OpenLot.com.au
test2
19/Aug/2025 | OpenLot.com.au
tests
13/Jun/2025 | OpenLot.com.au
Display Homes at Playford Alive Estate: A Thriving Community at the Heart of Munno Para
Welcome to Playford Alive, a vibrant and dynamic masterplanned community ...
11/Jun/2025 | OpenLot.com.au
Display Homes at Ocean Hill Estate: A Thriving Community by the Coast
A short stroll from the white sands of Madora Beach and fringed by the co...
10/Jun/2025 | OpenLot.com.au
Display Homes at Bluestone Estate: An Established Community in the Mount Barker
Whether you’re a first home buyer, a growing family, or looking to downsi...
09/Jun/2025 | OpenLot.com.au
Queensland Leads, But NSW and VIC Fall Behind, in New Housing Buyer Demand Index
New data reveals that Australia’s new housing market remains resilient de...
06/Jun/2025 | OpenLot.com.au
Display Homes at Minters Fields Estate: A Scenic Hillside Community in Mount Barker
Nestled in the heart of Mount Barker, Minters Fields offers a truly remar...
03/Jun/2025 | OpenLot.com.au
🏡 Step Inside a Frenken Home at Smiths Lane
During a recent visit to the Smiths Lane display village, OpenLot.com.au ...