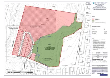
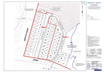
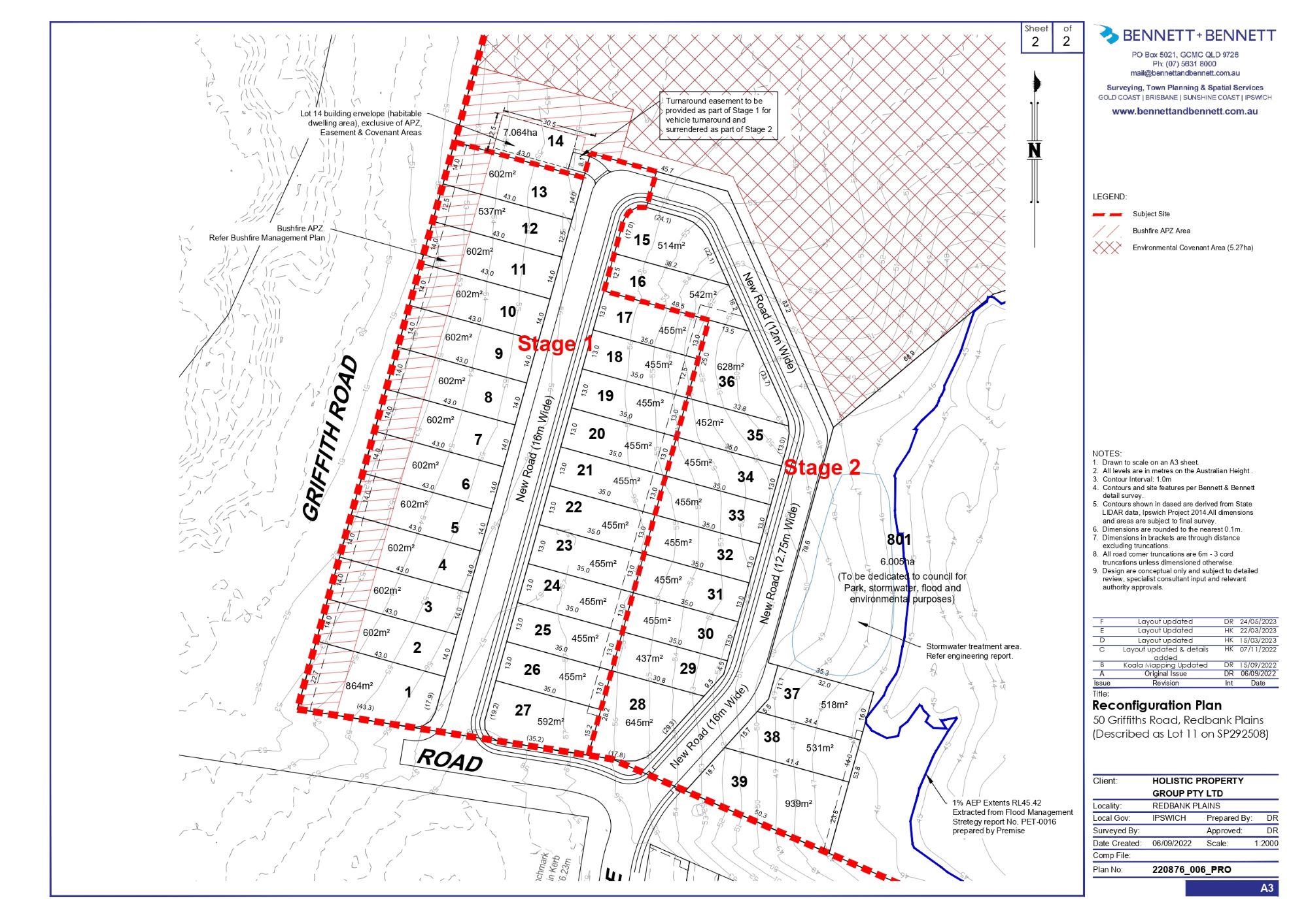
50 Griffiths Road, Redbank Plains QLD 4301 IN PLANNING
This information is estimated by the OpenLot research team. Let us know here to provide up-to-date information about this development.
| Total new homes | 39 |
| Area size | 15.62 hectares |
| Growth Region | Greater Brisbane Growth Areas |
| City council | Ipswich City Council |
| Developer | N/A |
| Distance to | Brisbane CBD - 27 km south-west Brisbane Airport - 40 km south-west |
Popular Estates near 50 Griffiths Road, Redbank Plains
Updates for 50 Griffiths Road, Redbank Plains
Location & Map for 50 Griffiths Road, Redbank Plains
Visit Display Homes near 50 Griffiths Road, Redbank Plains
Vacancy Rate in Redbank Plains QLD 4301
View full vacancy rate history in Redbank Plains QLD 4301 via SQM Research.
Schools near 50 Griffiths Road, Redbank Plains
Here are 6 schools near 50 Griffiths Road, Redbank Plains:
Prep-6 Catholic Primary School
Prep-6 Government Primary School
Prep-6 Government Primary School
Prep-12 Independent Combined School
Prep-6 Government Primary School
7-12 Government Secondary School
Reviews & Comments on 50 Griffiths Road, Redbank Plains
FAQs about 50 Griffiths Road, Redbank Plains
- St Ann's School - 621m north-east
- Fernbrooke State School - 922m south-east
- Redbank Plains State School - 1.3km north-east
- Staines Memorial College - 2.0km south-east
- WoodLinks State School - 2.9km north-east
- Redbank Plains State High School - 2.9km east
Popular Estates near 50 Griffiths Road, Redbank Plains
Latest New Home Articles for You
19/Aug/2025 | OpenLot.com.au
🏡 Suburb Profile: Beveridge
Beveridge is within the Mitchell Shire, located 42 kilometres north of Me...
19/Aug/2025 | OpenLot.com.au
test2
19/Aug/2025 | OpenLot.com.au
tests
13/Jun/2025 | OpenLot.com.au
Display Homes at Playford Alive Estate: A Thriving Community at the Heart of Munno Para
Welcome to Playford Alive, a vibrant and dynamic masterplanned community ...
11/Jun/2025 | OpenLot.com.au
Display Homes at Ocean Hill Estate: A Thriving Community by the Coast
A short stroll from the white sands of Madora Beach and fringed by the co...
10/Jun/2025 | OpenLot.com.au
Display Homes at Bluestone Estate: An Established Community in the Mount Barker
Whether you’re a first home buyer, a growing family, or looking to downsi...
09/Jun/2025 | OpenLot.com.au
Queensland Leads, But NSW and VIC Fall Behind, in New Housing Buyer Demand Index
New data reveals that Australia’s new housing market remains resilient de...
06/Jun/2025 | OpenLot.com.au
Display Homes at Minters Fields Estate: A Scenic Hillside Community in Mount Barker
Nestled in the heart of Mount Barker, Minters Fields offers a truly remar...
03/Jun/2025 | OpenLot.com.au
🏡 Step Inside a Frenken Home at Smiths Lane
During a recent visit to the Smiths Lane display village, OpenLot.com.au ...