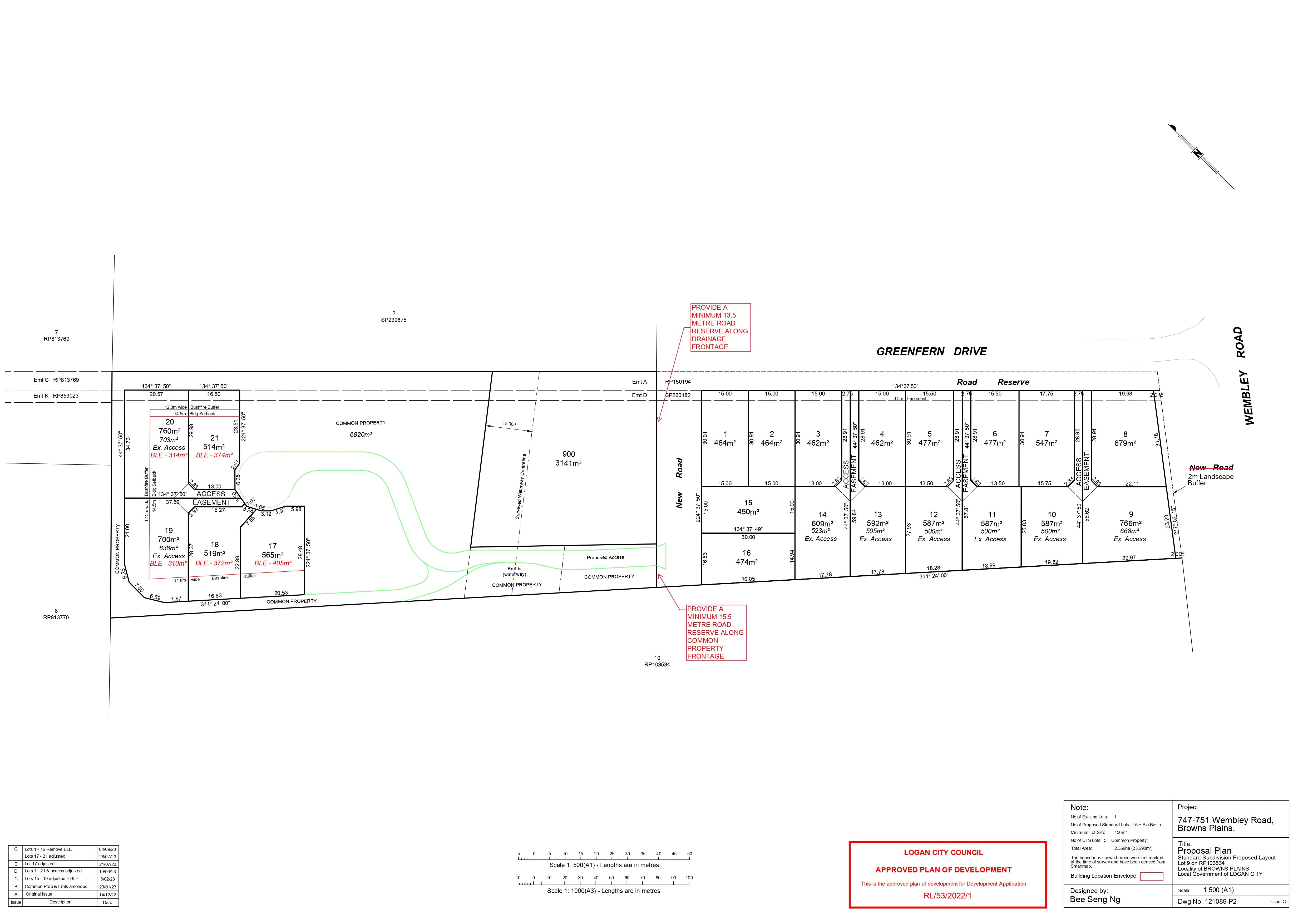
747-751 Wembley Road, Browns Plains QLD 4118 IN PLANNING
This information is estimated by the OpenLot research team. Let us know here to provide up-to-date information about this development.
| Total new homes | 21 |
| Area size | 2.37 hectares |
| Growth Region | Greater Brisbane Growth Areas |
| City council | Logan City Council |
| Developer | N/A |
| Distance to | Brisbane CBD - 21 km south Brisbane Airport - 30 km south |
Popular Estates near 747-751 Wembley Road, Browns Plains
Updates for 747-751 Wembley Road, Browns Plains
Location & Map for 747-751 Wembley Road, Browns Plains
Visit Display Homes near 747-751 Wembley Road, Browns Plains
Vacancy Rate in Browns Plains QLD 4118
View full vacancy rate history in Browns Plains QLD 4118 via SQM Research.
Schools near 747-751 Wembley Road, Browns Plains
Here are 6 schools near 747-751 Wembley Road, Browns Plains:
Prep-6 Government Primary School
9-12 Independent Secondary School - School Head Campus
7-12 Government Secondary School
Prep-12 Government Combined School
Prep-6 Government Primary School
Reviews & Comments on 747-751 Wembley Road, Browns Plains
FAQs about 747-751 Wembley Road, Browns Plains
- Browns Plains State School - 1.7km south-west
- Indie School, Logan - 1.9km south-west
- Browns Plains State High School - 1.9km south-west
- Stretton State College - 2.0km north
- Yugumbir State School - 2.7km south-west
Popular Estates near 747-751 Wembley Road, Browns Plains
Latest New Home Articles for You
19/Aug/2025 | OpenLot.com.au
🏡 Suburb Profile: Beveridge
Beveridge is within the Mitchell Shire, located 42 kilometres north of Me...
19/Aug/2025 | OpenLot.com.au
test2
19/Aug/2025 | OpenLot.com.au
tests
13/Jun/2025 | OpenLot.com.au
Display Homes at Playford Alive Estate: A Thriving Community at the Heart of Munno Para
Welcome to Playford Alive, a vibrant and dynamic masterplanned community ...
11/Jun/2025 | OpenLot.com.au
Display Homes at Ocean Hill Estate: A Thriving Community by the Coast
A short stroll from the white sands of Madora Beach and fringed by the co...
10/Jun/2025 | OpenLot.com.au
Display Homes at Bluestone Estate: An Established Community in the Mount Barker
Whether you’re a first home buyer, a growing family, or looking to downsi...
09/Jun/2025 | OpenLot.com.au
Queensland Leads, But NSW and VIC Fall Behind, in New Housing Buyer Demand Index
New data reveals that Australia’s new housing market remains resilient de...
06/Jun/2025 | OpenLot.com.au
Display Homes at Minters Fields Estate: A Scenic Hillside Community in Mount Barker
Nestled in the heart of Mount Barker, Minters Fields offers a truly remar...
03/Jun/2025 | OpenLot.com.au
🏡 Step Inside a Frenken Home at Smiths Lane
During a recent visit to the Smiths Lane display village, OpenLot.com.au ...