91 Inglis Street, Ballan VIC 3342
[limited offer] CONTEMPORARY HOMES IN THE HEART OF BALLAN
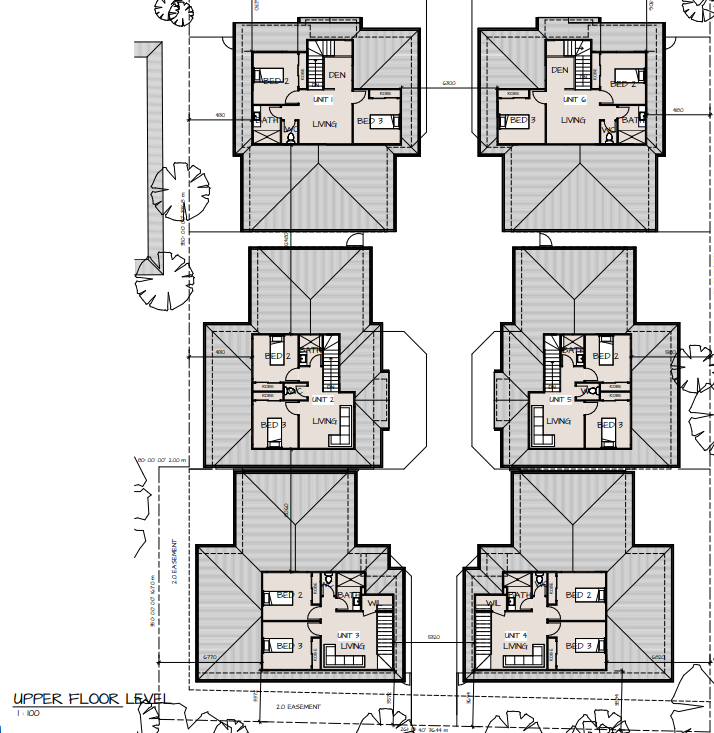
- Choose from 6 quality built double storey townhouses, all in the heart of town.
- 3 Bedrooms, all with walk in or built in robes
- 2.5 bathrooms
- Kitchen with separate dining.
This information is estimated by the OpenLot research team. Let us know here to provide up-to-date information about this development.
| Total new homes | 6 |
| Area size | 0.18 hectares |
| City council | Moorabool Shire Council |
| Developer | N/A |
| Project marketer | McFall Real Estate |
| Distance to | Melbourne CBD - 69 km west |
Townhomes:
Popular Estates near 91 Inglis Street, Ballan
Updates for 91 Inglis Street, Ballan
Location & Map for 91 Inglis Street, Ballan
Land Price Trend in Ballan VIC 3342
- In Jul - Sep 23, the median price for vacant land in Ballan VIC 3342 was $350,000. *
- From Oct - Dec 17 to Jul - Sep 23, the median price for vacant land in Ballan VIC 3342 has increased 133.33%. *
- From 2008 to 2023, the median price for vacant land in Ballan VIC 3342 has increased 286.08%. *
Schools near 91 Inglis Street, Ballan
Here are 6 schools near 91 Inglis Street, Ballan:
Prep-6 Government Primary School
Prep-6 Catholic Primary School
Prep-6 Government Primary School
Prep-6 Government Primary School
Prep-5 Government Primary School
Prep-6 Catholic Primary School
Reviews & Comments on 91 Inglis Street, Ballan
Estate Brochure, Masterplan, Engineering Plan, Plan of Subdivision (POS), Design Guidelines
FAQs about 91 Inglis Street, Ballan
View all estates marketed by McFall Real Estate
- Ballan Primary School - 145m south-east
- St Brigid's School - 148m north-west
- Myrniong Primary School - 10.5km east
- Gordon Primary School - 11.2km west
- Mount Egerton Primary School - 11.7km west
- St Patrick's School - 12.5km west
Popular Estates near 91 Inglis Street, Ballan
Latest New Home Articles for You
19/Aug/2025 | OpenLot.com.au
🏡 Suburb Profile: Beveridge
Beveridge is within the Mitchell Shire, located 42 kilometres north of Me...
19/Aug/2025 | OpenLot.com.au
test2
19/Aug/2025 | OpenLot.com.au
tests
13/Jun/2025 | OpenLot.com.au
Display Homes at Playford Alive Estate: A Thriving Community at the Heart of Munno Para
Welcome to Playford Alive, a vibrant and dynamic masterplanned community ...
11/Jun/2025 | OpenLot.com.au
Display Homes at Ocean Hill Estate: A Thriving Community by the Coast
A short stroll from the white sands of Madora Beach and fringed by the co...
10/Jun/2025 | OpenLot.com.au
Display Homes at Bluestone Estate: An Established Community in the Mount Barker
Whether you’re a first home buyer, a growing family, or looking to downsi...
09/Jun/2025 | OpenLot.com.au
Queensland Leads, But NSW and VIC Fall Behind, in New Housing Buyer Demand Index
New data reveals that Australia’s new housing market remains resilient de...
06/Jun/2025 | OpenLot.com.au
Display Homes at Minters Fields Estate: A Scenic Hillside Community in Mount Barker
Nestled in the heart of Mount Barker, Minters Fields offers a truly remar...
03/Jun/2025 | OpenLot.com.au
🏡 Step Inside a Frenken Home at Smiths Lane
During a recent visit to the Smiths Lane display village, OpenLot.com.au ...