Albright Estate - Truganina SOLD OUT
This information is estimated by the OpenLot research team. Let us know here to provide up-to-date information about this development.
| Total new homes | 500 |
| Area size | N/A |
| Growth Region | Melbourne West Growth Corridor |
| City council | Wyndham City Council |
| Developer | Villawood Properties |
| Creative agency | Vive Group |
| Distance to | Melbourne Airport - 20 km south-west Melbourne CBD - 21 km west |
Land for Sale, House and Land Packages:
Popular Estates near Albright Estate - Truganina
Updates for Albright Estate - Truganina
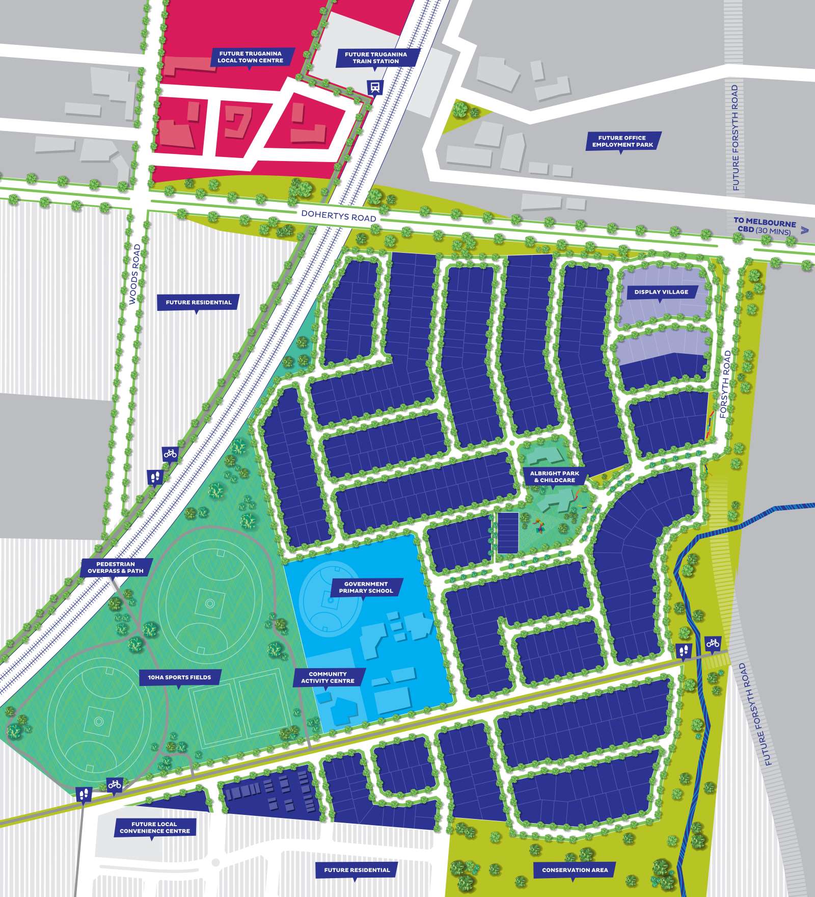
Location & Map for Albright Estate - Truganina
Visit Display Homes near Albright Estate - Truganina
Land Price Trend in Truganina VIC 3029
- In Oct - Dec 24, the median price for vacant land in Truganina VIC 3029 was $347,500. *
- From Oct - Dec 17 to Oct - Dec 24, the median price for vacant land in Truganina VIC 3029 has increased 0.72%. *
- From 2008 to 2024, the median price for vacant land in Truganina VIC 3029 has increased 150.72%. *
Vacancy Rate in Truganina VIC 3029
View full vacancy rate history in Truganina VIC 3029 via SQM Research.
Schools near Albright Estate - Truganina
Here are 6 schools near Albright Estate - Truganina:
Prep-6 Government Primary School
Prep-9 Government Combined School
Prep-6 Catholic Primary School
Prep-9 Government Combined School
Prep-12 Independent Combined School - School Head Campus
Prep-12 Independent Combined School - School Head Campus
Reviews & Comments on Albright Estate - Truganina
FAQs about Albright Estate - Truganina
View all estates from Villawood Properties
- Garrang Wilam Primary School - 131m south-west
- Truganina P-9 College - 1.4km south-west
- St Clare's Catholic Primary School - 1.9km south
- Dohertys Creek P-9 College - 2.0km south-east
- Westbourne Grammar School - 2.6km south
- Al-Taqwa College - 2.9km south
Popular Estates near Albright Estate - Truganina
Latest New Home Articles for You
19/Aug/2025 | OpenLot.com.au
🏡 Suburb Profile: Beveridge
Beveridge is within the Mitchell Shire, located 42 kilometres north of Me...
19/Aug/2025 | OpenLot.com.au
test2
19/Aug/2025 | OpenLot.com.au
tests
13/Jun/2025 | OpenLot.com.au
Display Homes at Playford Alive Estate: A Thriving Community at the Heart of Munno Para
Welcome to Playford Alive, a vibrant and dynamic masterplanned community ...
11/Jun/2025 | OpenLot.com.au
Display Homes at Ocean Hill Estate: A Thriving Community by the Coast
A short stroll from the white sands of Madora Beach and fringed by the co...
10/Jun/2025 | OpenLot.com.au
Display Homes at Bluestone Estate: An Established Community in the Mount Barker
Whether you’re a first home buyer, a growing family, or looking to downsi...
09/Jun/2025 | OpenLot.com.au
Queensland Leads, But NSW and VIC Fall Behind, in New Housing Buyer Demand Index
New data reveals that Australia’s new housing market remains resilient de...
06/Jun/2025 | OpenLot.com.au
Display Homes at Minters Fields Estate: A Scenic Hillside Community in Mount Barker
Nestled in the heart of Mount Barker, Minters Fields offers a truly remar...
03/Jun/2025 | OpenLot.com.au
🏡 Step Inside a Frenken Home at Smiths Lane
During a recent visit to the Smiths Lane display village, OpenLot.com.au ...