Allamanda Vista Estate - Helena Valley
This information is estimated by the OpenLot research team. Let us know here to provide up-to-date information about this development.
| Total new homes | 65 |
| Area size | N/A |
| City council | Shire of Mundaring |
| Developer | Jardim Property Group |
| Creative agency | Chip Digital |
Land for Sale, House and Land Packages:
Popular Estates near Allamanda Vista Estate - Helena Valley
Updates for Allamanda Vista Estate - Helena Valley
Location & Map for Allamanda Vista Estate - Helena Valley
Visit Display Homes near Allamanda Vista Estate - Helena Valley
Vacancy Rate in Helena Valley WA 6056
View full vacancy rate history in Helena Valley WA 6056 via SQM Research.
Schools near Allamanda Vista Estate - Helena Valley
Here are 6 schools near Allamanda Vista Estate - Helena Valley:
K-6 Government Primary School
PP-6 Catholic Primary School
K-6 Government Primary School
K-6 Government Primary School
K-6 Government Primary School
Reviews & Comments on Allamanda Vista Estate - Helena Valley
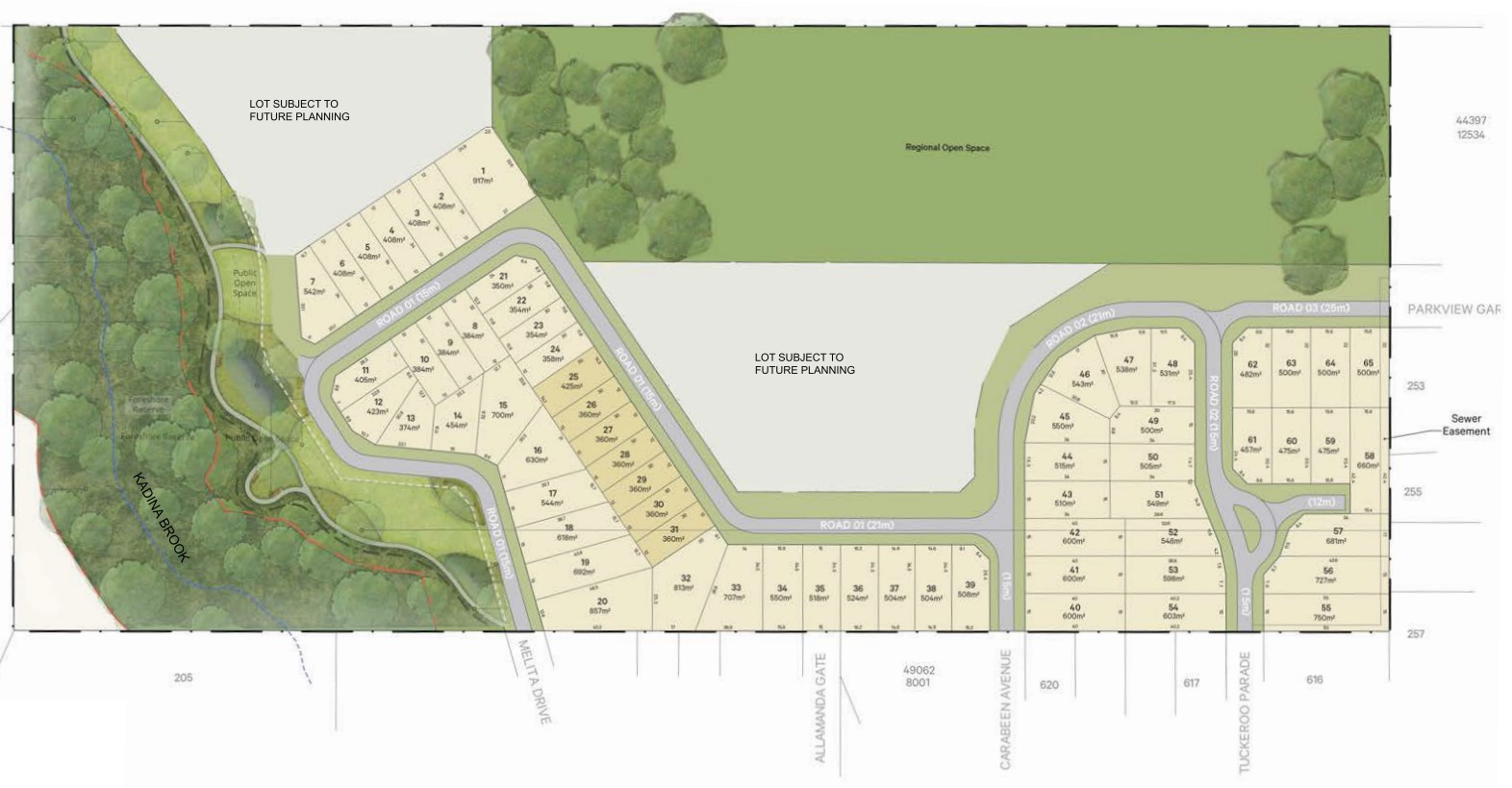
Estate Brochure, Masterplan, Engineering Plan, Plan of Subdivision (POS), Design Guidelines
FAQs about Allamanda Vista Estate - Helena Valley
View all estates from Jardim Property Group
- Clayton View Primary School - 1.5km east
- St Anthony's School - 2.3km north-east
- Greenmount Primary School - 2.6km north-east
- Midvale Primary School - 2.6km north
- Helena Valley Primary School - 2.6km south-east
Popular Estates near Allamanda Vista Estate - Helena Valley
Latest New Home Articles for You
19/Aug/2025 | OpenLot.com.au
🏡 Suburb Profile: Beveridge
Beveridge is within the Mitchell Shire, located 42 kilometres north of Me...
19/Aug/2025 | OpenLot.com.au
test2
19/Aug/2025 | OpenLot.com.au
tests
13/Jun/2025 | OpenLot.com.au
Display Homes at Playford Alive Estate: A Thriving Community at the Heart of Munno Para
Welcome to Playford Alive, a vibrant and dynamic masterplanned community ...
11/Jun/2025 | OpenLot.com.au
Display Homes at Ocean Hill Estate: A Thriving Community by the Coast
A short stroll from the white sands of Madora Beach and fringed by the co...
10/Jun/2025 | OpenLot.com.au
Display Homes at Bluestone Estate: An Established Community in the Mount Barker
Whether you’re a first home buyer, a growing family, or looking to downsi...
09/Jun/2025 | OpenLot.com.au
Queensland Leads, But NSW and VIC Fall Behind, in New Housing Buyer Demand Index
New data reveals that Australia’s new housing market remains resilient de...
06/Jun/2025 | OpenLot.com.au
Display Homes at Minters Fields Estate: A Scenic Hillside Community in Mount Barker
Nestled in the heart of Mount Barker, Minters Fields offers a truly remar...
03/Jun/2025 | OpenLot.com.au
🏡 Step Inside a Frenken Home at Smiths Lane
During a recent visit to the Smiths Lane display village, OpenLot.com.au ...