PROMOTED
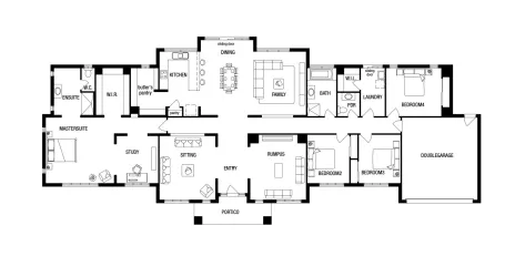
The Denver by Metricon, an impressive entry and an open plan area with a centrally located kitchen, dining and family room, perfect for entertaining.
Package Includes:
Generous site works allowance
Stunning facade included
2550 Ceilings
Floor coverings throughout
Stone bencetops to Kitchen & Bathrooms 900mm Cooker & Rangehood
Dishwasher
Soft close kitchen
Flush tiled shower bases
20 pack LED downlights
12.5 BAL Requirements
Personlised colour selection with an interior designer
Fibre optic package
Evaporative cooling
This sought after reserve facing corner lot in Ambrosia offers 2000m2 of premium space to build your ultimate ranch styled home. At 33m x 55m this allotment is a boat or caravan owners dream. Check out Ambrosia a boutique development of only 65 lots ranging in size from 2,000m2 to 7,856m2 within the beautiful township of Kyneton, in the stunning Macedon Ranges, less than 1 hour from Melbourne.
Our office is open Saturday / Sundays 12pm - 2pm.
Land Inspections from 2pm - 3pm. Please contact Madden for more details
Metricon Homes
Lot 7 85 Harpers Lane Kyneton: Denver 34 Available
Bed  4 Bath  2.5 Car  2
Home Design: Denver 34
Land Size: 2,008.00m²
Price: $1,326,379

Development Info of Ambrosia Estate - Kyneton

Total new homes 65
Area size 24.06 hectares
Growth Region Melbourne North Growth Corridor
City council Macedon Ranges Shire Council
Developer Urban Land Developments
Project marketer Oliver Hume Real Estate Group
Creative agency Ivy Street
Distance to Melbourne CBD - 77 km north-west

Location & Map for Ambrosia Estate - Kyneton

Loading...

More House and Land Packages in Ambrosia Estate - Kyneton

Bed  4 Bath  2 Car  2
Land Size: 3,004.00m²
A wide frontage creates a warm welcome and gives this single-level home charming street presence.
Bright and airy spaces are part of its liveable and relaxed appeal, as well as a design focus on comfort and character.
The open-plan lounge and dining area forms a central living space that brings everyone together, while an adjoining dual-entry theatre room offers another place to unwind.
A farmhouse-style kitchen overlooks the main family living area and is within easy reach of the alfresco zone, where expansive glass sliding doors provide seamless connection between indoors and out.
The family-friendly layout cleverly groups the kids’ bedrooms in a dedicated wing at one end, together with a bathroom, rumpus, laundry and mud room, while the master bedroom with an indulgent walk-in wardrobe and lavish ensuite is at the opposite end of the home for extra privacy.
Other features include a separate study, walk-in linen cupboard, convenient key-drop zone and double garage.

· Stunning façade included
· Double glazing (including sliding doors)
· Quality floor coverings throughout
· 2550mm high ceilings to ground floor
· LEDE ownlights to entry, kitchen and living
· Soft closers to all kitchen, laundry, vanity drawers and doors · ILVE 900mm wide oven, cooktop and rangehood
· 40mm Caesarstone kitchen benchtops
· 20mm Caesarstone to bathroom benchtops
· Quality Caroma basins and tapware
· Overhead cupboards adjacent to rangehood
· Tiled splashback
· 25 Year Structural Guarantee
· 12 Year Maintenance
Experience a tranquil lifestyle. Away from the hustle and bustle of urban living, this semi-rural 3000m2 block offers that peaceful setting you’ve always yearned for! 44meters of frontage provides ample opportunity to build your forever home.
Take advantage of Ambrosia, a beautiful boutique development of only 65 lots ranging in size from 2,000m2 to 7,856m2 within the beautiful township of Kyneton, in the stunning Macedon Ranges, less than 1 hour from Melbourne. Our office is open Saturday / Sundays 12pm - 2pm. Land Inspections from 2pm - 3pm. Please contact Madden for more details
Price: $1,403,600

Land Price Trend in Kyneton VIC 3444

  • In Apr - Jun 23, the median price for vacant land in Kyneton VIC 3444 was $390,000. *
  • From Oct - Dec 17 to Apr - Jun 23, the median price for vacant land in Kyneton VIC 3444 has increased 77.27%. *
  • From 2008 to 2023, the median price for vacant land in Kyneton VIC 3444 has increased 302.06%. *
* Price data comes from Valuer-General Victoria on 05/06/25

Vacancy Rate in Kyneton VIC 3444

View full vacancy rate history in Kyneton VIC 3444 via SQM Research.


Schools near Ambrosia Estate - Kyneton

Here are 6 schools near Ambrosia Estate - Kyneton:

Lot 7: Denver 34 by Metricon Homes
Ambrosia Estate - Kyneton