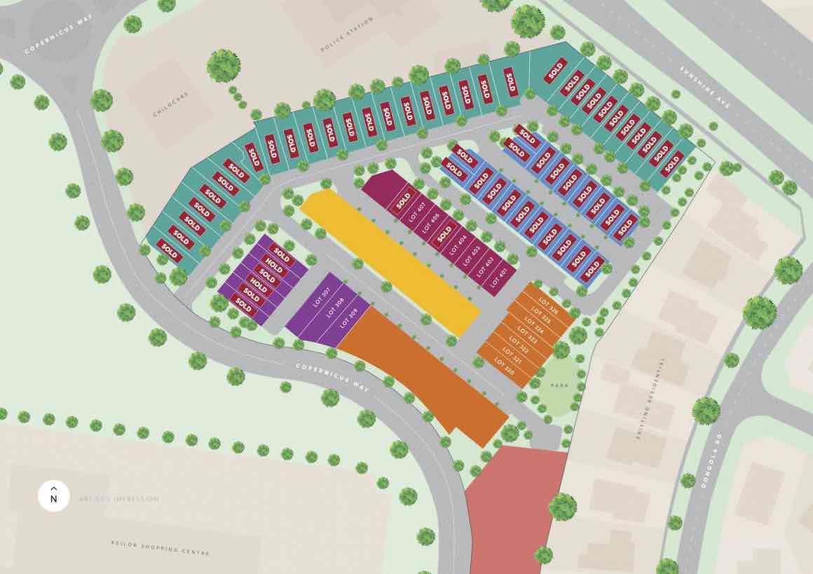
Aspect Residences Estate - Keilor Downs SOLD OUT
This information is estimated by the OpenLot research team. Let us know here to provide up-to-date information about this development.
| Total new homes | 110 |
| Area size | 1.90 hectares |
| Growth Region | Melbourne West Growth Corridor |
| City council | Brimbank City Council |
| Developer | SOHO Living |
| Creative agency | Sense Creative Agency |
| Distance to | Melbourne Airport - 7 km south-west Melbourne CBD - 17 km north-west |
Townhomes:
Popular Estates near Aspect Residences Estate - Keilor Downs
Updates for Aspect Residences Estate - Keilor Downs
Location & Map for Aspect Residences Estate - Keilor Downs
Visit Display Homes near Aspect Residences Estate - Keilor Downs
Vacancy Rate in Keilor Downs VIC 3038
View full vacancy rate history in Keilor Downs VIC 3038 via SQM Research.
Schools near Aspect Residences Estate - Keilor Downs
Here are 6 schools near Aspect Residences Estate - Keilor Downs:
Prep-6 Government Primary School
7-12 Government Secondary School
Prep-6 Government Primary School
Prep-6 Catholic Primary School
Prep-6 Catholic Primary School
Prep-6 Government Primary School
Reviews & Comments on Aspect Residences Estate - Keilor Downs
FAQs about Aspect Residences Estate - Keilor Downs
View all estates from SOHO Living
- Keilor Views Primary School - 734m north
- Keilor Downs Secondary College - 975m north
- St Albans North Primary School - 999m south-west
- St Mary MacKillop Primary School - 1.1km north
- St Paul's Kealba Catholic School - 1.4km south-east
- Monmia Primary School - 1.6km north-west
Popular Estates near Aspect Residences Estate - Keilor Downs
Latest New Home Articles for You
19/Aug/2025 | OpenLot.com.au
🏡 Suburb Profile: Beveridge
Beveridge is within the Mitchell Shire, located 42 kilometres north of Me...
19/Aug/2025 | OpenLot.com.au
test2
19/Aug/2025 | OpenLot.com.au
tests
13/Jun/2025 | OpenLot.com.au
Display Homes at Playford Alive Estate: A Thriving Community at the Heart of Munno Para
Welcome to Playford Alive, a vibrant and dynamic masterplanned community ...
11/Jun/2025 | OpenLot.com.au
Display Homes at Ocean Hill Estate: A Thriving Community by the Coast
A short stroll from the white sands of Madora Beach and fringed by the co...
10/Jun/2025 | OpenLot.com.au
Display Homes at Bluestone Estate: An Established Community in the Mount Barker
Whether you’re a first home buyer, a growing family, or looking to downsi...
09/Jun/2025 | OpenLot.com.au
Queensland Leads, But NSW and VIC Fall Behind, in New Housing Buyer Demand Index
New data reveals that Australia’s new housing market remains resilient de...
06/Jun/2025 | OpenLot.com.au
Display Homes at Minters Fields Estate: A Scenic Hillside Community in Mount Barker
Nestled in the heart of Mount Barker, Minters Fields offers a truly remar...
03/Jun/2025 | OpenLot.com.au
🏡 Step Inside a Frenken Home at Smiths Lane
During a recent visit to the Smiths Lane display village, OpenLot.com.au ...