Aurora Estate - Thornlands SOLD OUT
- Exclusive waterside address on Brisbane's bayside
- Minutes to several local shopping precincts
- Less than 10 minutes to Redland Hospital
- Only a short walk to local parks and playgrounds
- 45 minutes to Brisbane's CBD
This information is estimated by the OpenLot research team. Let us know here to provide up-to-date information about this development.
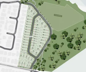
| Total new homes | 52 |
| Area size | 14.21 hectares |
| Growth Region | Greater Brisbane Growth Areas |
| City council | Redland City Council |
| Developer | Ausbuild |
| Distance to | Brisbane Airport - 24 km south-east Brisbane CBD - 27 km east |
House and Land Packages:
Popular Estates near Aurora Estate - Thornlands
Updates for Aurora Estate - Thornlands
Location & Map for Aurora Estate - Thornlands
Visit Display Homes near Aurora Estate - Thornlands
Vacancy Rate in Thornlands QLD 4164
View full vacancy rate history in Thornlands QLD 4164 via SQM Research.
Schools near Aurora Estate - Thornlands
Here are 6 schools near Aurora Estate - Thornlands:
7-12 Catholic Secondary School
Prep-6 Government Primary School
Prep-6 Government Primary School
Prep-12 Government Special School
Prep-6 Catholic Primary School
10-12 Independent Secondary School - School Head Campus
Reviews & Comments on Aurora Estate - Thornlands
FAQs about Aurora Estate - Thornlands
View all estates from Ausbuild
- Carmel College - 1.7km south-west
- Thornlands State School - 1.9km north-west
- Bay View State School - 2.1km south-west
- Redland District Special School - 2.2km west
- Star of the Sea Primary School - 3.0km north
- The Industry School - Redlands - 3.2km north
Popular Estates near Aurora Estate - Thornlands
Latest New Home Articles for You
19/Aug/2025 | OpenLot.com.au
🏡 Suburb Profile: Beveridge
Beveridge is within the Mitchell Shire, located 42 kilometres north of Me...
19/Aug/2025 | OpenLot.com.au
test2
19/Aug/2025 | OpenLot.com.au
tests
13/Jun/2025 | OpenLot.com.au
Display Homes at Playford Alive Estate: A Thriving Community at the Heart of Munno Para
Welcome to Playford Alive, a vibrant and dynamic masterplanned community ...
11/Jun/2025 | OpenLot.com.au
Display Homes at Ocean Hill Estate: A Thriving Community by the Coast
A short stroll from the white sands of Madora Beach and fringed by the co...
10/Jun/2025 | OpenLot.com.au
Display Homes at Bluestone Estate: An Established Community in the Mount Barker
Whether you’re a first home buyer, a growing family, or looking to downsi...
09/Jun/2025 | OpenLot.com.au
Queensland Leads, But NSW and VIC Fall Behind, in New Housing Buyer Demand Index
New data reveals that Australia’s new housing market remains resilient de...
06/Jun/2025 | OpenLot.com.au
Display Homes at Minters Fields Estate: A Scenic Hillside Community in Mount Barker
Nestled in the heart of Mount Barker, Minters Fields offers a truly remar...
03/Jun/2025 | OpenLot.com.au
🏡 Step Inside a Frenken Home at Smiths Lane
During a recent visit to the Smiths Lane display village, OpenLot.com.au ...