Deep Creek Estate Clifton Beach - Kewarra Beach
- House & Land packages only for sale. No vacant blocks are available to purchase and build.
- Contact sales direct via the open lot link below, minutes walk to Clifton Beach
- Many homes nearing completion now
- Northern beaches Lifestyle at its absolute best.
- Exclusive Clifton Beach postcode address.
This information is estimated by the OpenLot research team. Let us know here to provide up-to-date information about this development.
| Total new homes | 110 |
| Area size | N/A |
| Growth Region | Cairns (Far North Queensland Region) |
| City council | Cairns Regional Council |
| Developer | Kenfrost Homes |
| Project marketer | Cairns Key Real Estate |
| Distance to | Cairns CBD - 18 km north-west |
House and Land Packages:
Popular Estates near Deep Creek Estate Clifton Beach - Kewarra Beach
Updates for Deep Creek Estate Clifton Beach - Kewarra Beach
Location & Map for Deep Creek Estate Clifton Beach - Kewarra Beach
Vacancy Rate in Kewarra Beach QLD 4879
View full vacancy rate history in Kewarra Beach QLD 4879 via SQM Research.
Schools near Deep Creek Estate Clifton Beach - Kewarra Beach
Here are 6 schools near Deep Creek Estate Clifton Beach - Kewarra Beach:
Unknown Catholic Primary School
Prep-6 Government Primary School
Prep-6 Catholic Primary School
7-12 Government Secondary School
7-10 Catholic Secondary School - School Head Campus
Prep-6 Government Primary School
Reviews & Comments on Deep Creek Estate Clifton Beach - Kewarra Beach
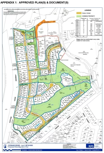
Estate Brochure, Masterplan, Engineering Plan, Plan of Subdivision (POS), Design Guidelines
FAQs about Deep Creek Estate Clifton Beach - Kewarra Beach
View all estates from Kenfrost Homes
View all estates marketed by Cairns Key Real Estate
- Northern Beaches Catholic Primary School - 769m south-west
- Tropical North Learning Academy - Trinity Beach State School - 2.0km south-east
- Holy Cross School - 3.8km south-east
- Tropical North Learning Academy - Smithfield State High School - 4.0km south-east
- Newman Catholic College - 4.5km south
- Yorkeys Knob State School - 6.1km south-east
Popular Estates near Deep Creek Estate Clifton Beach - Kewarra Beach
Latest New Home Articles for You
19/Aug/2025 | OpenLot.com.au
🏡 Suburb Profile: Beveridge
Beveridge is within the Mitchell Shire, located 42 kilometres north of Me...
19/Aug/2025 | OpenLot.com.au
test2
19/Aug/2025 | OpenLot.com.au
tests
13/Jun/2025 | OpenLot.com.au
Display Homes at Playford Alive Estate: A Thriving Community at the Heart of Munno Para
Welcome to Playford Alive, a vibrant and dynamic masterplanned community ...
11/Jun/2025 | OpenLot.com.au
Display Homes at Ocean Hill Estate: A Thriving Community by the Coast
A short stroll from the white sands of Madora Beach and fringed by the co...
10/Jun/2025 | OpenLot.com.au
Display Homes at Bluestone Estate: An Established Community in the Mount Barker
Whether you’re a first home buyer, a growing family, or looking to downsi...
09/Jun/2025 | OpenLot.com.au
Queensland Leads, But NSW and VIC Fall Behind, in New Housing Buyer Demand Index
New data reveals that Australia’s new housing market remains resilient de...
06/Jun/2025 | OpenLot.com.au
Display Homes at Minters Fields Estate: A Scenic Hillside Community in Mount Barker
Nestled in the heart of Mount Barker, Minters Fields offers a truly remar...
03/Jun/2025 | OpenLot.com.au
🏡 Step Inside a Frenken Home at Smiths Lane
During a recent visit to the Smiths Lane display village, OpenLot.com.au ...