Gainsborough Meadows Estate - Brassall
This information is estimated by the OpenLot research team. Let us know here to provide up-to-date information about this development.
| Total new homes | N/A |
| Area size | N/A |
| Growth Region | Greater Brisbane Growth Areas |
| City council | Ipswich City Council |
| Developer | N/A |
| Distance to | Brisbane CBD - 33 km south-west Brisbane Airport - 45 km south-west |
House and Land Packages:
Popular Estates near Gainsborough Meadows Estate - Brassall
Updates for Gainsborough Meadows Estate - Brassall
Location & Map for Gainsborough Meadows Estate - Brassall
Vacancy Rate in Brassall QLD 4305
View full vacancy rate history in Brassall QLD 4305 via SQM Research.
Schools near Gainsborough Meadows Estate - Brassall
Here are 6 schools near Gainsborough Meadows Estate - Brassall:
Prep-12 Independent Combined School
7-12 Government Secondary School
Prep-6 Government Primary School
Prep-6 Independent Primary School
Prep-6 Catholic Primary School
Prep-6 Government Primary School
Reviews & Comments on Gainsborough Meadows Estate - Brassall
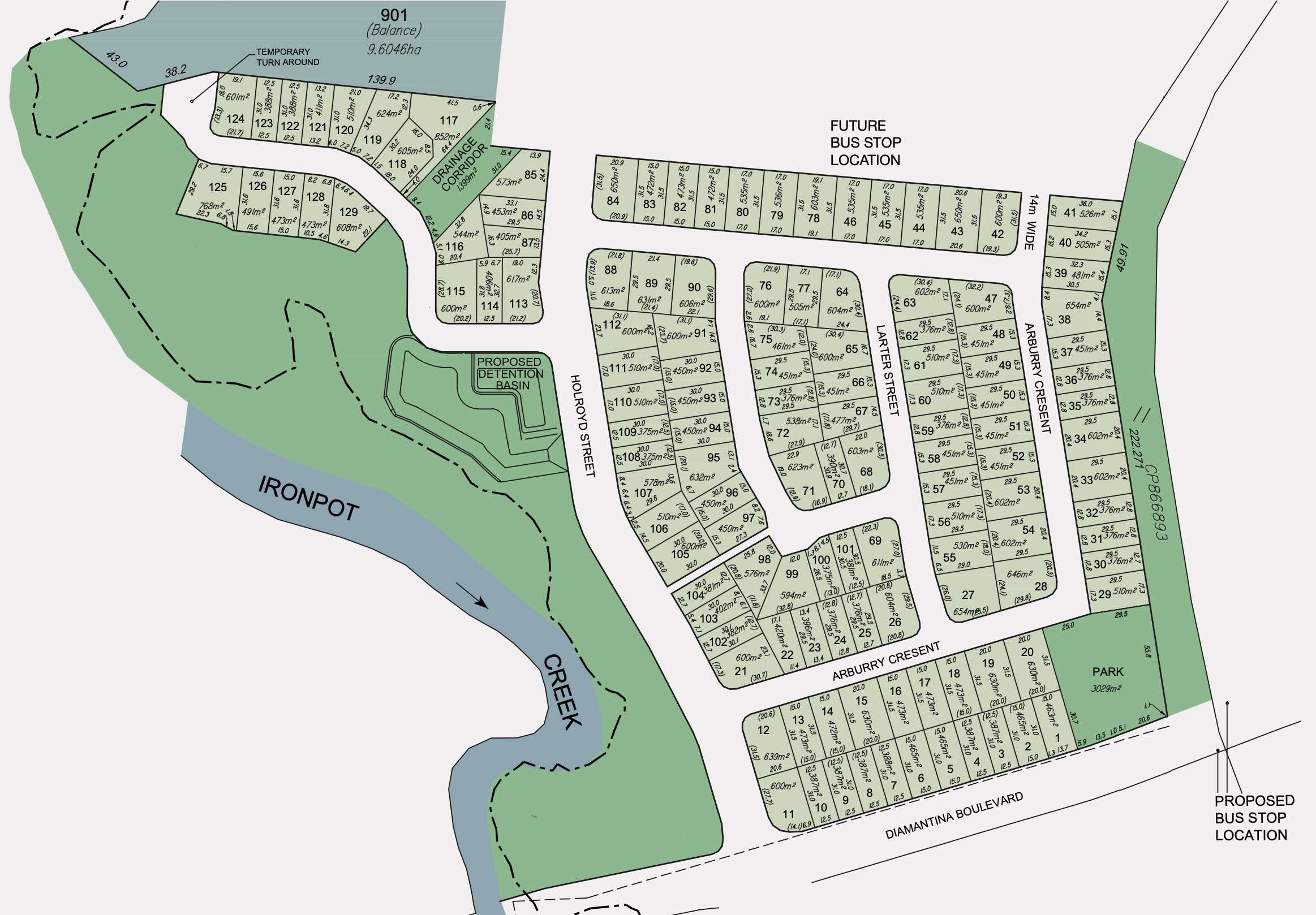
Estate Brochure, Masterplan, Engineering Plan, Plan of Subdivision (POS), Design Guidelines
FAQs about Gainsborough Meadows Estate - Brassall
- West Moreton Anglican College - 1.4km south-west
- Ipswich State High School - 2.9km east
- Brassall State School - 3.0km east
- Ipswich Adventist School - 3.1km south-east
- St Joseph's School - 4.0km east
- Blair State School - 4.3km south-east
Popular Estates near Gainsborough Meadows Estate - Brassall
Latest New Home Articles for You
19/Aug/2025 | OpenLot.com.au
🏡 Suburb Profile: Beveridge
Beveridge is within the Mitchell Shire, located 42 kilometres north of Me...
19/Aug/2025 | OpenLot.com.au
test2
19/Aug/2025 | OpenLot.com.au
tests
13/Jun/2025 | OpenLot.com.au
Display Homes at Playford Alive Estate: A Thriving Community at the Heart of Munno Para
Welcome to Playford Alive, a vibrant and dynamic masterplanned community ...
11/Jun/2025 | OpenLot.com.au
Display Homes at Ocean Hill Estate: A Thriving Community by the Coast
A short stroll from the white sands of Madora Beach and fringed by the co...
10/Jun/2025 | OpenLot.com.au
Display Homes at Bluestone Estate: An Established Community in the Mount Barker
Whether you’re a first home buyer, a growing family, or looking to downsi...
09/Jun/2025 | OpenLot.com.au
Queensland Leads, But NSW and VIC Fall Behind, in New Housing Buyer Demand Index
New data reveals that Australia’s new housing market remains resilient de...
06/Jun/2025 | OpenLot.com.au
Display Homes at Minters Fields Estate: A Scenic Hillside Community in Mount Barker
Nestled in the heart of Mount Barker, Minters Fields offers a truly remar...
03/Jun/2025 | OpenLot.com.au
🏡 Step Inside a Frenken Home at Smiths Lane
During a recent visit to the Smiths Lane display village, OpenLot.com.au ...