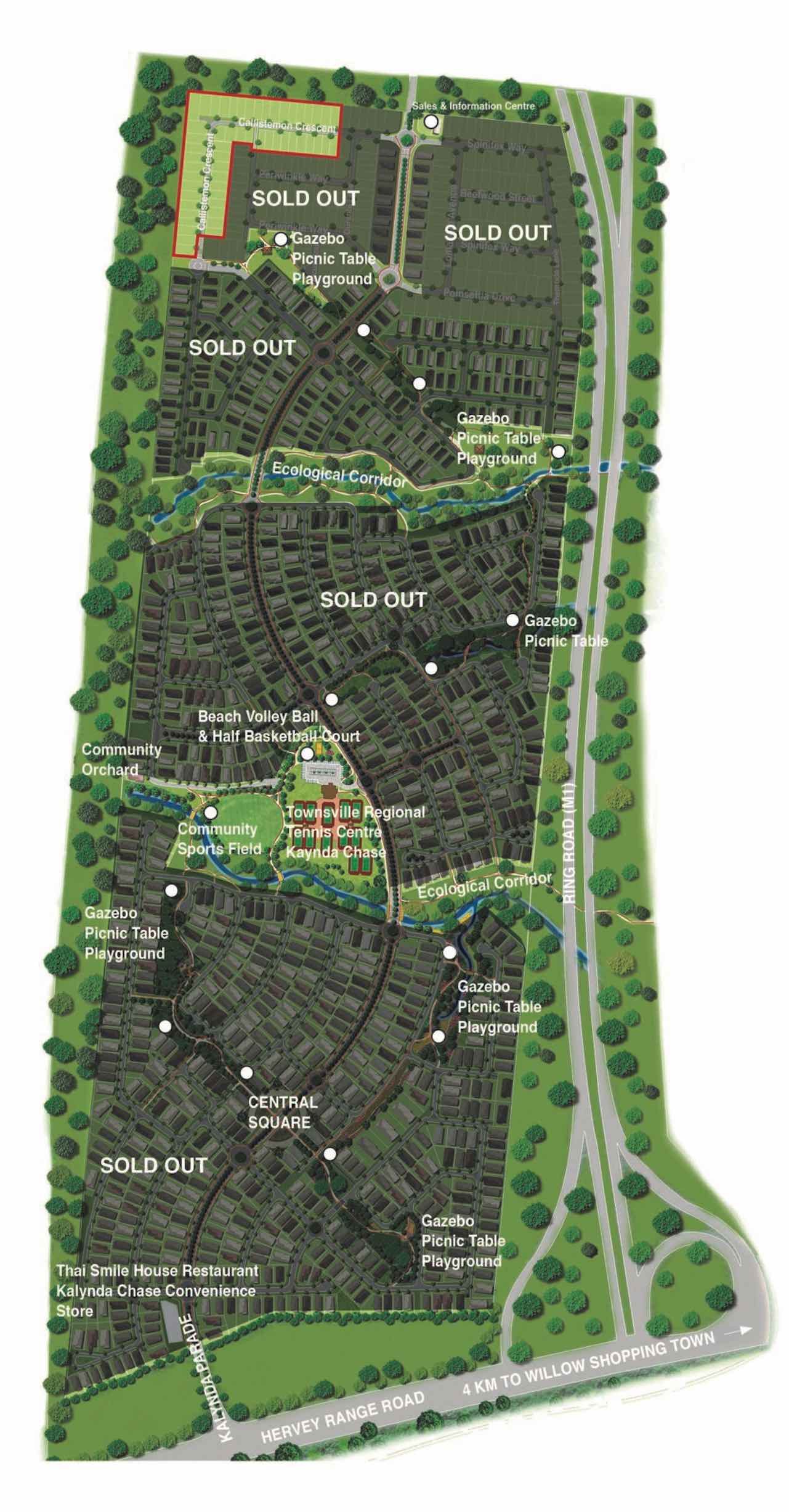
Kalynda Chase Estate - Bohle Plains SOLD OUT
This information is estimated by the OpenLot research team. Let us know here to provide up-to-date information about this development.
| Total new homes | 1,700 |
| Area size | 161.30 hectares |
| Growth Region | Townsville (North Queensland Region) |
| City council | Townsville City Council |
| Developer | Urbex |
| Creative agency | Thirteen Digital |
| Distance to | Townsville CBD - 13 km south-west |
Land for Sale, House and Land Packages:
Popular Estates near Kalynda Chase Estate - Bohle Plains
Updates for Kalynda Chase Estate - Bohle Plains
Location & Map for Kalynda Chase Estate - Bohle Plains
Vacancy Rate in Bohle Plains QLD 4817
View full vacancy rate history in Bohle Plains QLD 4817 via SQM Research.
Schools near Kalynda Chase Estate - Bohle Plains
Here are 6 schools near Kalynda Chase Estate - Bohle Plains:
Prep-6 Catholic Primary School
7 Catholic Secondary School
Prep-12 Independent Combined School - School Head Campus
Prep-12 Catholic Combined School
Prep-6 Government Primary School
7-12 Government Secondary School
Reviews & Comments on Kalynda Chase Estate - Bohle Plains
FAQs about Kalynda Chase Estate - Bohle Plains
View all estates from Urbex
- St Benedict's Catholic School - 2.1km north
- Mary Help of Christians Catholic College - 2.3km north-east
- Carinity Education - Shalom - 2.6km south-east
- Ryan Catholic College - 2.9km east
- The Willows State School - 3.3km east
- Thuringowa State High School - 4.2km south-east
Popular Estates near Kalynda Chase Estate - Bohle Plains
Latest New Home Articles for You
19/Aug/2025 | OpenLot.com.au
🏡 Suburb Profile: Beveridge
Beveridge is within the Mitchell Shire, located 42 kilometres north of Me...
19/Aug/2025 | OpenLot.com.au
test2
19/Aug/2025 | OpenLot.com.au
tests
13/Jun/2025 | OpenLot.com.au
Display Homes at Playford Alive Estate: A Thriving Community at the Heart of Munno Para
Welcome to Playford Alive, a vibrant and dynamic masterplanned community ...
11/Jun/2025 | OpenLot.com.au
Display Homes at Ocean Hill Estate: A Thriving Community by the Coast
A short stroll from the white sands of Madora Beach and fringed by the co...
10/Jun/2025 | OpenLot.com.au
Display Homes at Bluestone Estate: An Established Community in the Mount Barker
Whether you’re a first home buyer, a growing family, or looking to downsi...
09/Jun/2025 | OpenLot.com.au
Queensland Leads, But NSW and VIC Fall Behind, in New Housing Buyer Demand Index
New data reveals that Australia’s new housing market remains resilient de...
06/Jun/2025 | OpenLot.com.au
Display Homes at Minters Fields Estate: A Scenic Hillside Community in Mount Barker
Nestled in the heart of Mount Barker, Minters Fields offers a truly remar...
03/Jun/2025 | OpenLot.com.au
🏡 Step Inside a Frenken Home at Smiths Lane
During a recent visit to the Smiths Lane display village, OpenLot.com.au ...