Kudardup Heights Estate - Kudardup 9 AVAILABLE
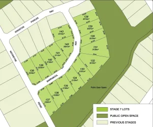
[NEW RELEASE] STAGE 7
- With lot sizes ranging from 2,015sqm to 3,016sqm. This elevated land is for those looking for a country lifestyle with plenty of open space to park the boat and caravan.
This growing village provides owners a peaceful and pleasant lifestyle, only a 5 minute drive (6km approximately) north of Augusta or a 25 minute drive (37km approximately) to Margaret River. Enjoy boating in the mighty Blackwood River, or drive west 10 minutes (12km approximately) to the stunning Hamelin Bay, with its boat ramp, friendly stingrays on the shoreline and pristine white sandy beaches.
Your Leeuwin lifestyle awaits, with world class food, wine and surf spots that this special region boasts. This inspiring new stage is about being part of a local community and culture that enriches everyday life. Get away from the hustle and bustle to enjoy the down south lifestyle you deserve. Establish your own sustainable lifestyle on these good old fashioned larger blocks.
Kudardup Heights was designed to ensure that the Estate presents well now and into the future:
- Underground power
- Blacktop bitumen roads
- Subsurface drainage
- Fully kerbed crossovers and roads
- Footpaths/cycleways
- Ironstone and Coffee Rock Entrance Statement
This exclusive village Estate is surrounded by the perfect combination of nature and community, to create your ultimate lifestyle. Be quick to secure your new homesite - where living large doesn't cost the earth.
Certificates of Title for the new Stage 7 are estimated for approximately Winter 2025.
Disclaimer: While we have made diligent efforts to ensure the accuracy of the information presented in this document, we do not assume any responsibility and hereby disclaim all liability for any errors, omissions, inaccuracies, or misstatements. Parties with interest are advised to independently verify the information provided in this material. Licensee: JMW Real Estate Holdings Pty Ltd ABN 25 678 771 465.
This information is estimated by the OpenLot research team. Let us know here to provide up-to-date information about this development.
| Total new homes | 143 |
| Area size | N/A |
| Growth Region | Bunbury (The South West Region) |
| City council | Shire of Augusta-Margaret River |
| Developer | N/A |
| Project marketer | JMW Real Estate |
Land for Sale:
14 Land Lots in Kudardup Heights Estate - Kudardup
Popular Estates near Kudardup Heights Estate - Kudardup
Updates for Kudardup Heights Estate - Kudardup
Location & Map for Kudardup Heights Estate - Kudardup
Vacancy Rate in Kudardup WA 6290
View full vacancy rate history in Kudardup WA 6290 via SQM Research.
Schools near Kudardup Heights Estate - Kudardup
Here are 6 schools near Kudardup Heights Estate - Kudardup:
K-6 Government Primary School
K-6 Government Primary School
PP-6 Independent Primary School
K-6 Government Primary School
7-12 Government Secondary School
PP-11 Independent Combined School - School Head Campus
Reviews & Comments on Kudardup Heights Estate - Kudardup
Estate Brochure, Masterplan, Engineering Plan, Plan of Subdivision (POS), Design Guidelines
FAQs about Kudardup Heights Estate - Kudardup
View all estates marketed by JMW Real Estate
- Karridale Primary School - 4.9km north-west
- Augusta Primary School - 7.6km south-east
- Margaret River Independent School - 20.9km north
- Rapids Landing Primary School - 32.5km north
- Margaret River Senior High School - 33.1km north
- Margaret River Montessori School - Margaret River campus - 33.3km north
Popular Estates near Kudardup Heights Estate - Kudardup
Latest New Home Articles for You
19/Aug/2025 | OpenLot.com.au
🏡 Suburb Profile: Beveridge
Beveridge is within the Mitchell Shire, located 42 kilometres north of Me...
19/Aug/2025 | OpenLot.com.au
test2
19/Aug/2025 | OpenLot.com.au
tests
13/Jun/2025 | OpenLot.com.au
Display Homes at Playford Alive Estate: A Thriving Community at the Heart of Munno Para
Welcome to Playford Alive, a vibrant and dynamic masterplanned community ...
11/Jun/2025 | OpenLot.com.au
Display Homes at Ocean Hill Estate: A Thriving Community by the Coast
A short stroll from the white sands of Madora Beach and fringed by the co...
10/Jun/2025 | OpenLot.com.au
Display Homes at Bluestone Estate: An Established Community in the Mount Barker
Whether you’re a first home buyer, a growing family, or looking to downsi...
09/Jun/2025 | OpenLot.com.au
Queensland Leads, But NSW and VIC Fall Behind, in New Housing Buyer Demand Index
New data reveals that Australia’s new housing market remains resilient de...
06/Jun/2025 | OpenLot.com.au
Display Homes at Minters Fields Estate: A Scenic Hillside Community in Mount Barker
Nestled in the heart of Mount Barker, Minters Fields offers a truly remar...
03/Jun/2025 | OpenLot.com.au
🏡 Step Inside a Frenken Home at Smiths Lane
During a recent visit to the Smiths Lane display village, OpenLot.com.au ...