Marina Cove Estate - Boyne Island
This information is estimated by the OpenLot research team. Let us know here to provide up-to-date information about this development.
| Total new homes | 11 |
| Area size | N/A |
| City council | Gladstone Regional Council |
| Developer | N/A |
| Project marketer | Ray White Gladstone |
Land for Sale, House and Land Packages:
Popular Estates near Marina Cove Estate - Boyne Island
Updates for Marina Cove Estate - Boyne Island
Location & Map for Marina Cove Estate - Boyne Island
Vacancy Rate in Boyne Island QLD 4680
View full vacancy rate history in Boyne Island QLD 4680 via SQM Research.
Schools near Marina Cove Estate - Boyne Island
Here are 6 schools near Marina Cove Estate - Boyne Island:
Prep-6 Government Primary School
7-12 Government Secondary School
Prep-6 Catholic Primary School
Prep-6 Government Primary School
7-10 Independent Secondary School
Prep-6 Government Primary School
Reviews & Comments on Marina Cove Estate - Boyne Island
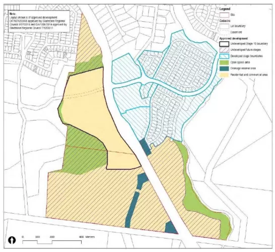
Estate Brochure, Masterplan, Engineering Plan, Plan of Subdivision (POS), Design Guidelines
FAQs about Marina Cove Estate - Boyne Island
View all estates marketed by Ray White Gladstone
- Boyne Island State School - 1.0km north-east
- Tannum Sands State High School - 1.6km east
- St Francis Catholic Primary School - 1.7km north-east
- Tannum Sands State School - 1.7km east
- Clearview Christian College - 2.5km north-east
- Benaraby State School - 5.8km south-west
Popular Estates near Marina Cove Estate - Boyne Island
Latest New Home Articles for You
19/Aug/2025 | OpenLot.com.au
🏡 Suburb Profile: Beveridge
Beveridge is within the Mitchell Shire, located 42 kilometres north of Me...
19/Aug/2025 | OpenLot.com.au
test2
19/Aug/2025 | OpenLot.com.au
tests
13/Jun/2025 | OpenLot.com.au
Display Homes at Playford Alive Estate: A Thriving Community at the Heart of Munno Para
Welcome to Playford Alive, a vibrant and dynamic masterplanned community ...
11/Jun/2025 | OpenLot.com.au
Display Homes at Ocean Hill Estate: A Thriving Community by the Coast
A short stroll from the white sands of Madora Beach and fringed by the co...
10/Jun/2025 | OpenLot.com.au
Display Homes at Bluestone Estate: An Established Community in the Mount Barker
Whether you’re a first home buyer, a growing family, or looking to downsi...
09/Jun/2025 | OpenLot.com.au
Queensland Leads, But NSW and VIC Fall Behind, in New Housing Buyer Demand Index
New data reveals that Australia’s new housing market remains resilient de...
06/Jun/2025 | OpenLot.com.au
Display Homes at Minters Fields Estate: A Scenic Hillside Community in Mount Barker
Nestled in the heart of Mount Barker, Minters Fields offers a truly remar...
03/Jun/2025 | OpenLot.com.au
🏡 Step Inside a Frenken Home at Smiths Lane
During a recent visit to the Smiths Lane display village, OpenLot.com.au ...