Oléa Estate - Gungahlin
This information is estimated by the OpenLot research team. Let us know here to provide up-to-date information about this development.
| Total new homes | 72 |
| Area size | N/A |
| Growth Region | Canberra Growth Regions |
| City council | Australian Capital Territory |
| Developer | Dish Developments |
| Project marketer | LJ Hooker Project Marketing ACT |
| Creative agency | The Mark Agency |
| Distance to | Canberra CBD - 13 km north Canberra Airport - 14 km north |
Townhomes:
Popular Estates near Oléa Estate - Gungahlin
Updates for Oléa Estate - Gungahlin
Location & Map for Oléa Estate - Gungahlin
Vacancy Rate in Gungahlin ACT 2912
View full vacancy rate history in Gungahlin ACT 2912 via SQM Research.
Schools near Oléa Estate - Gungahlin
Here are 6 schools near Oléa Estate - Gungahlin:
10-12 Government Secondary School
K-6 Government Primary School
K-6 Catholic Primary School
K-12 Independent Combined School - School Head Campus
K-10 Government Combined School
K-6 Government Primary School
Reviews & Comments on Oléa Estate - Gungahlin
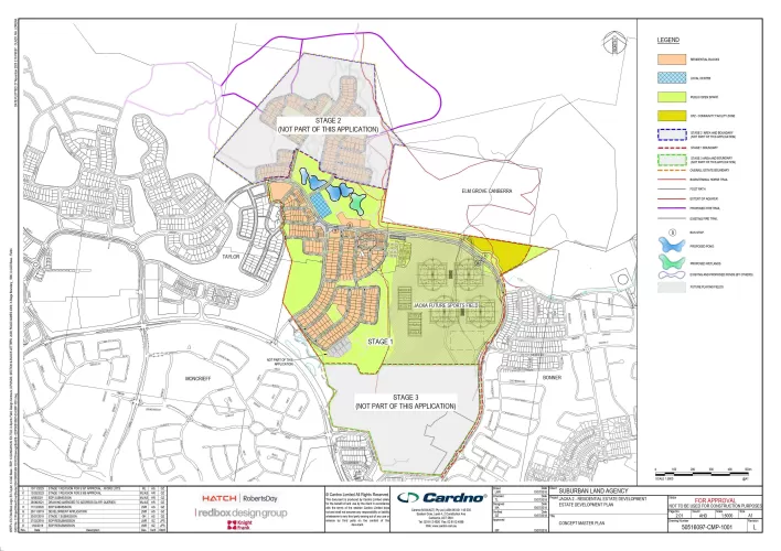
Estate Brochure, Masterplan, Engineering Plan, Plan of Subdivision (POS), Design Guidelines
FAQs about Oléa Estate - Gungahlin
View all estates from Dish Developments
View all estates marketed by LJ Hooker Project Marketing ACT
- Gungahlin College - 851m north-west
- Franklin School - 964m south-east
- Mother Teresa School - 1.4km south-east
- Burgmann Anglican School - 1.4km west
- Harrison School - 1.5km south-east
- Palmerston District Primary School - 2.0km south-west
Popular Estates near Oléa Estate - Gungahlin
Latest New Home Articles for You
19/Aug/2025 | OpenLot.com.au
🏡 Suburb Profile: Beveridge
Beveridge is within the Mitchell Shire, located 42 kilometres north of Me...
19/Aug/2025 | OpenLot.com.au
test2
19/Aug/2025 | OpenLot.com.au
tests
13/Jun/2025 | OpenLot.com.au
Display Homes at Playford Alive Estate: A Thriving Community at the Heart of Munno Para
Welcome to Playford Alive, a vibrant and dynamic masterplanned community ...
11/Jun/2025 | OpenLot.com.au
Display Homes at Ocean Hill Estate: A Thriving Community by the Coast
A short stroll from the white sands of Madora Beach and fringed by the co...
10/Jun/2025 | OpenLot.com.au
Display Homes at Bluestone Estate: An Established Community in the Mount Barker
Whether you’re a first home buyer, a growing family, or looking to downsi...
09/Jun/2025 | OpenLot.com.au
Queensland Leads, But NSW and VIC Fall Behind, in New Housing Buyer Demand Index
New data reveals that Australia’s new housing market remains resilient de...
06/Jun/2025 | OpenLot.com.au
Display Homes at Minters Fields Estate: A Scenic Hillside Community in Mount Barker
Nestled in the heart of Mount Barker, Minters Fields offers a truly remar...
03/Jun/2025 | OpenLot.com.au
🏡 Step Inside a Frenken Home at Smiths Lane
During a recent visit to the Smiths Lane display village, OpenLot.com.au ...