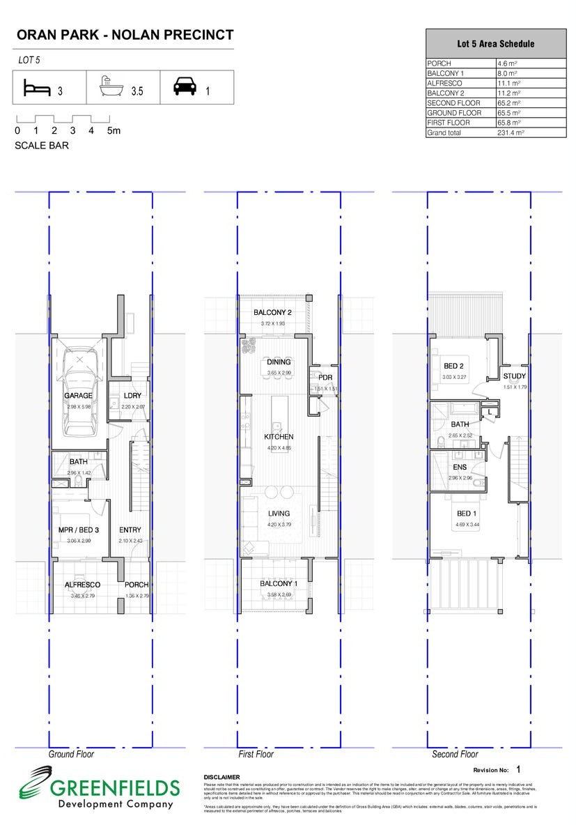
Lot 5: @ Oran Park - Oran Park NSW 2570
Just released! Brand new three-storey home
Sitting within the Nolan precinct of Marian's Mana, you can take advantage of the close proximity to Oran Park's Town Centre and enjoy your designer residence in style and comfort.
Set over three levels, this floor plan has a selection of balconies and alfresco to enjoy the amazing surrounds of Marian's Mana.
You can move into this beautiful, new home in early-2026. Secure with 5%
- 2740mm ceiling heights to ground floor and first floor
- 900mm stainless steel SMEG appliances, including integrated dishwasher
- Stone benchtops
- LED lights throughout
- Hybrid timber flooring to main living areas
- Ducted Air-Conditioning
- Large Alfresco plus two generous balconies
- Full landscaping including premium masonry & palisade front fence, side boundary fencing and letterbox
Nestled alongside Whiteman Park and Ron’s Creek these stunning townhomes, built by Creation homes, truly reflect the contemporary living lifestyle you’ve come to expect.
Do not miss your chance to secure this fixed price home with NO progress payments.
3
3.5
1
Development Info of Oran Park - Oran Park
This information is estimated by the OpenLot research team. Let us know here to provide up-to-date information about this development.
| Total new homes | N/A |
| Area size | N/A |
| Growth Region | Sydney South West Growth Areas |
| City council | Camden Council |
| Developer | Greenfields Development Company |
| Creative agency | Greenhouse Creative |
| Other names | Marian's Mana |
| Distance to | Sydney Airport - 41 km west Sydney CBD - 44 km west |
Location & Map for Oran Park - Oran Park
Visit Display Homes near Oran Park - Oran Park
More Townhouses in Oran Park - Oran Park
More House and Land Packages in Oran Park - Oran Park
More Townhouses by Creation Homes (Home Builder)
Vacancy Rate in Oran Park NSW 2570
View full vacancy rate history in Oran Park NSW 2570 via SQM Research.
Schools near Oran Park - Oran Park
Here are 6 schools near Oran Park - Oran Park:
K-12 Independent Combined School
7-12 Government Secondary School
K-6 Government Primary School
K-6 Government Primary School
K-6 Catholic Primary School
7-12 Catholic Secondary School
Suburb Planning Review in Oran Park NSW 2570
Oran Park is approximately 13.744 square kilometres within the Camden Council forming part of the Greater Western Sydney region in New South Wales, located 45 kilometres south-west of Sydney. The suburb is primarily large rural land holdings found in the north and new residential development with an increased density along the southern suburb area. The suburb did not have a business district, however, a new town centre with a new train station is envisaged as part of the future redevelopment.
The suburb boundary is located along The Northern Road to the west and South Creek to the east. Property boundaries provide for the northern boundary and Dick Johnson Drive provides the property boundary to the south.

A series of local roads are provided throughout Oran Park, providing access to the surrounding suburbs and the local network of roads. Peter Brock Drive and Dick Johnson Drive provide west and east connections through the lower portion of the suburb to the adjoining suburb of Catherine Field and Cobbitty. The Camden Valley Way to the east provides vehicle access connection to major arterial roads in proximity.
The northern part of the suburb is agricultural and grazing land, which contains several smaller creek corridors connected to the eastern South Creek corridor. A series of large interconnected dams are also located to the north of the suburb that provides water for agricultural purposes.

The urban areas found in the southern portion of the suburb are being developed under the general residential zoning, surrounding a Medium Density Residential and local centre zoning, which is supported by the Oran Park Precinct - Growth Centres Precinct Development Control Plan.
The local centres provide a range of services including retail, business, community and entertainment functions that service the emerging residential developments. The Town centre will be the location of a new train station that forms part of the North South Rail Line and South West Rail Link Extension, which is planned south of Western Sydney International (Nancy-Bird Walton) Airport.
Key benefits of Oran Park
Provide for the future major transport link between the surrounding growth areas.
Provide transport options to support population, jobs and economic growth
Support future town centres to be designed and planned infrastructure

Campbelltown–Macarthur
Oran Park forms the outer rural area of Campbelltown–Macarthur a Metropolitan Cluster within the Western Parkland City which will form part of the region plan for Greater Sydney. The vision for the next 20 years is to provide jobs, education, health facilities and services to more residents that live within the new Western Parkland City, drawing on the new Western Sydney Airport and Badgerys Creek Aerotropolis, and North-South Rail Link.
The growth area will create the opportunity for a Western Economic Corridor. The planning priorities and actions for improving the quality of life for residents in this growth area are set down in the Western City District Plan, our greater Sydney 2056, March 2018.
Western City District Plan
The population growth in the Western City District will be 464,450 by 2036, which is expected to require a housing growth of 184,500 dwellings (25%). The integration of new land use, transport and infrastructure is supported by the Future Transport Strategy 2056 and State Infrastructure Strategy 2018–2038 across the region. The new Western City District Structure Plan illustrates the location for the future urban growth.
South West Growth Area
Oran Park forms part of the South West Growth Area and a Development Control Plan (DCP) was prepared to embed density controls in precinct plans to ensure that infrastructure planning aligns with growth. This Plan known as the Oran Park Precinct Development Control Plan (DCP) was adopted and came into force on 4 December 2007 and was further amended on 13 September 2016.
The Camden Council together with NSW Planning prepared the public domain manual for Oran Park Town in May 2011 that provides the vision, urban design guidelines and further information to assist developers and Camden Council in constructing public domain works within Oran Park Town Centre (OPTC).

The DCP was prepared to provide additional guidance to developers, simplify the planning and ensure the orderly, efficient and environmentally sensitive development within the Precinct. The Oran Park Growth Centre Precinct was envisaged by the South West Sector Structure Plan and refined by the Oran Park Precinct Indicative Layout Plan.
Oran Park Precinct
The Oran Park Precinct provides the planning so new development provides residential and employment areas that respond to the Precincts’ natural environment. A mix of recreation, employment and residential will be designed to address public transport use, walking and cycling. The New South Wales State Government aimed to provide new precincts, as an attractive and well-connected community, in proximity to public transport, community facilities, open space and retail.
Boundary realignment of the suburb took on additional land west of The Northern Road to form part of the new precinct, however, the balance of the suburb formed two additional precincts, being:
- Lowes Creek Maryland
- South Creek West

Vision of Oran Park
Vision The Oran Park Precinct will establish itself as a high quality urban environment founded on the principles of community pride, well-being, healthy living and educational excellence.
The precinct will encompass a complete community incorporating live, work and play options. Housing densities will be higher than those traditionally delivered in Camden with a broad range of dwelling types provided across the precinct with a particular focus on attractive residential streetscapes structured around well connected, walkable neighbourhoods.
The Oran Park Town Centre and the Neighbourhood Centres west of The Northern Road will become the focal points for community interaction, civic and community facilities and retailing. Local work options will be provided through employment areas, local centres and home based activities.
West of The Northern Road will be a distinctive urban and semi-rural precinct that capitalises on the presence of the heritage listed Denbigh Homestead and areas with recognised scenic and landscape value. It will offer housing opportunities for new residents, who seek a lifestyle that is linked with the distinctive and memorable character of the area.


Oran Park Suburb Summary
References
Popular Estates near Oran Park - Oran Park
Latest New Home Articles for You
19/Aug/2025 | OpenLot.com.au
🏡 Suburb Profile: Beveridge
Beveridge is within the Mitchell Shire, located 42 kilometres north of Me...
19/Aug/2025 | OpenLot.com.au
test2
19/Aug/2025 | OpenLot.com.au
tests
13/Jun/2025 | OpenLot.com.au
Display Homes at Playford Alive Estate: A Thriving Community at the Heart of Munno Para
Welcome to Playford Alive, a vibrant and dynamic masterplanned community ...
11/Jun/2025 | OpenLot.com.au
Display Homes at Ocean Hill Estate: A Thriving Community by the Coast
A short stroll from the white sands of Madora Beach and fringed by the co...
10/Jun/2025 | OpenLot.com.au
Display Homes at Bluestone Estate: An Established Community in the Mount Barker
Whether you’re a first home buyer, a growing family, or looking to downsi...
09/Jun/2025 | OpenLot.com.au
Queensland Leads, But NSW and VIC Fall Behind, in New Housing Buyer Demand Index
New data reveals that Australia’s new housing market remains resilient de...
06/Jun/2025 | OpenLot.com.au
Display Homes at Minters Fields Estate: A Scenic Hillside Community in Mount Barker
Nestled in the heart of Mount Barker, Minters Fields offers a truly remar...
03/Jun/2025 | OpenLot.com.au
🏡 Step Inside a Frenken Home at Smiths Lane
During a recent visit to the Smiths Lane display village, OpenLot.com.au ...