Orchard Square Bacchus Marsh Estate - Darley
[LIMITED OFFER] Exclusive 8% guaranteed rental NDIS packages!
- Savvy investors can enjoy up to 7 years rental guarantee
- 50 mins to Melbourne CBD
- Express rail to CBD in 40 mins
This information is estimated by the OpenLot research team. Let us know here to provide up-to-date information about this development.
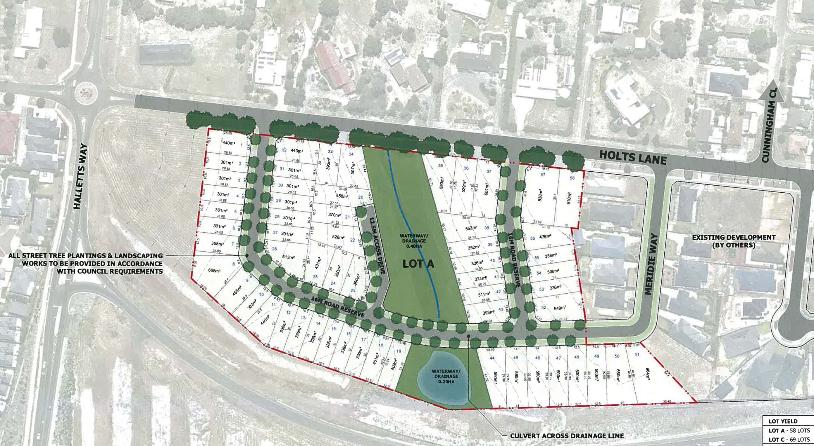
| Total new homes | 130 |
| Area size | 8.26 hectares |
| City council | Moorabool Shire Council |
| Developer | Oreana |
| Project marketer | Pivot Construction Group |
| Distance to | Melbourne Airport - 36 km west Melbourne CBD - 50 km west |
Land for Sale, House and Land Packages:
Popular Estates near Orchard Square Bacchus Marsh Estate - Darley
Updates for Orchard Square Bacchus Marsh Estate - Darley
Location & Map for Orchard Square Bacchus Marsh Estate - Darley
Land Price Trend in Darley VIC 3340
- In Oct - Dec 24, the median price for vacant land in Darley VIC 3340 was $322,500. *
- From Oct - Dec 17 to Oct - Dec 24, the median price for vacant land in Darley VIC 3340 has increased 57.32%. *
- From 2008 to 2024, the median price for vacant land in Darley VIC 3340 has increased 209.86%. *
Schools near Orchard Square Bacchus Marsh Estate - Darley
Here are 6 schools near Orchard Square Bacchus Marsh Estate - Darley:
Prep-6 Government Primary School
Prep-6 Government Primary School
Prep-6 Catholic Primary School
Prep-6 Government Primary School
7-12 Government Secondary School
Prep-12 Independent Combined School - School Head Campus
Reviews & Comments on Orchard Square Bacchus Marsh Estate - Darley
Estate Brochure, Masterplan, Engineering Plan, Plan of Subdivision (POS), Design Guidelines
FAQs about Orchard Square Bacchus Marsh Estate - Darley
View all estates from Oreana
View all estates marketed by Pivot Construction Group
- Pentland Primary School - 923m north-west
- Darley Primary School - 1.0km north-east
- St Bernard's School - 1.2km south-east
- Bacchus Marsh Primary School - 1.7km south-east
- Bacchus Marsh College - 2.6km south
- Bacchus Marsh Grammar - 3.1km south
Popular Estates near Orchard Square Bacchus Marsh Estate - Darley
Latest New Home Articles for You
19/Aug/2025 | OpenLot.com.au
🏡 Suburb Profile: Beveridge
Beveridge is within the Mitchell Shire, located 42 kilometres north of Me...
19/Aug/2025 | OpenLot.com.au
test2
19/Aug/2025 | OpenLot.com.au
tests
13/Jun/2025 | OpenLot.com.au
Display Homes at Playford Alive Estate: A Thriving Community at the Heart of Munno Para
Welcome to Playford Alive, a vibrant and dynamic masterplanned community ...
11/Jun/2025 | OpenLot.com.au
Display Homes at Ocean Hill Estate: A Thriving Community by the Coast
A short stroll from the white sands of Madora Beach and fringed by the co...
10/Jun/2025 | OpenLot.com.au
Display Homes at Bluestone Estate: An Established Community in the Mount Barker
Whether you’re a first home buyer, a growing family, or looking to downsi...
09/Jun/2025 | OpenLot.com.au
Queensland Leads, But NSW and VIC Fall Behind, in New Housing Buyer Demand Index
New data reveals that Australia’s new housing market remains resilient de...
06/Jun/2025 | OpenLot.com.au
Display Homes at Minters Fields Estate: A Scenic Hillside Community in Mount Barker
Nestled in the heart of Mount Barker, Minters Fields offers a truly remar...
03/Jun/2025 | OpenLot.com.au
🏡 Step Inside a Frenken Home at Smiths Lane
During a recent visit to the Smiths Lane display village, OpenLot.com.au ...