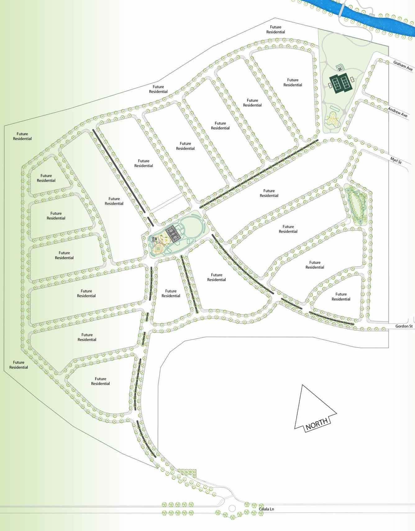
The Outlook Estate - Calala
This information is estimated by the OpenLot research team. Let us know here to provide up-to-date information about this development.
| Total new homes | 474 |
| Area size | 90.00 hectares |
| City council | Tamworth Regional Council |
| Developer | Abadeen Group |
| Project marketer | Partner Now Property |
| Creative agency | iDevelopments |
Land for Sale, House and Land Packages:
Popular Estates near The Outlook Estate - Calala
Updates for The Outlook Estate - Calala
Location & Map for The Outlook Estate - Calala
Schools near The Outlook Estate - Calala
Here are 6 schools near The Outlook Estate - Calala:
K-12 Independent Combined School
U Government Special School
U Government Special School
7-12 Government Secondary School
K-6 Independent Primary School
K-6 Catholic Primary School - School Head Campus
Reviews & Comments on The Outlook Estate - Calala
Estate Brochure, Masterplan, Engineering Plan, Plan of Subdivision (POS), Design Guidelines
FAQs about The Outlook Estate - Calala
View all estates from Abadeen Group
View all estates marketed by Partner Now Property
- Carinya Christian School Tamworth - 949m south
- Parry School - 2.2km north-west
- Bullimbal School - 2.4km north-west
- Tamworth High School - 2.6km north-west
- Liberty College - 2.6km south-west
- St Edward's Primary School - 2.6km north-west
Popular Estates near The Outlook Estate - Calala
Latest New Home Articles for You
19/Aug/2025 | OpenLot.com.au
🏡 Suburb Profile: Beveridge
Beveridge is within the Mitchell Shire, located 42 kilometres north of Me...
19/Aug/2025 | OpenLot.com.au
test2
19/Aug/2025 | OpenLot.com.au
tests
13/Jun/2025 | OpenLot.com.au
Display Homes at Playford Alive Estate: A Thriving Community at the Heart of Munno Para
Welcome to Playford Alive, a vibrant and dynamic masterplanned community ...
11/Jun/2025 | OpenLot.com.au
Display Homes at Ocean Hill Estate: A Thriving Community by the Coast
A short stroll from the white sands of Madora Beach and fringed by the co...
10/Jun/2025 | OpenLot.com.au
Display Homes at Bluestone Estate: An Established Community in the Mount Barker
Whether you’re a first home buyer, a growing family, or looking to downsi...
09/Jun/2025 | OpenLot.com.au
Queensland Leads, But NSW and VIC Fall Behind, in New Housing Buyer Demand Index
New data reveals that Australia’s new housing market remains resilient de...
06/Jun/2025 | OpenLot.com.au
Display Homes at Minters Fields Estate: A Scenic Hillside Community in Mount Barker
Nestled in the heart of Mount Barker, Minters Fields offers a truly remar...
03/Jun/2025 | OpenLot.com.au
🏡 Step Inside a Frenken Home at Smiths Lane
During a recent visit to the Smiths Lane display village, OpenLot.com.au ...