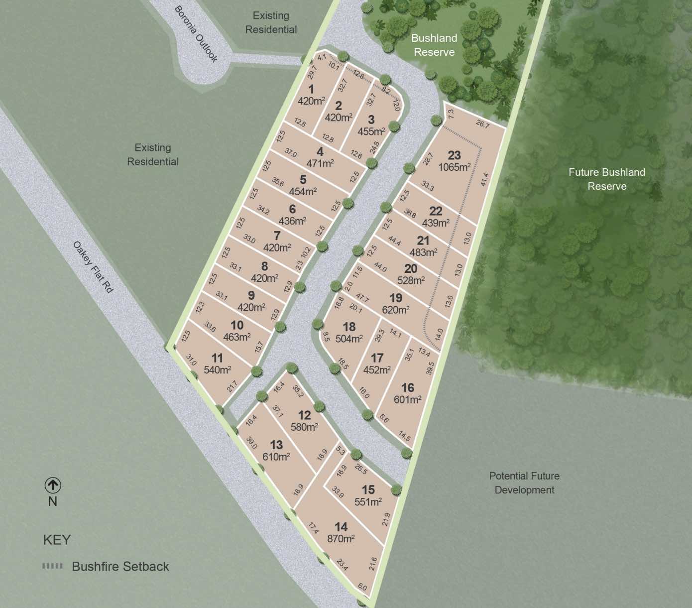
Panora Rise Estate - Narangba SOLD OUT
- Registered & ready to build
- Large Suburban blocks surrounded by nature
- Close to public transport
- House & Land packages available
- Final blocks now selling
This information is estimated by the OpenLot research team. Let us know here to provide up-to-date information about this development.
| Total new homes | 23 |
| Area size | 2.62 hectares |
| Growth Region | Greater Brisbane Growth Areas |
| City council | Moreton Bay Regional Council |
| Developer | Nolah Property Developments |
| Project marketer | Colliers |
| Distance to | Brisbane Airport - 28 km north-west Brisbane CBD - 32 km north |
Land for Sale:
Popular Estates near Panora Rise Estate - Narangba
Updates for Panora Rise Estate - Narangba
Location & Map for Panora Rise Estate - Narangba
Visit Display Homes near Panora Rise Estate - Narangba
Vacancy Rate in Narangba QLD 4504
View full vacancy rate history in Narangba QLD 4504 via SQM Research.
Schools near Panora Rise Estate - Narangba
Here are 6 schools near Panora Rise Estate - Narangba:
Prep-6 Government Primary School
7-12 Government Secondary School
Prep-6 Government Primary School
Prep-6 Government Primary School
7-9 Independent Secondary School
Prep-12 Independent Combined School
Reviews & Comments on Panora Rise Estate - Narangba
FAQs about Panora Rise Estate - Narangba
View all estates from Nolah Property Developments
View all estates marketed by Colliers
- Jinibara State School - 1.2km north
- Narangba Valley State High School - 2.0km north
- Narangba State School - 2.2km south-east
- Narangba Valley State School - 2.4km north-west
- The Younity School - 3.1km north-east
- Carmichael College - 3.2km north-west
Popular Estates near Panora Rise Estate - Narangba
Latest New Home Articles for You
19/Aug/2025 | OpenLot.com.au
🏡 Suburb Profile: Beveridge
Beveridge is within the Mitchell Shire, located 42 kilometres north of Me...
19/Aug/2025 | OpenLot.com.au
test2
19/Aug/2025 | OpenLot.com.au
tests
13/Jun/2025 | OpenLot.com.au
Display Homes at Playford Alive Estate: A Thriving Community at the Heart of Munno Para
Welcome to Playford Alive, a vibrant and dynamic masterplanned community ...
11/Jun/2025 | OpenLot.com.au
Display Homes at Ocean Hill Estate: A Thriving Community by the Coast
A short stroll from the white sands of Madora Beach and fringed by the co...
10/Jun/2025 | OpenLot.com.au
Display Homes at Bluestone Estate: An Established Community in the Mount Barker
Whether you’re a first home buyer, a growing family, or looking to downsi...
09/Jun/2025 | OpenLot.com.au
Queensland Leads, But NSW and VIC Fall Behind, in New Housing Buyer Demand Index
New data reveals that Australia’s new housing market remains resilient de...
06/Jun/2025 | OpenLot.com.au
Display Homes at Minters Fields Estate: A Scenic Hillside Community in Mount Barker
Nestled in the heart of Mount Barker, Minters Fields offers a truly remar...
03/Jun/2025 | OpenLot.com.au
🏡 Step Inside a Frenken Home at Smiths Lane
During a recent visit to the Smiths Lane display village, OpenLot.com.au ...