Pinecrest Estate - Mount Peter
This information is estimated by the OpenLot research team. Let us know here to provide up-to-date information about this development.
| Total new homes | 1,500 |
| Area size | 100.00 hectares |
| Growth Region | Cairns (Far North Queensland Region) |
| City council | Cairns Regional Council |
| Developer | Kroymans Developments |
| Project marketer | Property Shop Cairns |
| Creative agency | Mustard Design & Digital |
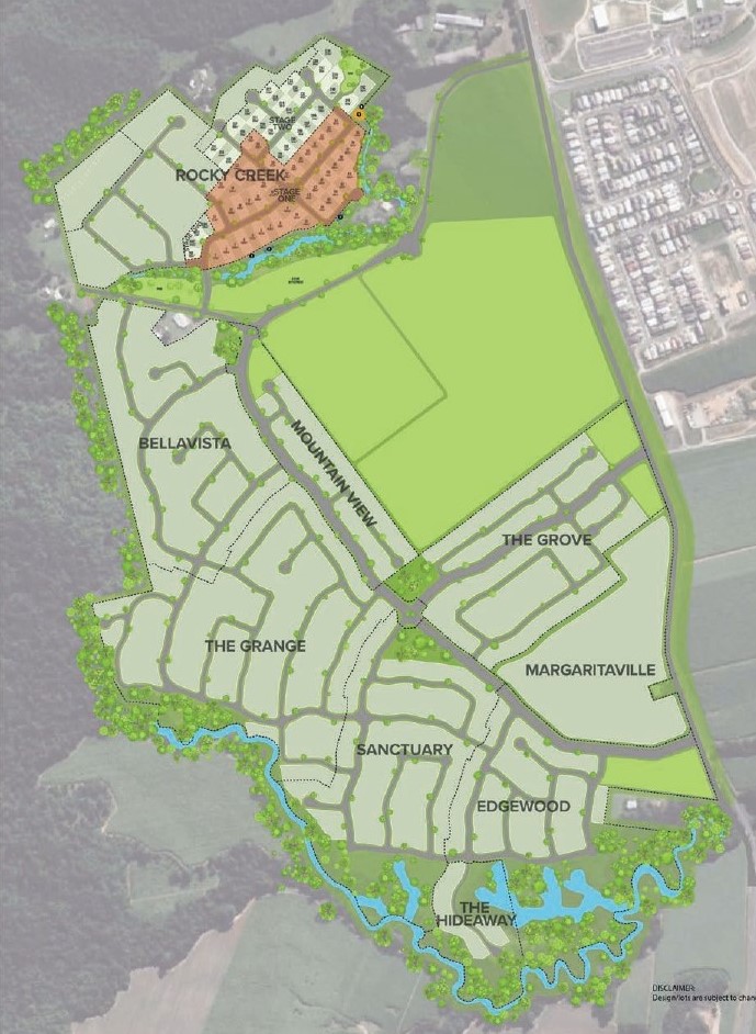
| Other names | Rocky Creek, The Grove, Bellavista, The Grange, Sanctuary, Edgewood, Mountainview |
| Distance to | Cairns CBD - 15 km south |
Land for Sale, House and Land Packages:
Popular Estates near Pinecrest Estate - Mount Peter
Updates for Pinecrest Estate - Mount Peter
Location & Map for Pinecrest Estate - Mount Peter
Vacancy Rate in Mount Peter QLD 4869
View full vacancy rate history in Mount Peter QLD 4869 via SQM Research.
Schools near Pinecrest Estate - Mount Peter
Here are 6 schools near Pinecrest Estate - Mount Peter:
Prep-12 Catholic Combined School
Prep-6 Government Primary School
Prep-6 Government Primary School
Prep-12 Government Combined School
Prep-6 Catholic Primary School
Prep-12 Independent Combined School - School Head Campus
Reviews & Comments on Pinecrest Estate - Mount Peter
Estate Brochure, Masterplan, Engineering Plan, Plan of Subdivision (POS), Design Guidelines
FAQs about Pinecrest Estate - Mount Peter
View all estates from Kroymans Developments
View all estates marketed by Property Shop Cairns
- MacKillop Catholic College, Mount Peter - 1.4km north-east
- Hambledon State School - 3.1km north
- Isabella State School - 3.9km north
- Bentley Park College - 4.5km north
- St Therese's School - 4.7km north
- Djarragun College - 5.8km south-east
Popular Estates near Pinecrest Estate - Mount Peter
Latest New Home Articles for You
19/Aug/2025 | OpenLot.com.au
🏡 Suburb Profile: Beveridge
Beveridge is within the Mitchell Shire, located 42 kilometres north of Me...
19/Aug/2025 | OpenLot.com.au
test2
19/Aug/2025 | OpenLot.com.au
tests
13/Jun/2025 | OpenLot.com.au
Display Homes at Playford Alive Estate: A Thriving Community at the Heart of Munno Para
Welcome to Playford Alive, a vibrant and dynamic masterplanned community ...
11/Jun/2025 | OpenLot.com.au
Display Homes at Ocean Hill Estate: A Thriving Community by the Coast
A short stroll from the white sands of Madora Beach and fringed by the co...
10/Jun/2025 | OpenLot.com.au
Display Homes at Bluestone Estate: An Established Community in the Mount Barker
Whether you’re a first home buyer, a growing family, or looking to downsi...
09/Jun/2025 | OpenLot.com.au
Queensland Leads, But NSW and VIC Fall Behind, in New Housing Buyer Demand Index
New data reveals that Australia’s new housing market remains resilient de...
06/Jun/2025 | OpenLot.com.au
Display Homes at Minters Fields Estate: A Scenic Hillside Community in Mount Barker
Nestled in the heart of Mount Barker, Minters Fields offers a truly remar...
03/Jun/2025 | OpenLot.com.au
🏡 Step Inside a Frenken Home at Smiths Lane
During a recent visit to the Smiths Lane display village, OpenLot.com.au ...