Lot 110: @ Redgum Rise Estate - Oakville NSW 2765
Modern Family Home
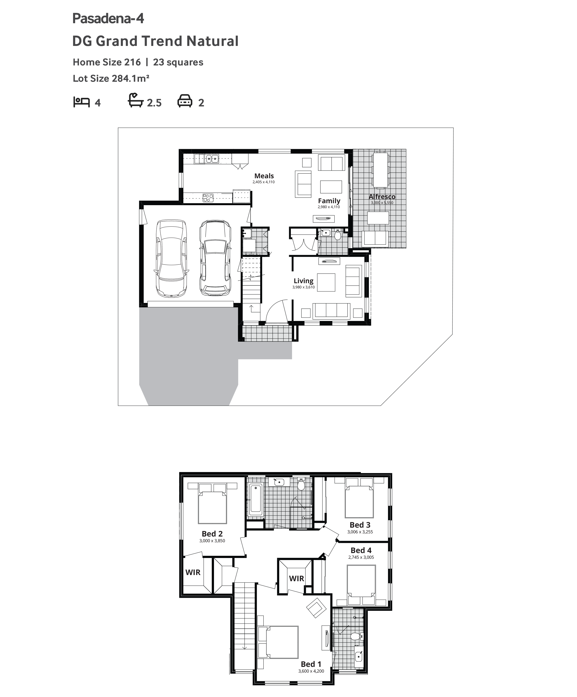
The house has four bedrooms, providing ample space for family members or guests. Each of these bedrooms comes equipped with built-in wardrobes, offering storage solutions for clothing and personal items. The master bedroom is highlighted as a standout feature. It includes an ensuite bathroom, which is a private bathroom attached to the master bedroom, providing convenience and privacy. Additionally, there's a walk-in robe, offering plenty of storage for clothing and accessories.
In addition to the ensuite in the master bedroom, there is also a well-appointed main bathroom. This bathroom is designed for use by the rest of the family or guests.
The ground floor of the house offers both formal and informal living areas. This suggests that there are spaces for more formal gatherings as well as casual, everyday living. The kitchen is described features CaesarStone benchtops, which are known for their durability and aesthetic appeal. The mention of high-quality stainless steel appliances suggests that it's well-equipped for cooking and meal preparation.
The living areas seamlessly extend to a beautiful outdoor alfresco area. This outdoor space is suited for outdoor dining and entertaining, making it a great place to host friends and family.
Overall, the Pasadena floor plan appears to offer a balance of comfort and functionality, with a focus on modern amenities and spaces for both relaxation and entertainment.
Great Inclusions Inside and Out
• Ducted reverse cycle air conditioning
• Stone kitchen benchtops
• Flyscreens to windows and sliding / stacker doors
• Semi frameless shower screens
• Window Furnishings throughout
• Alarm system with ‘Touchnav’ LED code pad and 2 remotes (also, connected to garage door auto opener)
• Auto garage door (one door only)
^ All plans, drawings and designs in this website are for marketing and illustrative purposes only. Dimensions and specifications are approximate and may not be accurate. Photographs, artists impressions and other imagery used are for illustrative purposes and may show fixtures, fittings, finishes, floorplans, furniture, landscaping, internal and external finishes, and decorative items that are not included in the sale. Allam Homes Pty Limited reserves its right to alter the design, specifications, dimensions, floorplans, inclusions, finishes, and prices without notice or obligation. For further information and to view the full terms and conditions visit www.allam.com.au.
4
2
2
Development Info of Redgum Rise Estate - Oakville
This information is estimated by the OpenLot research team. Let us know here to provide up-to-date information about this development.
| Total new homes | N/A |
| Area size | N/A |
| Growth Region | Sydney North West Growth Areas |
| City council | Hawkesbury City Council |
| Developer | Allam Property Group |
| Creative agency | Nimbl |
| Distance to | Sydney CBD - 38 km north-west Sydney Airport - 44 km north-west |
Location & Map for Redgum Rise Estate - Oakville
Visit Display Homes near Redgum Rise Estate - Oakville
More House and Land Packages in Redgum Rise Estate - Oakville
Vacancy Rate in Oakville NSW 2765
View full vacancy rate history in Oakville NSW 2765 via SQM Research.
Schools near Redgum Rise Estate - Oakville
Here are 6 schools near Redgum Rise Estate - Oakville:
K-6 Government Primary School
K-6 Government Primary School
7-12 Catholic Secondary School
K-6 Catholic Primary School
K-6 Catholic Primary School
K-12 Independent Combined School
Suburb Planning Review in Oakville NSW 2765
Oakville is approximately 14.6 square kilometres within the City of Hawkesbury, forming part of the Sydney Basin area in New South Wales, located 49 kilometres north-west of Sydney and located inland near the base of the Scheyville National Park.

The suburb boundary is located along Old Pitt Town Road, Midson Road, Martin Road and Scholfield Road to the north and Boundary Road to the east. Property boundaries make up the entire western and southern boundaries. Windsor Road and Killarney Chain of Ponds run parallel together outside of the southern boundary.
Broos Road, Smith Road and Old Stock Rte Road provide local road access (north to south) and connect the local road network found throughout Oakville. Brennan Dam Road, Henry Road, and Chapman Road provide southern connections to surrounding suburbs, while Scheyville Road and Old Stock Rte Road are to the north. Menin Road and Old Pitt Town Road provide access to the east, while Wolseley Road and Saunders Road to the west.
The suburb of Oakville is primarily rural land holdings, with Oakville found to contain the southern portion of the Scheyville National Park, rural residential properties. The suburb does not have a business district, though contains recreational areas, natural watercourses, water holes, dams and in proximity to national parks. New urban development is occurring in the southern portion of the suburb, where the boundary has been amended to form the suburb of Vineyard. Stage 1 of the Vineyard Precinct has been recognised and approved for future urban development.

North West Priority Growth Area(Oakville)
Sydney’s North West will form part of the new approach to planning in NSW, following a review by the Department of Planning Industry and Environment in partnership with the Greater Sydney Commission and Government Architect. The decision was made to deliver 51 growth precincts, with the state government able to target areas and local councils empowered to get the correct planning for their community. The precinct planning will occur in four different pathways, being:
- State-led strategic planning
- Collaborative planning between the State and councils
- State-led rezoning
- Council-led rezoning
Oakville is not part of the growth area, however the southern portion of the suburb has been amended to form the suburb of Vineyard and forms part of the North West Growth Area. The area will proceed under the Strategic Planning method, with early work by the Department, councils, State agencies and communities in the development of places and the planning frameworks that support them.

The Hawkesbury City Council prepared a Growth Centres Precinct Development Control Plan (DCP) that was adopted by the Secretary (or delegate) of the Department of Planning and Environment on 8 January 2018 and came into force on 18 January 2018, rezoning a portion of Oakville and amended the boundary for a new suburb of Vineyard.
The DCP was prepared to provide additional guidance to developers on how development is to occur in the Precinct and considerations undertake development in the Vineyard Precinct. The Council’s statutory development assessment will refer to the DCP and in conjunction with the Growth Centres SEPP.


Eastern Precinct (Stage1)
The eastern portion of Vineyard and a southern portion of Oakville created the new Precinct., which set out the new road, open space and drain network for the area. The Precinct was provided with new density levels for residential areas, preferred new school location and retail, as well as environmental heritage values.
The New South Wales State Government aimed to provide a new precinct that was an attractive and well-connected community, in proximity to public transport, community facilities, open space and retail.



Vision of Oakville
“Planning for the Vineyard Precinct responds to the need for new and diverse housing in Sydney that is well connected to major centres and employment, protects natural assets and encourages sustainable living. Consideration of the surrounding context, history and natural environment has informed the precinct planning process”.
“The Precinct will consist of a mix of housing types that will allow for greater choice for different household types. It predominantly provides for low density housing, with some medium density around the village centre and open spaces”.
“Places of significant heritage value, particularly the Pitt Town Common House, have been integrated into the planning of the Precinct to ensure protection through a sensitive design approach. The village centre will support retail, commercial and community services to promote community interaction”.
“Regional public transport accessibility has been provided through road connections to the nearby Vineyard railway station and a regional bus network along the major roads. A safe and permeable street network will promote accessibility, connectivity and social interaction. The provision of cycle ways and pedestrian connections, as well as public transport connections to surrounding centres, will promote a community that is less dependent on private vehicle use”.
Precinct Zoning of Oakville
The existing zoning will be amended to provide for future infrastructures to facilitate future development within the Hawkesbury City Council Growth Centres Precinct. A new village centre including a supermarket and some community facilities is planned to meet the local shopping needs of future residents.
A new road network has been designed to help provide safe streets for residents, cycling and walking paths, and provide direct access to the village centre. The new roads will enable bus services to connect people to surrounding suburbs and areas for schools, employment, retail, open spaces and services.
Pedestrian and cyclist facilities will be constructed along open space and Killarney Chain of Ponds that will access the new residential areas.


The rezoning of part of the Vineyard precinct will create a new community with shops, cafes and substantial green open space in Sydney's North West. Green spaces will be integrated with new homes with landscaping and tree planting along streets and in public domain areas, and with protected remnant stands of vegetation, for local residents to enjoy.
Oakville Suburb Summary
References
Vineyard – Stage 1 Precinct Rezoning
Hawkesbury City Council Growth Centres Precinct - Development Control Plan
Popular Estates near Redgum Rise Estate - Oakville
Latest New Home Articles for You
19/Aug/2025 | OpenLot.com.au
🏡 Suburb Profile: Beveridge
Beveridge is within the Mitchell Shire, located 42 kilometres north of Me...
19/Aug/2025 | OpenLot.com.au
test2
19/Aug/2025 | OpenLot.com.au
tests
13/Jun/2025 | OpenLot.com.au
Display Homes at Playford Alive Estate: A Thriving Community at the Heart of Munno Para
Welcome to Playford Alive, a vibrant and dynamic masterplanned community ...
11/Jun/2025 | OpenLot.com.au
Display Homes at Ocean Hill Estate: A Thriving Community by the Coast
A short stroll from the white sands of Madora Beach and fringed by the co...
10/Jun/2025 | OpenLot.com.au
Display Homes at Bluestone Estate: An Established Community in the Mount Barker
Whether you’re a first home buyer, a growing family, or looking to downsi...
09/Jun/2025 | OpenLot.com.au
Queensland Leads, But NSW and VIC Fall Behind, in New Housing Buyer Demand Index
New data reveals that Australia’s new housing market remains resilient de...
06/Jun/2025 | OpenLot.com.au
Display Homes at Minters Fields Estate: A Scenic Hillside Community in Mount Barker
Nestled in the heart of Mount Barker, Minters Fields offers a truly remar...
03/Jun/2025 | OpenLot.com.au
🏡 Step Inside a Frenken Home at Smiths Lane
During a recent visit to the Smiths Lane display village, OpenLot.com.au ...