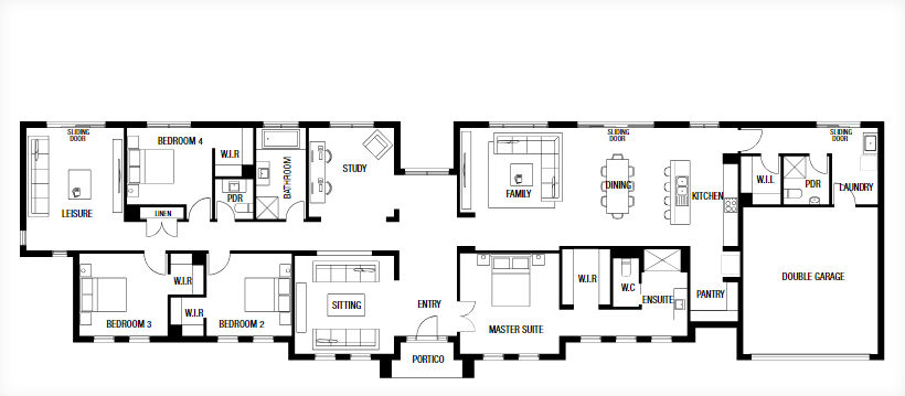
Lot 217: Davenport @ Rosalia Estate - Gisborne VIC 3437
4
2
2
Development Info of Rosalia Estate - Gisborne
This information is estimated by the OpenLot research team. Let us know here to provide up-to-date information about this development.
| Total new homes | 750 |
| Area size | 28.71 hectares |
| Growth Region | Melbourne North Growth Corridor |
| City council | Macedon Ranges Shire Council |
| Developer | ID Land |
| Project marketer | Oliver Hume Real Estate Group |
| Other names | Rosalia Gisborne |
| Distance to | Melbourne Airport - 32 km north-west Melbourne CBD - 51 km north-west |
Location & Map for Rosalia Estate - Gisborne
Nearby Display Homes from Metricon Homes (Home Builder)
4
2
3
2
Visit Display Homes near Rosalia Estate - Gisborne
More House and Land Packages in Rosalia Estate - Gisborne
More House and Land Packages by Metricon Homes (Home Builder)
Land Price Trend in Gisborne VIC 3437
- In Oct - Dec 24, the median price for vacant land in Gisborne VIC 3437 was $413,300. *
- From Oct - Dec 17 to Oct - Dec 24, the median price for vacant land in Gisborne VIC 3437 has increased 29.97%. *
- From 2008 to 2024, the median price for vacant land in Gisborne VIC 3437 has increased 140.57%. *
Vacancy Rate in Gisborne VIC 3437
View full vacancy rate history in Gisborne VIC 3437 via SQM Research.
Schools near Rosalia Estate - Gisborne
Here are 6 schools near Rosalia Estate - Gisborne:
Prep-6 Government Primary School
Prep-6 Government Primary School
Prep-6 Catholic Primary School
Prep-6 Catholic Primary School
7-12 Government Secondary School
Prep-11 Independent Combined School
Popular Estates near Rosalia Estate - Gisborne
Latest New Home Articles for You
19/Aug/2025 | OpenLot.com.au
š” Suburb Profile: Beveridge
Beveridge is within the Mitchell Shire, located 42 kilometres north ofĀ Me...
19/Aug/2025 | OpenLot.com.au
test2
19/Aug/2025 | OpenLot.com.au
tests
13/Jun/2025 | OpenLot.com.au
Display Homes at Playford Alive Estate: A Thriving Community at the Heart of Munno Para
Welcome to Playford Alive, a vibrant and dynamic masterplanned community ...
11/Jun/2025 | OpenLot.com.au
Display Homes at Ocean Hill Estate: A Thriving Community by the Coast
A short stroll from the white sands of Madora Beach and fringed by the co...
10/Jun/2025 | OpenLot.com.au
Display Homes at Bluestone Estate: An Established Community in the Mount Barker
Whether youāre a first home buyer, a growing family, or looking to downsi...
09/Jun/2025 | OpenLot.com.au
Queensland Leads, But NSW and VIC Fall Behind, in New Housing Buyer Demand Index
New data reveals that Australiaās new housing market remains resilient de...
06/Jun/2025 | OpenLot.com.au
Display Homes at Minters Fields Estate: A Scenic Hillside Community in Mount Barker
Nestled in the heart of Mount Barker, Minters Fields offers a truly remar...
03/Jun/2025 | OpenLot.com.au
š” Step Inside a Frenken Home at Smiths Lane
During a recent visit to the Smiths Lane display village, OpenLot.com.au ...