Perfectly Designed for Families

Welcome home to the stunning Mayfair. You’ll be impressed with the space and layout that allows for cohesive family living whilst giving everyone their own room.

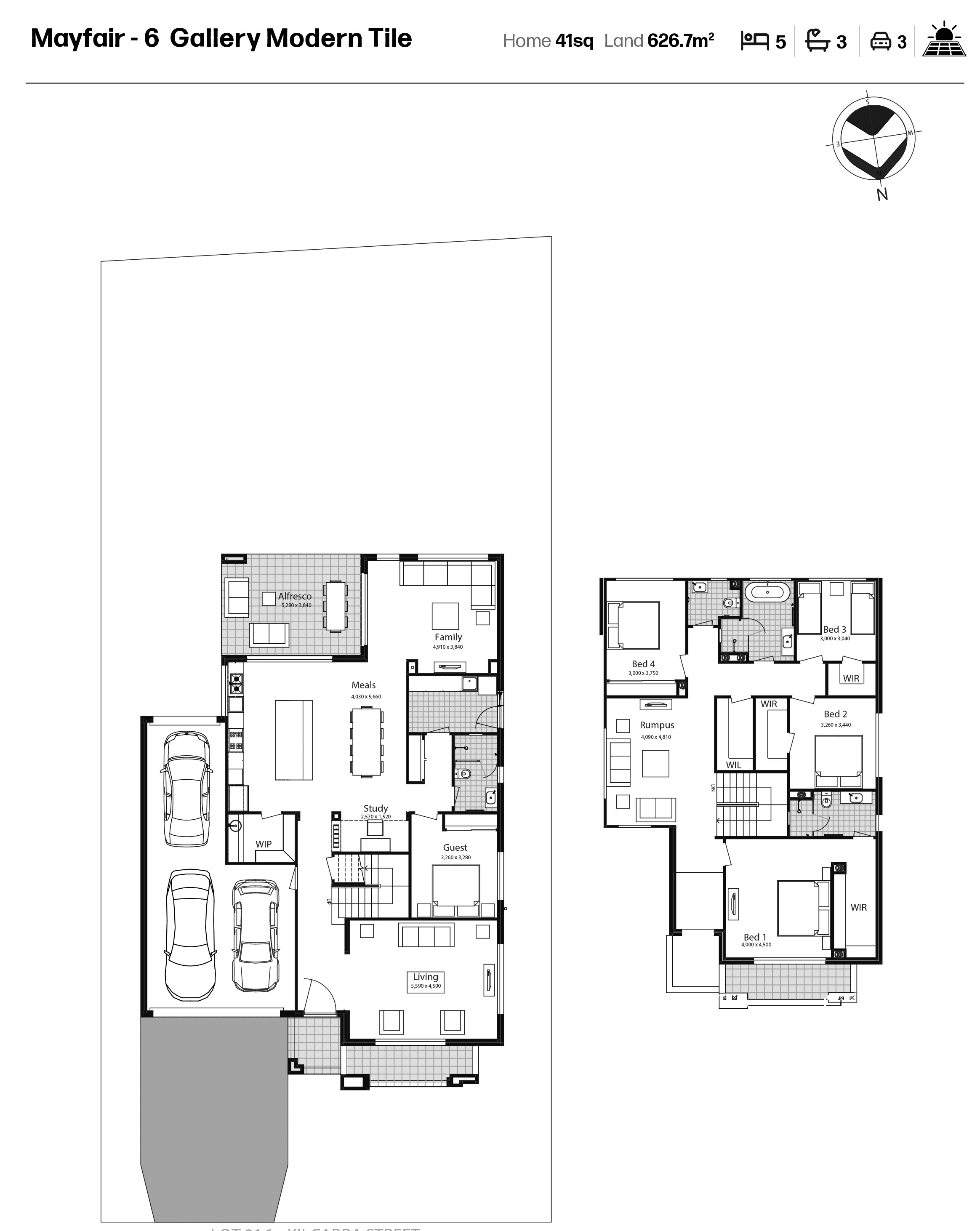
Featuring five bedrooms, including a ground-floor guest bedroom or study, and a separate bathroom, this home is ideally suited for multi-generational living. The three spacious living areas provide flexibility for relaxation, entertainment, and family connection.

At the heart of the home is a chef’s kitchen, complete with a butler’s pantry, that flows seamlessly into the open-plan dining and family area, study nook, and out to the alfresco, ideal for year-round entertaining.

Upstairs, the master suite impresses with a large walk-in robe and private ensuite. A separate powder room adds convenience for family and guests alike.

With a triple lock-up garage and a thoughtfully designed floorplan, the Mayfair combines space, style, and practicality — the perfect place for your family to grow and thrive.

Property Highlights include;
• Ducted reverse cycle air conditioning
• Flyscreens to all windows and sliding doors, block out blinds throughout and light filtering blinds to front elevation
• Quality flooring throughout
• Kitchen with 40mm stone bench tops with waterfall ends and stainless steel appliances, microwave included, soft-close drawers and glass splashback
• Alarm system with ‘Touchnav’ LED code pad and two remotes, remote garage door, and solar system
• Concrete driveway, landscaping, and fencing.

Disclaimer: Plans, drawings, and designs on this website are for marketing and illustrative purposes only. Dimensions are approximate, subject to survey and final subdivision plans (STCA). Plans are not to scale. Images, including artist impressions, may depict items not included in the sale. Purchasers should rely on their own enquiries and the Contract for Sale. Allam Homes Pty Limited may alter designs, specifications, dimensions, inclusions, and prices without notice. For full terms, visit www.allam.com.au.
Lot 316 Kilcarra Street Available
Bed  5 Bath  3 Car  3
Land Size: 626.70m²
Price: $1,399,000

Floor-plan for Lot 316:


Development Info of Sophia Waters Estate - Chisholm

Total new homes 900
Area size N/A
Growth Region Greater Newcastle Growth Areas (The Hunter Region)
City council Maitland City Council
Developer Allam Property Group
Creative agency Nimbl
Distance to Newcastle CBD - 22 km north-west

Location & Map for Sophia Waters Estate - Chisholm

Loading...

Visit Display Homes near Sophia Waters Estate - Chisholm


More House and Land Packages in Sophia Waters Estate - Chisholm

Bed  5 Bath  3 Car  2
Land Size: 473.30m²
Where Comfort Meets Style
The Exceptional Maxwell has everything a growing family needs.

It has five spacious bedrooms or four plus a study, three living areas, open plan living, and three bathrooms, including one on the ground floor for guests. The beautiful open-plan kitchen complete with butler's pantry is positioned so you don't miss a thing.

Property Highlights include;
• Ducted reverse cycle air conditioning
• Flyscreens to all windows and sliding doors, block-out blinds throughout and light-filtering blinds to the front elevation
• Quality flooring throughout
• Kitchen with 40mm stone bench tops with waterfall ends and stainless steel appliances, microwave included, soft-close drawers and glass splashback
• Alarm system with ‘Touchnav’ LED code pad and two remotes, remote garage door, and solar system
• Concrete driveway, landscaping, and fencing.

Disclaimer: Plans, drawings, and designs on this website are for marketing and illustrative purposes only. Dimensions are approximate, subject to survey and final subdivision plans (STCA). Plans are not to scale. Images, including artist impressions, may depict items not included in the sale. Purchasers should rely on their own enquiries and the Contract for Sale. Allam Homes Pty Limited may alter designs, specifications, dimensions, inclusions, and prices without notice. For full terms, visit www.allam.com.au.
Price: $1,199,000
Bed  5 Bath  3 Car  2
Land Size: 539.04m²
Complete and Ready to Move into – View by appointment, contact Andrew today!
This splendid two-level home boasts five bedrooms thoughtfully designed to accommodate the dynamic lifestyle of a growing family. One of its standout features is the inclusion of a ground-floor bedroom with an adjacent bathroom, which provides a perfect retreat for guests or accommodates independent children and elderly parents with ease and convenience.

The residence offers abundant living spaces, encompassing both formal and informal areas across its two levels. The first floor features distinct zones for various activities, including a spacious rumpus room and a study nook. On the ground floor, an expansive covered alfresco terrace extends the living space outdoors from the dining and living area, creating an ideal setting for entertaining guests or simply enjoying the fresh air.

The heart of this home lies in its generously sized kitchen, complete with a walk-in pantry. This culinary haven is equipped to meet the needs of a busy family, offering ample storage and preparation space for delightful meals and gatherings.

The master bedroom is a true retreat, featuring his and hers robes and an ensuite. This carefully designed space provides a sanctuary for the homeowners, ensuring comfort and luxury.

All bedrooms are adorned with built-in robes, providing functional and aesthetically pleasing storage solutions. Access to a generously sized and well-appointed family bathroom enhances the practicality of daily living.

Immersed in functionality and style, this residence is filled with inclusions inside and out. From modern appliances to well-manicured landscaping, every detail has been considered to elevate the living experience of this remarkable home.

• Ducted reverse cycle air conditioning
• Stone kitchen benchtops
• Glass splashback
• Window Furnishings throughout
• Alarm system with ‘Touchnav’ LED code pad and 2 remotes (also, connected to garage door auto opener)
• Auto garage door (one door only)
• Half height tiling to bathroom & ensuite and powder rooms that include showers
• Free-standing bathtub
•Solar

Disclaimer: Plans, drawings, and designs on this website are for marketing and illustrative purposes only. Dimensions are approximate, subject to survey and final subdivision plans (STCA). Plans are not to scale. Images, including artist impressions, may depict items not included in the sale. Purchasers should rely on their own enquiries and the Contract for Sale. Allam Homes Pty Limited may alter designs, specifications, dimensions, inclusions, and prices without notice. For full terms, visit www.allam.com.au.
Price: $1,239,000
Bed  4 Bath  2 Car  2
Land Size: 539.10m²
Flexible Family Living
Experience the flexible open-plan layout, complemented by premium finishes, including stone benchtops and stainless-steel appliances. The home features four generously sized bedrooms, all with built-in wardrobes. The master bedroom offers a private retreat with an ensuite and a walk-in robe. With two living areas and a covered alfresco, you'll be set for year-round entertaining. Bedroom 2 is perfect as a home office, with street-frontage for plenty of natural light.

Property Highlights include;
• Ducted reverse cycle air conditioning
• Flyscreens to all windows and sliding doors, block out blinds throughout, and light filtering blinds to front elevation
• Quality flooring throughout
• Kitchen with stone bench tops and stainless steel appliances, soft-close drawers and glass splashback
• Alarm system with ‘Touchnav’ LED code pad and two remotes, remote garage door, and solar system
• Concrete driveway, landscaping, and fencing.

Disclaimer: Plans, drawings, and designs on this website are for marketing and illustrative purposes only. Dimensions are approximate, subject to survey and final subdivision plans (STCA). Plans are not to scale. Images, including artist impressions, may depict items not included in the sale. Purchasers should rely on their own enquiries and the Contract for Sale. Allam Homes Pty Limited may alter designs, specifications, dimensions, inclusions, and prices without notice. For full terms, visit www.allam.com.au.
Price: $1,059,000

Vacancy Rate in Chisholm NSW 2322

View full vacancy rate history in Chisholm NSW 2322 via SQM Research.


Schools near Sophia Waters Estate - Chisholm

Here are 6 schools near Sophia Waters Estate - Chisholm:

Lot 316:
Sophia Waters Estate - Chisholm