Summit Estate - Hemmant
[NEW RELEASE] Selling Soon. Register Your Interest
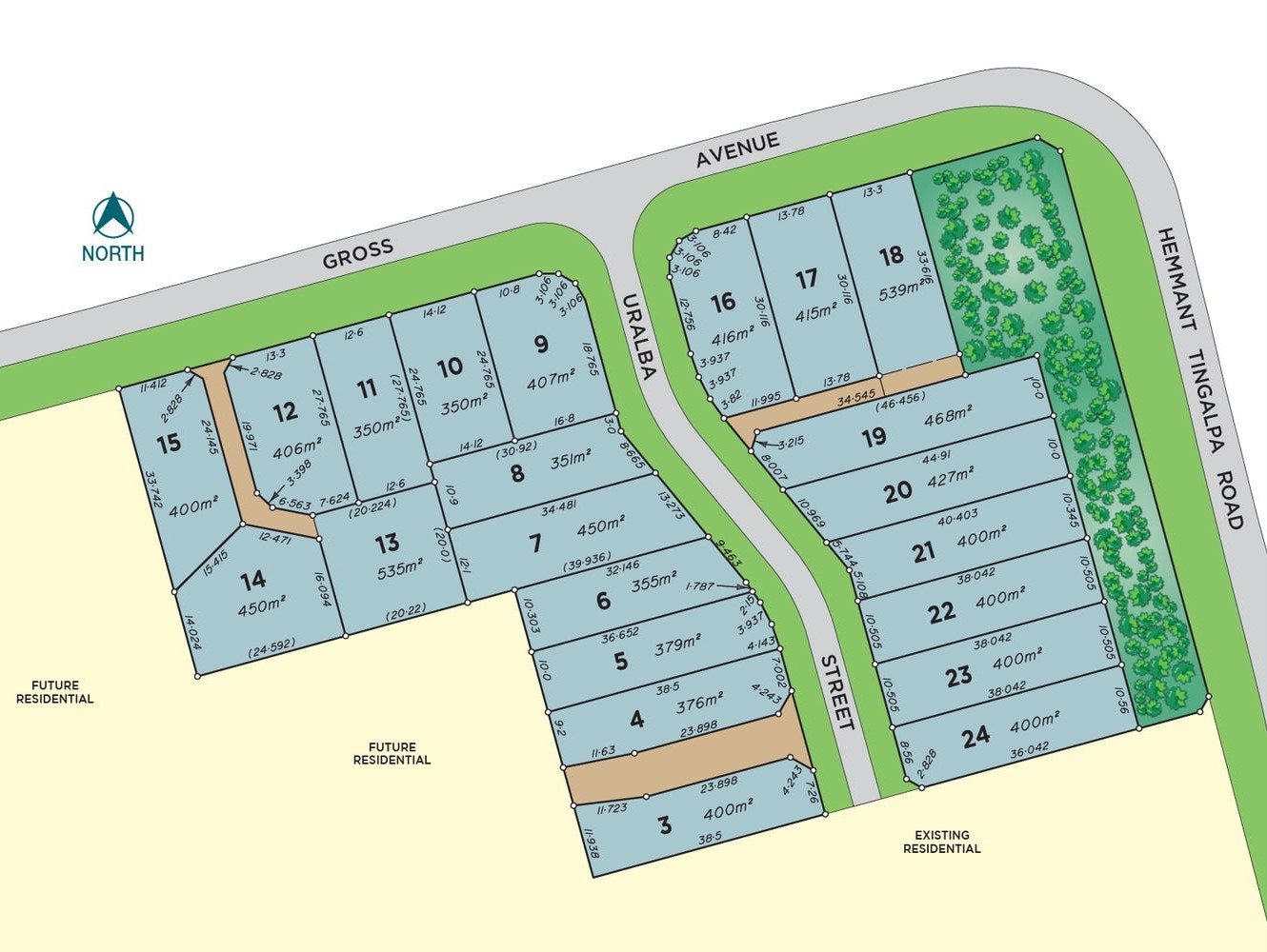
- SUMMIT (Stage 5) is our latest release, currently under construction for scheduled completion in October… your chance to get in early and select from 22 elevated, level homesites in a range of lot size, aspect and outlook.
Visit SUMMIT during Open Hours this long weekend to REGISTER YOUR INTEREST and you will be invited to secure your preferred lot before release to the open market.
SUMMIT HEMMANT by Evans Land Group is a masterplanned community now well established in the heights of Hemmant within sight of the Brisbane CBD and just 750m from Hemmant Railway Station, handy to every convenience of neighbouring Tingalpa and the revered leisure of Moreton Bay.
• High Level Lots (350m² to 539m²)
• Freehold Titles
• Choose your own Builder
• HANDY TO Hemmant Recreation Reserve, Moreton Town Shopping Centre, Wynnum Plaza and a wide selection of respected schools and colleges.
• 10 MINS TO Wynnum Golf Club, Sporting and Special Interest Clubs.
• CLOSE TO Wynnum waterfront and wading pool, Bayside Cafes and restaurants.
• 10KLMS TO Brisbane City
Drop by our onsite Land Sales Centre (in Gross Avenue) during Open Hours this weekend OR call NEIL on 0413 881 737 to Register your Interest!!
This information is estimated by the OpenLot research team. Let us know here to provide up-to-date information about this development.
| Total new homes | 22 |
| Area size | N/A |
| Growth Region | Greater Brisbane Growth Areas |
| City council | Brisbane City Council |
| Developer | Evans Land |
| Project marketer | Project Prestige |
| Distance to | Brisbane Airport - 7 km south Brisbane CBD - 10 km east |
Land for Sale, House and Land Packages:
Popular Estates near Summit Estate - Hemmant
Updates for Summit Estate - Hemmant
Location & Map for Summit Estate - Hemmant
Visit Display Homes near Summit Estate - Hemmant
Vacancy Rate in Hemmant QLD 4174
View full vacancy rate history in Hemmant QLD 4174 via SQM Research.
Schools near Summit Estate - Hemmant
Here are 6 schools near Summit Estate - Hemmant:
7-12 Catholic Special School
Prep-6 Government Primary School
7-12 Government Secondary School
5-12 Catholic Combined School
Prep-6 Government Primary School
Prep-6 Government Primary School
Reviews & Comments on Summit Estate - Hemmant
Estate Brochure, Masterplan, Engineering Plan, Plan of Subdivision (POS), Design Guidelines
FAQs about Summit Estate - Hemmant
View all estates from Evans Land
View all estates marketed by Project Prestige
- Hemmant Flexible School - 558m north
- Tingalpa State School - 2.3km south
- Brisbane Bayside State College - 2.4km south-east
- Iona College - 2.6km north-east
- Wynnum West State School - 2.6km east
- Murarrie State School - 2.8km west
Popular Estates near Summit Estate - Hemmant
Latest New Home Articles for You
19/Aug/2025 | OpenLot.com.au
🏡 Suburb Profile: Beveridge
Beveridge is within the Mitchell Shire, located 42 kilometres north of Me...
19/Aug/2025 | OpenLot.com.au
test2
19/Aug/2025 | OpenLot.com.au
tests
13/Jun/2025 | OpenLot.com.au
Display Homes at Playford Alive Estate: A Thriving Community at the Heart of Munno Para
Welcome to Playford Alive, a vibrant and dynamic masterplanned community ...
11/Jun/2025 | OpenLot.com.au
Display Homes at Ocean Hill Estate: A Thriving Community by the Coast
A short stroll from the white sands of Madora Beach and fringed by the co...
10/Jun/2025 | OpenLot.com.au
Display Homes at Bluestone Estate: An Established Community in the Mount Barker
Whether you’re a first home buyer, a growing family, or looking to downsi...
09/Jun/2025 | OpenLot.com.au
Queensland Leads, But NSW and VIC Fall Behind, in New Housing Buyer Demand Index
New data reveals that Australia’s new housing market remains resilient de...
06/Jun/2025 | OpenLot.com.au
Display Homes at Minters Fields Estate: A Scenic Hillside Community in Mount Barker
Nestled in the heart of Mount Barker, Minters Fields offers a truly remar...
03/Jun/2025 | OpenLot.com.au
🏡 Step Inside a Frenken Home at Smiths Lane
During a recent visit to the Smiths Lane display village, OpenLot.com.au ...