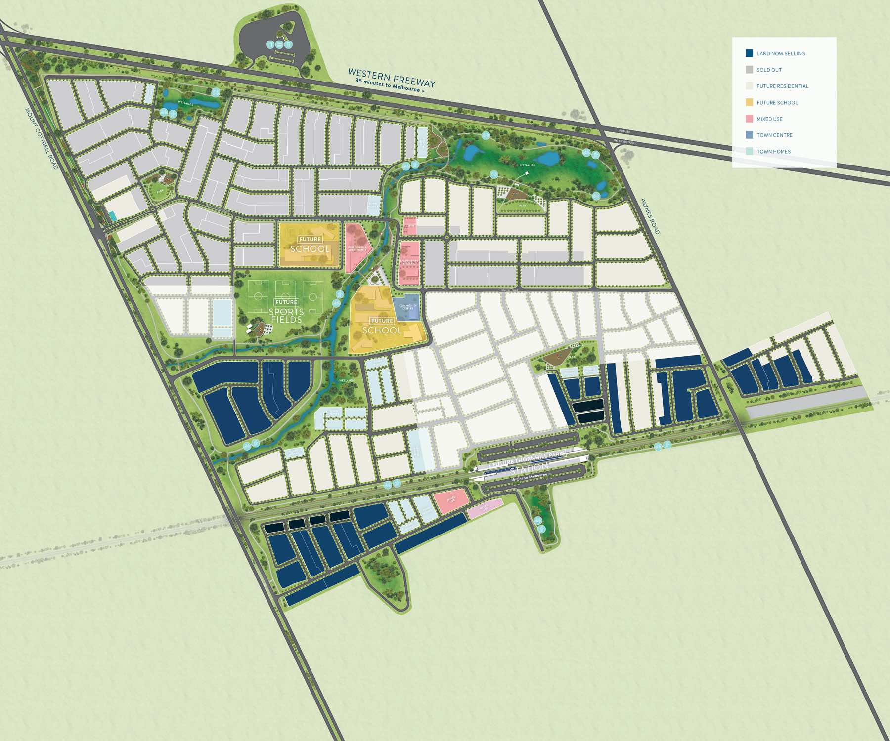
Thornhill Park Estate - Thornhill Park
[Limited Offer] Last chance! Final lots remaining.
- Live Bigger, Live Better. Enjoy spacious blocks, beautiful waterways and connected living.
- 32km West of Melbourne CBD
- Parks, schools, early learning education centres, shops and entertainment facilities nearby
- 5 minutes from the upcoming Melton Hospital
- Upcoming Thornhill Train Station nearby
- Easy access to the Western Freeway
- Rockbank and Cobblebank Train station nearby
This information is estimated by the OpenLot research team. Let us know here to provide up-to-date information about this development.
| Total new homes | 3,000 |
| Area size | 125.00 hectares |
| Growth Region | Melbourne West Growth Corridor |
| City council | Melton City Council |
| Developer | Wel.Co |
| Creative agency | Ivy Street, Cassette |
| Other names | The Mayflower, East Quarter Townhomes |
| Distance to | Melbourne Airport - 19 km west Melbourne CBD - 32 km west |
House and Land Packages:
Popular Estates near Thornhill Park Estate - Thornhill Park
Updates for Thornhill Park Estate - Thornhill Park
Location & Map for Thornhill Park Estate - Thornhill Park
Visit Display Homes near Thornhill Park Estate - Thornhill Park
Land Price Trend in Thornhill Park VIC 3335
- In Oct - Dec 24, the median price for vacant land in Thornhill Park VIC 3335 was $359,000. *
- From Oct - Dec 17 to Oct - Dec 24, the median price for vacant land in Thornhill Park VIC 3335 has increased 36.5%. *
- From 2015 to 2024, the median price for vacant land in Thornhill Park VIC 3335 has increased 10.62%. *
Vacancy Rate in Thornhill Park VIC 3335
View full vacancy rate history in Thornhill Park VIC 3335 via SQM Research.
Schools near Thornhill Park Estate - Thornhill Park
Here are 6 schools near Thornhill Park Estate - Thornhill Park:
Prep-6 Government Primary School
Prep-6 Government Primary School
Prep-6 Government Primary School
Prep-6 Government Primary School
Prep-9 Independent Combined School
Prep-6 Government Primary School
Reviews & Comments on Thornhill Park Estate - Thornhill Park
Estate Brochure, Masterplan, Engineering Plan, Plan of Subdivision (POS), Design Guidelines
FAQs about Thornhill Park Estate - Thornhill Park
View all estates from Wel.Co
- Thornhill Park Primary School - 118m south-west
- Strathtulloh Primary School - 3.4km west
- Aintree Primary School - 3.6km east
- Rockbank Primary School - 3.6km south-east
- Muhammadiyah Australia College - 4.0km north-west
- Melton South Primary School - 4.8km west
Popular Estates near Thornhill Park Estate - Thornhill Park
Latest New Home Articles for You
19/Aug/2025 | OpenLot.com.au
🏡 Suburb Profile: Beveridge
Beveridge is within the Mitchell Shire, located 42 kilometres north of Me...
19/Aug/2025 | OpenLot.com.au
test2
19/Aug/2025 | OpenLot.com.au
tests
13/Jun/2025 | OpenLot.com.au
Display Homes at Playford Alive Estate: A Thriving Community at the Heart of Munno Para
Welcome to Playford Alive, a vibrant and dynamic masterplanned community ...
11/Jun/2025 | OpenLot.com.au
Display Homes at Ocean Hill Estate: A Thriving Community by the Coast
A short stroll from the white sands of Madora Beach and fringed by the co...
10/Jun/2025 | OpenLot.com.au
Display Homes at Bluestone Estate: An Established Community in the Mount Barker
Whether you’re a first home buyer, a growing family, or looking to downsi...
09/Jun/2025 | OpenLot.com.au
Queensland Leads, But NSW and VIC Fall Behind, in New Housing Buyer Demand Index
New data reveals that Australia’s new housing market remains resilient de...
06/Jun/2025 | OpenLot.com.au
Display Homes at Minters Fields Estate: A Scenic Hillside Community in Mount Barker
Nestled in the heart of Mount Barker, Minters Fields offers a truly remar...
03/Jun/2025 | OpenLot.com.au
🏡 Step Inside a Frenken Home at Smiths Lane
During a recent visit to the Smiths Lane display village, OpenLot.com.au ...