Vantage Place Estate - Doolandella SOLD OUT
This information is estimated by the OpenLot research team. Let us know here to provide up-to-date information about this development.
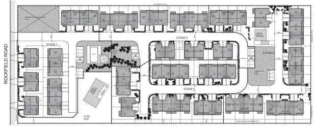
| Total new homes | 77 |
| Area size | 1.37 hectares |
| Growth Region | Greater Brisbane Growth Areas |
| City council | Brisbane City Council |
| Developer | Massland |
| Distance to | Brisbane CBD - 16 km south Brisbane Airport - 28 km south-west |
Townhomes:
Popular Estates near Vantage Place Estate - Doolandella
Updates for Vantage Place Estate - Doolandella
Location & Map for Vantage Place Estate - Doolandella
Visit Display Homes near Vantage Place Estate - Doolandella
Vacancy Rate in Doolandella QLD 4077
View full vacancy rate history in Doolandella QLD 4077 via SQM Research.
Schools near Vantage Place Estate - Doolandella
Here are 6 schools near Vantage Place Estate - Doolandella:
Prep-6 Government Primary School
Prep-6 Government Primary School
Prep-12 Independent Combined School - School Head Campus
Prep-12 Independent Combined School - School Head Campus
7-12 Government Secondary School
Prep-6 Government Primary School
Reviews & Comments on Vantage Place Estate - Doolandella
FAQs about Vantage Place Estate - Doolandella
View all estates from Massland
- Serviceton South State School - 608m north-west
- Durack State School - 1.5km north
- St John's Anglican College - 1.5km south-west
- Australian International Islamic College - 1.6km north-east
- Forest Lake State High School - 1.9km south-west
- Richlands East State School - 2.0km north-west
Popular Estates near Vantage Place Estate - Doolandella
Latest New Home Articles for You
19/Aug/2025 | OpenLot.com.au
🏡 Suburb Profile: Beveridge
Beveridge is within the Mitchell Shire, located 42 kilometres north of Me...
19/Aug/2025 | OpenLot.com.au
test2
19/Aug/2025 | OpenLot.com.au
tests
13/Jun/2025 | OpenLot.com.au
Display Homes at Playford Alive Estate: A Thriving Community at the Heart of Munno Para
Welcome to Playford Alive, a vibrant and dynamic masterplanned community ...
11/Jun/2025 | OpenLot.com.au
Display Homes at Ocean Hill Estate: A Thriving Community by the Coast
A short stroll from the white sands of Madora Beach and fringed by the co...
10/Jun/2025 | OpenLot.com.au
Display Homes at Bluestone Estate: An Established Community in the Mount Barker
Whether you’re a first home buyer, a growing family, or looking to downsi...
09/Jun/2025 | OpenLot.com.au
Queensland Leads, But NSW and VIC Fall Behind, in New Housing Buyer Demand Index
New data reveals that Australia’s new housing market remains resilient de...
06/Jun/2025 | OpenLot.com.au
Display Homes at Minters Fields Estate: A Scenic Hillside Community in Mount Barker
Nestled in the heart of Mount Barker, Minters Fields offers a truly remar...
03/Jun/2025 | OpenLot.com.au
🏡 Step Inside a Frenken Home at Smiths Lane
During a recent visit to the Smiths Lane display village, OpenLot.com.au ...