Wallara Waters Estate - Wallan
[NEW RELEASE] The perfect setting for your new home.
- The Wallara Waters Sales Centre is open by appointment only
- $10k regional First Home Owners Grant available
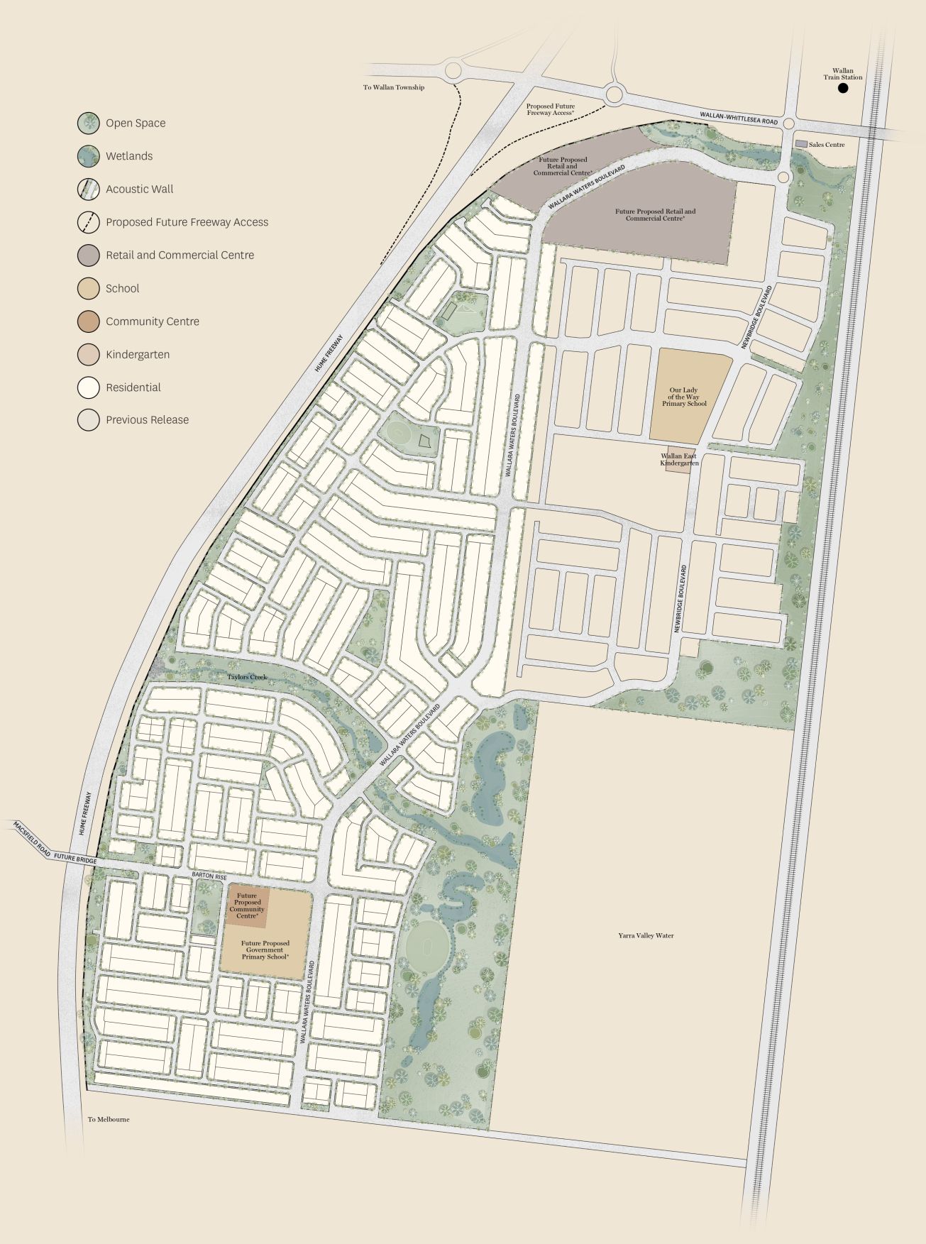
- Close to Wallan train station and established retail precinct. And walking distance to a primary school and parks. Hume freeway access nearby.
- Over 20 hectares of wetlands and dedicated open spaces that will be home to over 4,800 residents in approximately 2,000 new homes.
- Future proposed retail/commercial
- Short drive to the well-established Wallan Town Centre’s entertainment and shopping options
- Childcare centres, Wallan Primary School and Wallan High School are just a short drive away. Our Lady Of The Way Catholic Primary School is within walking distance
- Parks, playgrounds, half basketball court, BBQ facilities and kick about space completed
- A joint development between Mondous Property Australia and Frasers Property Australia
This information is estimated by the OpenLot research team. Let us know here to provide up-to-date information about this development.
| Total new homes | 2,000 |
| Area size | 200.00 hectares |
| Growth Region | Melbourne North Growth Corridor |
| City council | Mitchell Shire Council |
| Developer | Frasers Property Australia, Mondous Property Australia |
| Project marketer | Oliver Hume Real Estate Group |
| Distance to | Melbourne Airport - 30 km north-east Melbourne CBD - 43 km north |
Land for Sale, House and Land Packages:
Popular Estates near Wallara Waters Estate - Wallan
Updates for Wallara Waters Estate - Wallan
Location & Map for Wallara Waters Estate - Wallan
Visit Display Homes near Wallara Waters Estate - Wallan
Land Price Trend in Wallan VIC 3756
- In Oct - Dec 24, the median price for vacant land in Wallan VIC 3756 was $390,000. *
- From Oct - Dec 17 to Oct - Dec 24, the median price for vacant land in Wallan VIC 3756 has increased 81.4%. *
- From 2008 to 2024, the median price for vacant land in Wallan VIC 3756 has increased 142.68%. *
Schools near Wallara Waters Estate - Wallan
Here are 6 schools near Wallara Waters Estate - Wallan:
Prep-6 Catholic Primary School
7-12 Government Secondary School
Prep-6 Government Primary School
Prep-6 Government Primary School - School Head Campus
Prep-6 Government Primary School
Prep-6 Government Primary School
Reviews & Comments on Wallara Waters Estate - Wallan
Estate Brochure, Masterplan, Engineering Plan, Plan of Subdivision (POS), Design Guidelines
FAQs about Wallara Waters Estate - Wallan
View all estates from Frasers Property Australia
View all estates from Mondous Property Australia
View all estates marketed by Oliver Hume Real Estate Group
- Our Lady of the Way Catholic Primary School - 1.1km north-east
- Wallan Secondary College - 1.5km north-west
- Wallan Primary School - 2.4km north-west
- Beveridge Primary School - 4.8km south
- Upper Plenty Primary School - 6.0km east
- Wandong Primary School - 8.4km north-east
Popular Estates near Wallara Waters Estate - Wallan
Latest New Home Articles for You
19/Aug/2025 | OpenLot.com.au
🏡 Suburb Profile: Beveridge
Beveridge is within the Mitchell Shire, located 42 kilometres north of Me...
19/Aug/2025 | OpenLot.com.au
test2
19/Aug/2025 | OpenLot.com.au
tests
13/Jun/2025 | OpenLot.com.au
Display Homes at Playford Alive Estate: A Thriving Community at the Heart of Munno Para
Welcome to Playford Alive, a vibrant and dynamic masterplanned community ...
11/Jun/2025 | OpenLot.com.au
Display Homes at Ocean Hill Estate: A Thriving Community by the Coast
A short stroll from the white sands of Madora Beach and fringed by the co...
10/Jun/2025 | OpenLot.com.au
Display Homes at Bluestone Estate: An Established Community in the Mount Barker
Whether you’re a first home buyer, a growing family, or looking to downsi...
09/Jun/2025 | OpenLot.com.au
Queensland Leads, But NSW and VIC Fall Behind, in New Housing Buyer Demand Index
New data reveals that Australia’s new housing market remains resilient de...
06/Jun/2025 | OpenLot.com.au
Display Homes at Minters Fields Estate: A Scenic Hillside Community in Mount Barker
Nestled in the heart of Mount Barker, Minters Fields offers a truly remar...
03/Jun/2025 | OpenLot.com.au
🏡 Step Inside a Frenken Home at Smiths Lane
During a recent visit to the Smiths Lane display village, OpenLot.com.au ...