Wallis Creek Estate - Gillieston Heights
This information is estimated by the OpenLot research team. Let us know here to provide up-to-date information about this development.
| Total new homes | 400 |
| Area size | 50.00 hectares |
| Growth Region | Greater Newcastle Growth Areas (The Hunter Region) |
| City council | Maitland City Council |
| Developer | Walker Corporation |
| Distance to | Newcastle CBD - 30 km north-west |
Land for Sale, House and Land Packages:
Popular Estates near Wallis Creek Estate - Gillieston Heights
Updates for Wallis Creek Estate - Gillieston Heights
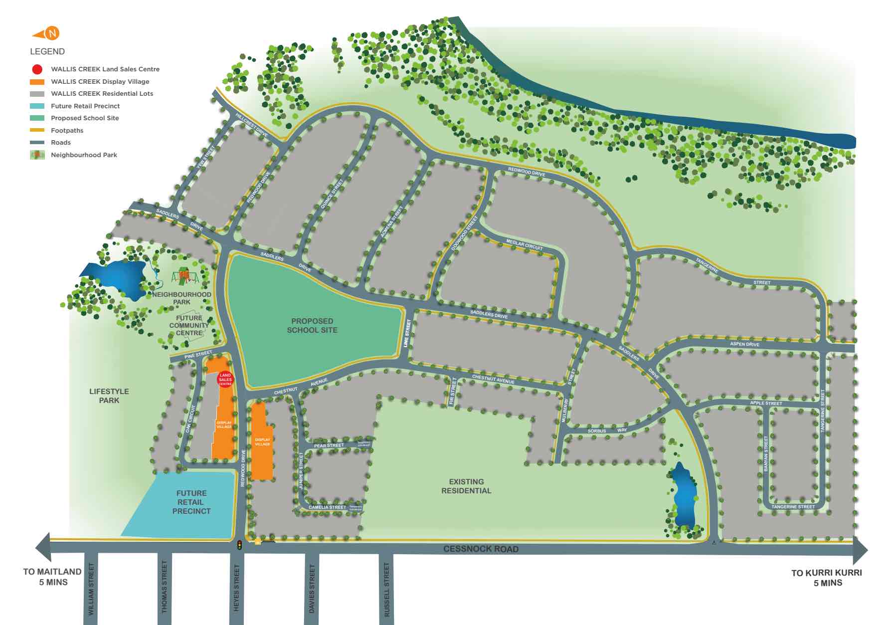
Location & Map for Wallis Creek Estate - Gillieston Heights
Visit Display Homes near Wallis Creek Estate - Gillieston Heights
Vacancy Rate in Gillieston Heights NSW 2321
View full vacancy rate history in Gillieston Heights NSW 2321 via SQM Research.
Schools near Wallis Creek Estate - Gillieston Heights
Here are 6 schools near Wallis Creek Estate - Gillieston Heights:
K-3 Independent Primary School
K-6 Government Primary School
11-12 Independent Secondary School
K-6 Government Primary School
K-6 Catholic Primary School
7-12 Catholic Secondary School - School Head Campus
Reviews & Comments on Wallis Creek Estate - Gillieston Heights
Estate Brochure, Masterplan, Engineering Plan, Plan of Subdivision (POS), Design Guidelines
FAQs about Wallis Creek Estate - Gillieston Heights
View all estates from Walker Corporation
- The Heights Learning Community - 1.4km north-east
- Gillieston Public School - 1.5km north
- Hunter Trade College - 3.0km north
- Maitland Public School - 3.9km north-east
- St John the Baptist Primary School - 4.0km north-east
- All Saints College - 4.1km north-east
Popular Estates near Wallis Creek Estate - Gillieston Heights
Latest New Home Articles for You
19/Aug/2025 | OpenLot.com.au
🏡 Suburb Profile: Beveridge
Beveridge is within the Mitchell Shire, located 42 kilometres north of Me...
19/Aug/2025 | OpenLot.com.au
test2
19/Aug/2025 | OpenLot.com.au
tests
13/Jun/2025 | OpenLot.com.au
Display Homes at Playford Alive Estate: A Thriving Community at the Heart of Munno Para
Welcome to Playford Alive, a vibrant and dynamic masterplanned community ...
11/Jun/2025 | OpenLot.com.au
Display Homes at Ocean Hill Estate: A Thriving Community by the Coast
A short stroll from the white sands of Madora Beach and fringed by the co...
10/Jun/2025 | OpenLot.com.au
Display Homes at Bluestone Estate: An Established Community in the Mount Barker
Whether you’re a first home buyer, a growing family, or looking to downsi...
09/Jun/2025 | OpenLot.com.au
Queensland Leads, But NSW and VIC Fall Behind, in New Housing Buyer Demand Index
New data reveals that Australia’s new housing market remains resilient de...
06/Jun/2025 | OpenLot.com.au
Display Homes at Minters Fields Estate: A Scenic Hillside Community in Mount Barker
Nestled in the heart of Mount Barker, Minters Fields offers a truly remar...
03/Jun/2025 | OpenLot.com.au
🏡 Step Inside a Frenken Home at Smiths Lane
During a recent visit to the Smiths Lane display village, OpenLot.com.au ...