Waterford Rise Estate - Warragul
This information is estimated by the OpenLot research team. Let us know here to provide up-to-date information about this development.
| Total new homes | 1,250 |
| Area size | N/A |
| Growth Region | Gippsland Regional Growth Areas |
| City council | Baw Baw Shire Council |
| Developer | Baw Baw Developments |
| Project marketer | Oliver Hume Real Estate Group |
| Other names | Spring Water Estate |
| Distance to | Melbourne CBD - 91 km south-east |
Land for Sale, House and Land Packages:
13 Display Homes in Waterford Rise Estate Display Village - Warragul
4
2
3
2
4
2
3
2
4
2
2
2
4
2
2
2
3
2
1
2
4
2
1
2
4
2
2
2
4
2.5
3
2
4
2
2
2
Popular Estates near Waterford Rise Estate - Warragul
Updates for Waterford Rise Estate - Warragul
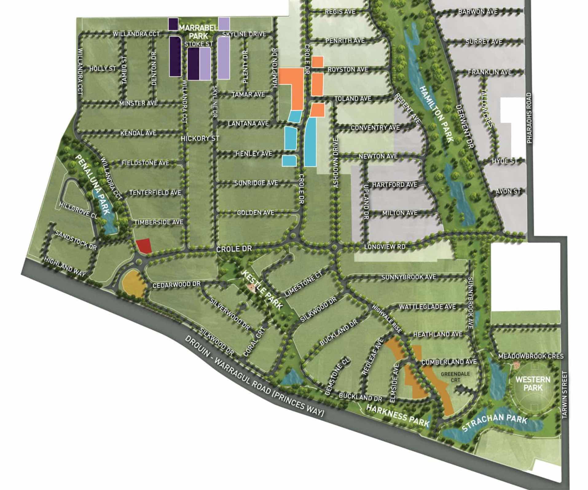
Location & Map for Waterford Rise Estate - Warragul
Land Price Trend in Warragul VIC 3820
- In Oct - Dec 24, the median price for vacant land in Warragul VIC 3820 was $316,700. *
- From Oct - Dec 17 to Oct - Dec 24, the median price for vacant land in Warragul VIC 3820 has increased 85.2%. *
- From 2008 to 2024, the median price for vacant land in Warragul VIC 3820 has increased 240.54%. *
Vacancy Rate in Warragul VIC 3820
View full vacancy rate history in Warragul VIC 3820 via SQM Research.
Schools near Waterford Rise Estate - Warragul
Here are 6 schools near Waterford Rise Estate - Warragul:
Prep-6 Catholic Primary School
7-12 Catholic Secondary School
Prep-12 Independent Combined School - School Head Campus
Prep-6 Government Primary School
U Government Special School
7-12 Government Secondary School
Reviews & Comments on Waterford Rise Estate - Warragul
Estate Brochure, Masterplan, Engineering Plan, Plan of Subdivision (POS), Design Guidelines
FAQs about Waterford Rise Estate - Warragul
View all estates from Baw Baw Developments
View all estates marketed by Oliver Hume Real Estate Group
- St Joseph's School - 1.2km south
- Marist-Sion College - 1.3km south
- St Paul's Anglican Grammar School - 1.6km east
- Warragul Primary School - 1.7km south-east
- Warragul & District Specialist School - 2.2km south-east
- Warragul Regional College - 2.3km south-east
Popular Estates near Waterford Rise Estate - Warragul
Latest New Home Articles for You
19/Aug/2025 | OpenLot.com.au
🏡 Suburb Profile: Beveridge
Beveridge is within the Mitchell Shire, located 42 kilometres north of Me...
19/Aug/2025 | OpenLot.com.au
test2
19/Aug/2025 | OpenLot.com.au
tests
13/Jun/2025 | OpenLot.com.au
Display Homes at Playford Alive Estate: A Thriving Community at the Heart of Munno Para
Welcome to Playford Alive, a vibrant and dynamic masterplanned community ...
11/Jun/2025 | OpenLot.com.au
Display Homes at Ocean Hill Estate: A Thriving Community by the Coast
A short stroll from the white sands of Madora Beach and fringed by the co...
10/Jun/2025 | OpenLot.com.au
Display Homes at Bluestone Estate: An Established Community in the Mount Barker
Whether you’re a first home buyer, a growing family, or looking to downsi...
09/Jun/2025 | OpenLot.com.au
Queensland Leads, But NSW and VIC Fall Behind, in New Housing Buyer Demand Index
New data reveals that Australia’s new housing market remains resilient de...
06/Jun/2025 | OpenLot.com.au
Display Homes at Minters Fields Estate: A Scenic Hillside Community in Mount Barker
Nestled in the heart of Mount Barker, Minters Fields offers a truly remar...
03/Jun/2025 | OpenLot.com.au
🏡 Step Inside a Frenken Home at Smiths Lane
During a recent visit to the Smiths Lane display village, OpenLot.com.au ...