1191 Beenleigh Road, Runcorn QLD 4113 IN PLANNING
This information is estimated by the OpenLot research team. Let us know here to provide up-to-date information about this development.
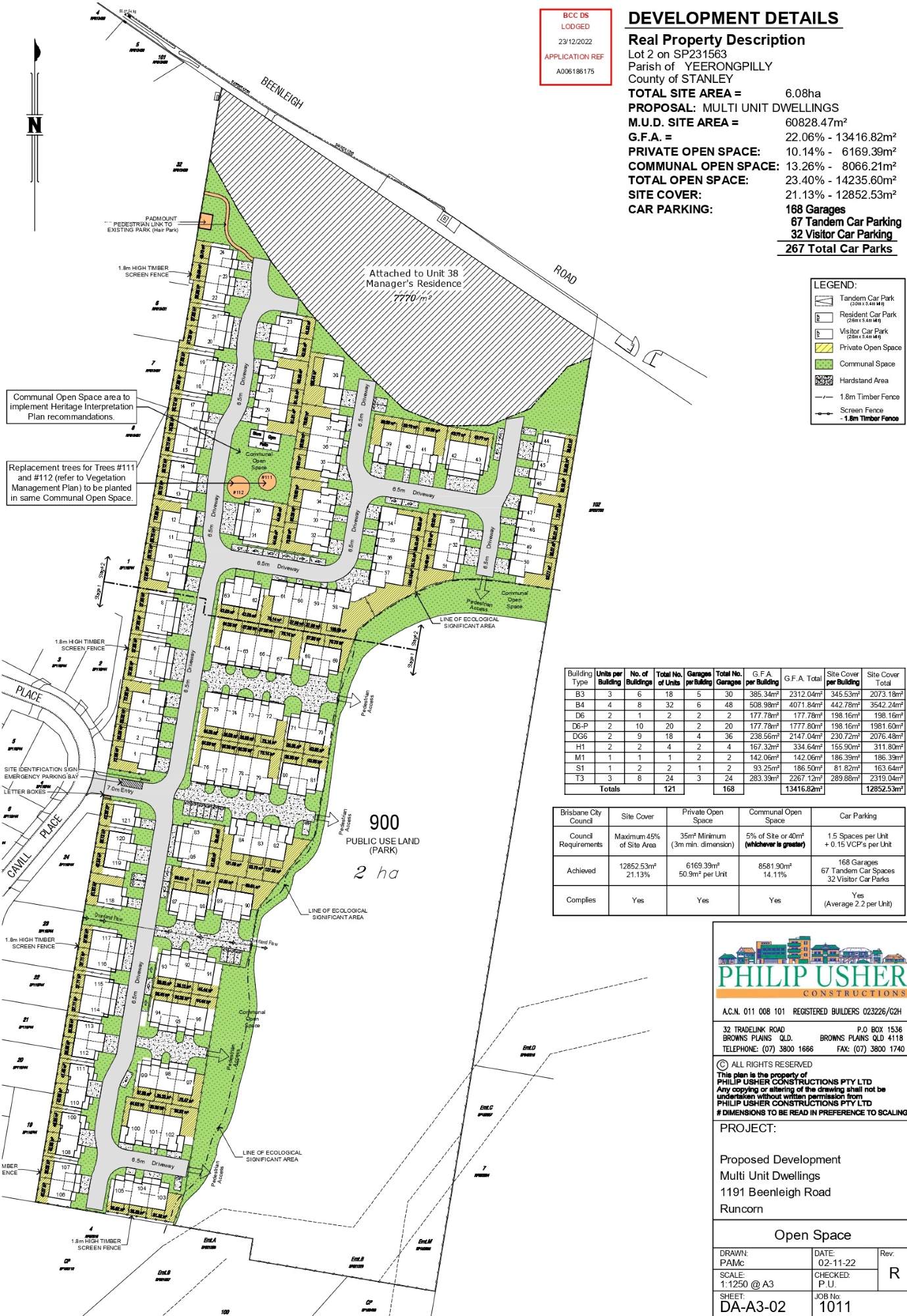
| Total new homes | 122 |
| Area size | 6.09 hectares |
| Growth Region | Greater Brisbane Growth Areas |
| City council | Brisbane City Council |
| Developer | Philip Usher Constructions |
| Distance to | Brisbane CBD - 16 km south Brisbane Airport - 23 km south |
Popular Estates near 1191 Beenleigh Road, Runcorn
Updates for 1191 Beenleigh Road, Runcorn
Location & Map for 1191 Beenleigh Road, Runcorn
Visit Display Homes near 1191 Beenleigh Road, Runcorn
Vacancy Rate in Runcorn QLD 4113
View full vacancy rate history in Runcorn QLD 4113 via SQM Research.
Schools near 1191 Beenleigh Road, Runcorn
Here are 6 schools near 1191 Beenleigh Road, Runcorn:
Prep-12 Government Special School
7-12 Government Secondary School
Prep-6 Government Primary School
Prep-6 Government Primary School
Prep-6 Government Primary School
Prep-12 Independent Combined School
Reviews & Comments on 1191 Beenleigh Road, Runcorn
FAQs about 1191 Beenleigh Road, Runcorn
View all estates from Philip Usher Constructions
- Kuraby Special School - 841m south-east
- Runcorn State High School - 1.2km north-west
- Kuraby State School - 1.3km east
- Runcorn Heights State School - 1.4km west
- Warrigal Road State School - 1.7km north
- Islamic College of Brisbane - 1.9km south-east
Popular Estates near 1191 Beenleigh Road, Runcorn
Latest New Home Articles for You
19/Aug/2025 | OpenLot.com.au
🏡 Suburb Profile: Beveridge
Beveridge is within the Mitchell Shire, located 42 kilometres north of Me...
19/Aug/2025 | OpenLot.com.au
test2
19/Aug/2025 | OpenLot.com.au
tests
13/Jun/2025 | OpenLot.com.au
Display Homes at Playford Alive Estate: A Thriving Community at the Heart of Munno Para
Welcome to Playford Alive, a vibrant and dynamic masterplanned community ...
11/Jun/2025 | OpenLot.com.au
Display Homes at Ocean Hill Estate: A Thriving Community by the Coast
A short stroll from the white sands of Madora Beach and fringed by the co...
10/Jun/2025 | OpenLot.com.au
Display Homes at Bluestone Estate: An Established Community in the Mount Barker
Whether you’re a first home buyer, a growing family, or looking to downsi...
09/Jun/2025 | OpenLot.com.au
Queensland Leads, But NSW and VIC Fall Behind, in New Housing Buyer Demand Index
New data reveals that Australia’s new housing market remains resilient de...
06/Jun/2025 | OpenLot.com.au
Display Homes at Minters Fields Estate: A Scenic Hillside Community in Mount Barker
Nestled in the heart of Mount Barker, Minters Fields offers a truly remar...
03/Jun/2025 | OpenLot.com.au
🏡 Step Inside a Frenken Home at Smiths Lane
During a recent visit to the Smiths Lane display village, OpenLot.com.au ...